上野・御徒町エリアの利便性と洗練されたデザインが融合したセットアップオフィスです。
主要ターミナル駅へのアクセスの良さと、ガラスブロックを活かしたスタイリッシュな内装が特徴的な、成長企業に最適な環境を提供します。
詳細は以下をご覧ください。
このオフィスのおすすめポイント
- 仲御徒町駅徒歩2分、上野御徒町駅徒歩2分、御徒町駅徒歩4分の好立地
- 期間限定フリーレントキャンペーン実施中(詳細お問い合わせください)
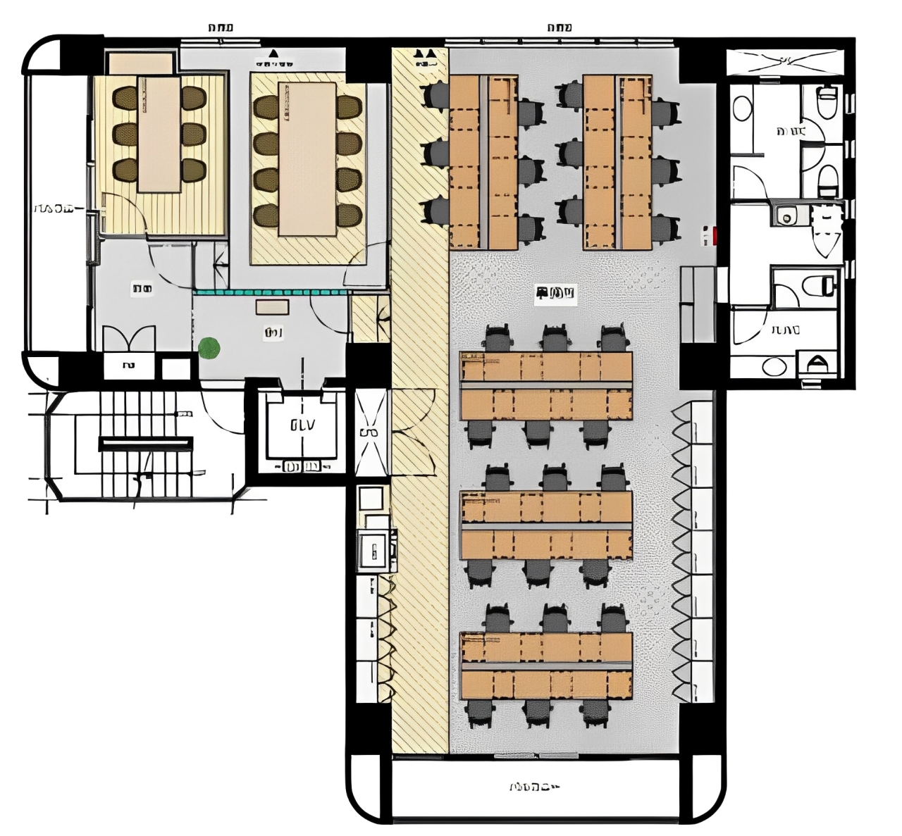
- 会議室2ヶ所(6人用、8人用)設置済み
- 6駅9路線が徒歩10分圏内で利用可能
- ガラスブロックを活かした明るく開放的な空間設計
- セットアップオフィスのため即入居可能
- 男女別トイレ完備でプライバシーに配慮
- 機械警備システムによるセキュリティ体制
- エントランス・共用部リニューアル済み(2018年3月)
- 駐車場設備あり
オフィスの特徴
当オフィスの最大の魅力は、既存のガラスブロックを活かしたデザイン性の高い内装です。
自然光が差し込む明るい執務空間は、来訪者に洗練された印象を与えるとともに、従業員の創造性や生産性を高める効果が期待できます。木目調のフローリングとダークカラーのカーペットを組み合わせたゾーニングにより、執務エリアとコミュニケーションエリアが自然に分けられており、メリハリのある働き方を実現します。さらに、2つの会議室は規模に応じて使い分けが可能で、少人数のミーティングから部門会議まで柔軟に対応できます。
立地面では、上野という東京の主要ターミナルエリアに位置し、都内各所へのアクセスが抜群です。周辺には飲食店やコンビニエンスストアも充実しており、ランチタイムの選択肢も豊富です。また、上野恩賜公園も徒歩圏内にあり、リフレッシュできる環境も整っています。
こんな企業にオススメ
- 複数路線を利用して通勤する従業員が多い企業
- 来客対応が多く、アクセスの良さを重視する企業
- 明るく開放的なオフィス環境を求める企業
- 即入居できるセットアップオフィスを探している企業
- 会議やミーティングの機会が多い企業
- フリーレント期間を活用して初期費用を抑えたい企業
- セキュリティ面を重視する企業
- 従業員の働きやすさを重視する企業
- 程よい規模感のオフィスを探している企業
- 上野エリアでブランディングを図りたい企業
本物件は、交通利便性とデザイン性を兼ね備えた、上野・御徒町エリアの魅力的なセットアップオフィスです。
フリーレント相談可という破格の条件は、移転コストを大幅に削減できる絶好の機会となっています。ガラスブロックから差し込む自然光が創り出す明るい執務環境は、従業員のモチベーション向上にも寄与するでしょう。
また、6駅9路線という圧倒的なアクセスの良さは、採用活動においても大きなアドバンテージとなります。
会議室が2室用意されていることで、社内ミーティングと来客対応を同時に行うことも可能です。さらに、2018年にリニューアルされたエントランスや共用部は、企業イメージの向上にも貢献します。上野という歴史と文化が息づくエリアでありながら、ビジネスの中心地へのアクセスも良好な立地は、様々なビジネスシーンに対応できる理想的な環境といえるでしょう。
公開情報以外で気になる点などございましたらお気軽にお問い合わせください。内見や、空室確認なども随時承っておりますのでお気軽にご相談ください。

