上野・御徒町エリアの最上階に位置する、特別な付加価値を持つセットアップオフィスです。
専用屋上テラスという希少性の高い設備と、洗練されたデザインが融合し、ワンランク上のオフィス環境を実現しています。詳細は以下をご覧ください。
このオフィスのおすすめポイント
- 最上階(9階)入居テナント様専用の屋上テラス設置
- 仲御徒町駅徒歩2分、上野御徒町駅徒歩2分、御徒町駅徒歩4分の好立地
- フリーレントキャンペーン実施中(詳細お問い合わせください)
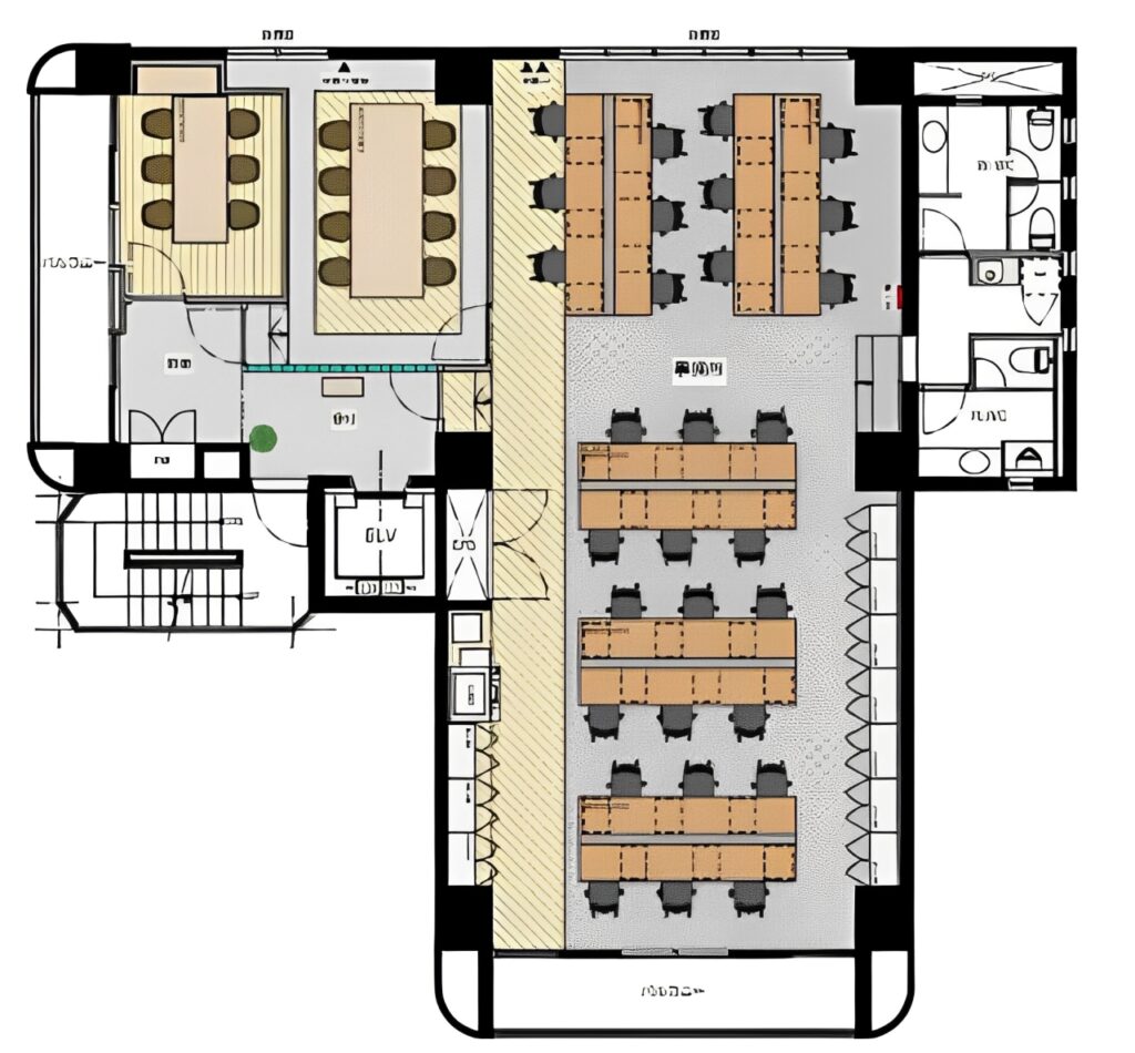
- 会議室2ヶ所(6人用、8人用)設置済み
- 6駅9路線が徒歩10分圏内で利用可能
- 天窓からの自然光が差し込む開放的な空間
- 木製梁を露出したデザイン天井で温かみのある雰囲気
- セットアップオフィスで即入居可能
- 男女別トイレ完備
- 機械警備システム導入済み
オフィスの特徴
当オフィス最大の特徴は、最上階入居者だけが利用できる専用屋上テラスです。都心のビジネスエリアでありながら、開放的な屋外空間を独占できる贅沢は、他では得難い価値となっています。リフレッシュスペースとしてはもちろん、カジュアルなミーティングや従業員の交流の場としても活用でき、働き方の幅を大きく広げます。
室内は木製の露出梁と天窓が特徴的で、自然素材の温もりと自然光が調和した心地よい空間を演出しています。ガラスブロックの壁面は、プライバシーを保ちながら柔らかな光を取り入れ、明るく落ち着いた執務環境を実現しています。フローリングとカーペットの使い分けによるゾーニングも効果的で、執務エリアと打ち合わせエリアが自然に区分けされています。
最上階という立地は、騒音も少なく集中して業務に取り組める環境であり、企業のステータス向上にも寄与します。
こんな企業にオススメ
- 従業員の働きやすさとウェルビーイングを重視する企業
- 屋外リフレッシュスペースで創造性を高めたい企業
- 最上階のステータス性を求める企業
- 自然光溢れる快適な執務環境を求める企業
- 独自性のあるオフィス空間でブランディングを図りたい企業
- 社内コミュニケーションの活性化を目指す企業
- 来客時に特別な印象を与えたい企業
- 静かな環境で集中力を高めたい企業
- 複数の交通アクセスを活用する企業
- 初期費用を抑えながら高品質なオフィスに入居したい企業
本物件は、上野・御徒町エリアで唯一無二の価値を持つ、最上階セットアップオフィスです。専用屋上テラスという特別な設備は、従業員満足度の向上や採用競争力の強化に直結する重要な要素となるでしょう。
天窓から降り注ぐ自然光と木製梁が醸し出す温かみのある空間は、創造的な発想を生み出す環境として最適です。フリーレント相談可という特典を活用すれば、移転に伴う財務負担を大幅に軽減しながら、ワンランク上のオフィス環境を手に入れることができます。
6駅9路線という卓越したアクセス性は、営業活動の効率化や優秀な人材の確保にも貢献します。また、最上階という立地は、都心の喧騒から離れた静謐な環境を提供し、集中力を要する業務にも最適です。
2018年にリニューアルされた共用部と合わせて、企業の品格を高める理想的なオフィス環境といえるでしょう。
公開情報以外で気になる点などございましたらお気軽にお問い合わせください。内見や、空室確認なども随時承っておりますのでお気軽にご相談ください。

