内装造作済みの魅力的な空間で、新しいビジネスの形をスタートさせませんか。
詳細は以下をご覧ください。
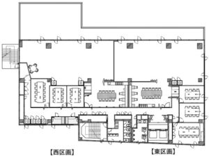
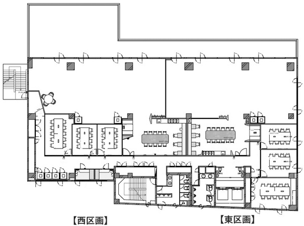
このオフィスのおすすめポイント
- 本格的な内装造作済みのセットアップオフィス
- 大人数での利用が可能な会議室を複数完備
- Web会議や集中作業に最適なフォンブースを設置
- 男女別トイレやリフレッシュスペースなど共用部も充実
オフィスの特徴
内装造作工事が完了した、モダンで温かみのある空間。
木目を基調とした壁面と、グリーンのアクセントウォールが調和し、訪れる方に清潔感と信頼感を与えます。
広々としたメインフロアに加え、機能的なカウンターキッチンやソファ席など、コミュニケーションを活性化させる仕掛けが随所に施されています。外観は落ち着きのある佇まいで、企業の品格をさりげなく演出。周辺は都心でありながら落ち着いた環境で、集中して業務に取り組むことが可能です。
什器の選定やレイアウトに悩むことなく、スピーディーに業務を開始できる高い機能性を備えており、従業員のモチベーション向上も期待できるオフィスです。
こんな企業にオススメ
- 移転コストを抑えつつ質の高いオフィス環境を求める企業
- 社内コミュニケーションの活性化と生産性向上を重視する企業
- オンライン商談や会議が多く専用スペースを必要とする企業
本物件はデザイン性と機能性を高次元で両立させた希少な空間です。
公開情報以外で気になる点などございましたらお気軽にお問い合わせください。
内見や、空室確認なども随時承っておりますのでお気軽にご相談ください。
