居抜きオフィス物件検索・掲載サイト【ハイッテ】 > 居抜きオフィス・セットアップオフィスを探す > 【セットアップ 飯田橋駅7分】充実の共有設備と洗練された内装が魅力のオフィス

【セットアップ 飯田橋駅7分】充実の共有設備と洗練された内装が魅力のオフィス

更新日:2026.05.19 公開日:2026.04.10
宅地建物取引士 本田
宅地建物取引士 本田
東京都新宿区新小川町は、都心部に位置する住宅街であり、静かで落ち着いた雰囲気が特徴です。また、周辺には多くの公園や緑地があり、自然に囲まれた環境も魅力的です。
お問い合わせ受付中

スタッフからのコメント

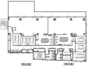
洗練されたデザインの内装が施された、機能美溢れるオフィス空間です。
充実した共有設備がビジネスを加速させます。詳細は以下をご覧ください。

このオフィスのおすすめポイント

  • 什器備品が設置済みのセットアップ仕様
  • 最大12名まで利用可能な大型会議室を完備
  • リフレッシュや社内交流に最適なカウンター付きのラウンジ
  • 24時間入退館が可能でフレキシブルな働き方に対応

オフィスの特徴

内装造作付きのセットアップ工事を完了した、清潔感とモダンな雰囲気が融合したワークスペースです。

木の温もりを感じさせるナチュラルな素材を多用しており、従業員がリラックスして業務に励める環境が整っています。室内は開放的な執務エリアのほか、プライバシーに配慮したブース席や、大人数での打ち合わせが可能な会議室が機能的にレイアウトされています。

周辺は飲食店やコンビニエンスストアが点在する利便性の高い環境でありながら、落ち着いて仕事に打ち込める静かな立地も大きな魅力の一つです。

こんな企業にオススメ

  • 移転コストを抑えてスピーディーに業務を開始したい企業
  • 社内コミュニケーションの活性化を重視している企業
  • 来客が多く会議室やラウンジの質にこだわりたい企業

本物件はデザイン性と機能性を兼ね備えた、次世代のワークスタイルに相応しい空間です。
公開情報以外で気になる点などございましたらお気軽にお問い合わせください。
内見や、空室確認なども随時承っておりますのでお気軽にご相談ください。

営業担当者

塩沢 龍太朗

塩沢 龍太朗

Ryutaro Shiozawa
シニアセールス

宅地建物取引士

【東京都知事:第280468号】

オフィス詳細情報

物件番号 3319
エリア 東京都新宿区新小川町
アクセス 飯田橋駅徒歩7分
坪数 99~109坪
坪単価 23,000~27,000円 / 坪
月額賃料 2,400,000~2,810,000円
推奨人数 31~50人
オフィスタイプ
築年月 1991年10月
階数 3F
周辺施設 小石川後楽園
ワコービル飯田橋
印刷博物館
こだわり条件

募集条件

敷金 8ヶ月
礼金 0ヶ月
保証金 8ヶ月
償却 0ヶ月
更新料 0ヶ月
保証会社 必須(保証会社指定あり)
入居可能時期 即日
契約期間 2年

ショート動画

スタッフからのコメント

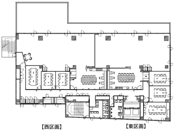
洗練されたデザインの内装が施された、機能美溢れるオフィス空間です。
充実した共有設備がビジネスを加速させます。詳細は以下をご覧ください。

このオフィスのおすすめポイント

  • 什器備品が設置済みのセットアップ仕様
  • 最大12名まで利用可能な大型会議室を完備
  • リフレッシュや社内交流に最適なカウンター付きのラウンジ
  • 24時間入退館が可能でフレキシブルな働き方に対応

オフィスの特徴

内装造作付きのセットアップ工事を完了した、清潔感とモダンな雰囲気が融合したワークスペースです。

木の温もりを感じさせるナチュラルな素材を多用しており、従業員がリラックスして業務に励める環境が整っています。室内は開放的な執務エリアのほか、プライバシーに配慮したブース席や、大人数での打ち合わせが可能な会議室が機能的にレイアウトされています。

周辺は飲食店やコンビニエンスストアが点在する利便性の高い環境でありながら、落ち着いて仕事に打ち込める静かな立地も大きな魅力の一つです。

こんな企業にオススメ

  • 移転コストを抑えてスピーディーに業務を開始したい企業
  • 社内コミュニケーションの活性化を重視している企業
  • 来客が多く会議室やラウンジの質にこだわりたい企業

本物件はデザイン性と機能性を兼ね備えた、次世代のワークスタイルに相応しい空間です。
公開情報以外で気になる点などございましたらお気軽にお問い合わせください。
内見や、空室確認なども随時承っておりますのでお気軽にご相談ください。

営業担当者

塩沢 龍太朗

塩沢 龍太朗

Ryutaro Shiozawa
シニアセールス

宅地建物取引士

【東京都知事:第280468号】

当オフィスの設備

  • デザイナーズオフィス
  • フォンブース
  • ファミレス席
  • リノベーションオフィス
  • 駐車場付き
  • 駐輪場あり
  • 築浅
  • 男女別トイレ
  • 会議室あり
  • 耐震
  • バルコニーorテラスor屋上あり
  • スケルトン天井
  • ワンフロア
  • 一棟貸し
  • セントラル空調
  • OAフロア
  • 天井が高い
  • 個別空調
  • 貸会議室あり
  • ラウンジ

当オフィスの周辺環境

このオフィス物件へのお問い合わせ

このサイトはreCAPTCHAによって保護されており、Googleのプライバシーポリシー利用規約が適用されます。

お電話でのお問い合わせはこちら

0120-19-1925 受付時間:10:00~18:00

同じ坪数&エリアの物件

お問い合せ受付中
【セットアップ 都庁前駅徒歩6分】会議室2室完備・什器付きで即入居可

【セットアップ 都庁前駅徒歩6分】会議室2室完備・什器付きで即入居可

エリア
新宿区西新宿
アクセス
都庁前駅徒歩6分,新宿駅徒歩8分,西新宿駅徒歩13分
坪数
118~128坪
坪単価
22,000~26,000円 / 坪
推奨人数
51~80人
お問い合せ受付中
【セットアップ 新宿駅】5路線利用可のルーフバルコニー付きオフィス!

【セットアップ 新宿駅】5路線利用可のルーフバルコニー付きオフィス!

エリア
新宿区西新宿
アクセス
新宿西口駅徒歩4分,西武新宿駅徒歩5分,大久保駅徒歩6分,新宿駅徒歩7分
坪数
100~110坪
坪単価
-
推奨人数
51~80人
お問い合せ受付中
【セットアップ 神保町駅徒歩2分】効率的レイアウトの駅近オフィス

【セットアップ 神保町駅徒歩2分】効率的レイアウトの駅近オフィス

エリア
千代田区神田神保町
アクセス
神保町駅徒歩2分,九段下駅徒歩5分,水道橋駅徒歩9分
坪数
101~111坪
坪単価
27,000~31,000円 / 坪
推奨人数
51~80人
お問い合せ受付中
【セットアップ 九段下駅徒歩5分】集中とコラボが両立する理想のオフィス

【セットアップ 九段下駅徒歩5分】集中とコラボが両立する理想のオフィス

エリア
千代田区神田神保町
アクセス
神保町駅徒歩2分,九段下駅徒歩5分,水道橋駅徒歩9分
坪数
101~111坪
坪単価
28,000~32,000円 / 坪
推奨人数
51~80人
ハイッテおすすめ
【居抜き 岩本町駅】駅徒歩1分!会議室・ラウンジ等フル装備の『居抜き』オフィス

【居抜き 岩本町駅】駅徒歩1分!会議室・ラウンジ等フル装備の『居抜き』オフィス

エリア
千代田区
アクセス
-
坪数
140~150坪
坪単価
17,000~21,000円 / 坪
推奨人数
51~80人
お問い合せ受付中
【セットアップ 神田駅徒歩5分】好立地!会議室付きのデザインオフィス

【セットアップ 神田駅徒歩5分】好立地!会議室付きのデザインオフィス

エリア
千代田区神田紺屋町
アクセス
神田駅徒歩4分,岩本町駅徒歩5分,新日本橋駅徒歩5分,三越前駅徒歩5分
坪数
111~121坪
坪単価
25,000~29,000円 / 坪
推奨人数
11~30人

ハイッテの居抜きオフィス移転なら、
移転費用最大0円。期間短縮。
SDGsに貢献にできる。

オフィス・事務所の居抜き退去・入居ができる検索・掲載サービスです。
居抜き退去で原状回復費用を、居抜き入居で内装工事費用を大幅に削減!
採用戦略や事業運営に応じた、最適な移転提案でスタートアップ・ベンチャー企業の成長をサポートします。

お役立ち資料

本当にあった!居抜きオフィス移転トラブル事例5選(ガイド)

本当にあった!居抜きオフィス移転トラブル事例5選(ガイド)

解約通知書テンプレートを無料ダウンロード

解約通知書テンプレートを無料ダウンロード

オフィス・事務所移転を進めるためのスケジュールガイドを無料ダウンロード

オフィス・事務所移転を進めるためのスケジュールガイドを無料ダウンロード

居抜きオフィス移転チェックリスト

居抜きオフィス移転チェックリスト

オフィスプランニングシート【内見・内覧にも使える】

オフィスプランニングシート【内見・内覧にも使える】

オフィス移転の工数を1/3削減!レイアウトを考えるポイント(ガイド)

オフィス移転の工数を1/3削減!レイアウトを考えるポイント(ガイド)

居抜きオフィス移転完全マニュアル(ガイド)

居抜きオフィス移転完全マニュアル(ガイド)

5分でわかる原状回復!退去費用0円にする居抜きの魅力(ガイド)

5分でわかる原状回復!退去費用0円にする居抜きの魅力(ガイド)

面倒な物件探しは、まるっとおまかせ。非公開物件も多数 おまかせ問い合わせはコチラ
お問い合わせ