都心を見渡す開放感と機能性が融合した、家具付きオフィス。
詳細は以下をご覧ください。
このオフィスのおすすめポイント
- 西新宿のランドマークビルに位置するセットアップオフィス
- 小割区画入居者専用の共用会議室、Webブース、ラウンジ等完備
- テナント様専用施設「NEON」の食堂、ラウンジ、貸会議室なども利用可能
- 都庁前駅より徒歩3分、新宿駅からも地下道直結で雨に濡れずアクセス可能
- ビル内に飲食店や郵便局、銀行ATMが揃い、高い利便性を実現
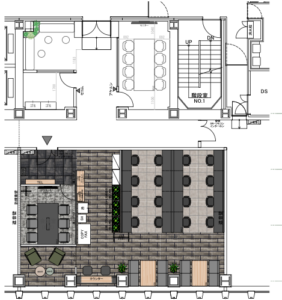
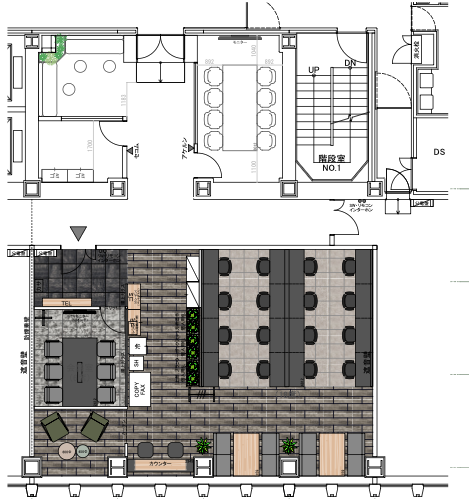
オフィスの特徴
西新宿のランドマークとして知られる高層ビルに位置し、その重厚感のある外観は来訪者に企業の信頼感と安定感を強く印象付けます 。
室内は、洗練されたデザインのセットアップオフィスとなっており、落ち着いた木目調のフロアと植栽が調和する心地よい空間が広がっています。
機能面においても、執務エリアに加え、入居者専用の貸会議室や遮音性に配慮したWebブースを備えており、さらに、働く人々に寄り添う多目的フロア「NEON」も利用可能で、現代の多様な働き方に柔軟に対応しています。
主要駅からの地下道直結アクセスにより、天候に左右されず快適に通勤できる周辺環境の価値は、採用面でも大きな強みとなります 。
こんな企業にオススメ
- スピード感を持って新しいプロジェクト拠点を開設したい企業
- 地下道直結の利便性と知名度の高いビルでの一等値を求める企業
- 専有部内にWEB会議専用スペースと会議室の両方を確保したい企業
本物件は、機能的なオフィス環境と高いステータスを同時に手に入れたいお客様に最適です。
公開情報以外で気になる点などございましたらお気軽にお問い合わせください。
内見や、空室確認なども随時承っておりますのでお気軽にご相談ください。
