居抜きオフィス物件検索・掲載サイト【ハイッテ】 > 居抜きオフィス・セットアップオフィスを探す > 【セットアップ 都庁前駅徒歩6分】会議室2室完備・什器付きで即入居可

【セットアップ 都庁前駅徒歩6分】会議室2室完備・什器付きで即入居可

更新日:2026.04.21 公開日:2026.01.30
宅地建物取引士 本田
宅地建物取引士 本田
東京都新宿区西新宿は、高層ビルが立ち並ぶビジネス街であり、多くの企業やオフィスが集まっています。また、新宿駅周辺に位置しているため、交通の便が良く、多くの人々が行き交います。

この地域には、多くの大手企業や金融機関がオフィスを構えており、ビジネスに適した環境が整っています。また、近年はIT関連のスタートアップ企業も増えており、特にWebデザインやプログラミングなどの分野で活躍する企業が多くなっています。

この地域にオフィスを構えるスタートアップ企業におすすめなのは、IT関連の企業です。理由としては、新宿駅周辺には多くのIT関連企業が集まっており、人材や情報の交流が盛んであること、また、交通の便が良いことが挙げられます。さらに、新宿区は都心に位置しているため、ビジネスに必要な情報やネットワークにアクセスしやすい環境が整っています。
お問い合わせ受付中

スタッフからのコメント

新宿エリアで会議室付きセットアップオフィスをお探しの方に最適な物件です。
詳細は以下をご覧ください。

このオフィスのおすすめポイント

  • 都庁前駅徒歩6分、新宿駅徒歩8分の好アクセス
  • 専有部内に会議室2室完備で来客対応も安心
  • エコファニ什器無償譲渡キャンペーン実施中
  • スケルトン天井でデザイン性と開放感を両立した空間
  • 窓際カウンターやラウンジスペースで多様な働き方に対応

オフィスの特徴

当オフィスは、2022年竣工の新しいビルに位置するセットアップオフィスです。

スケルトン天井が特徴的な内装は、開放感とモダンなデザイン性を兼ね備え、来訪者に洗練された印象を与えます。執務スペースには大きな窓から自然光が差し込み、明るく快適な作業環境を実現しています。
窓際に設置されたカウンター席は、気分転換やカジュアルな打ち合わせに最適です。
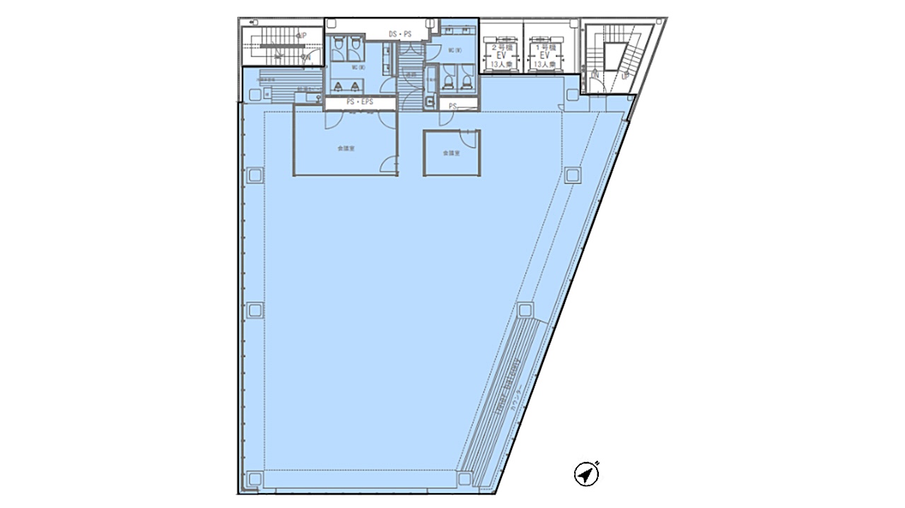
専有部内には会議室が2室設置されており、社内ミーティングから来客対応まで幅広く活用いただけます。

周辺には銀行や郵便局、コンビニエンスストアなど日常業務に必要な施設が揃っています。

こんな企業にオススメ

  • 初期コストを抑えてスピーディーにオフィスを構えたい企業
  • 会議室を頻繁に利用する打ち合わせの多い企業
  • 新宿エリアでアクセスの良い拠点を求める企業

本物件は、新宿エリアの利便性と充実した設備を兼ね備えたセットアップオフィスです。
公開情報以外で気になる点などございましたらお気軽にお問い合わせください。
内見や、空室確認なども随時承っておりますのでお気軽にご相談ください。

営業担当者

大隅 識文

大隅 識文

Norifumi Osumi
共同創業者/取締役

宅地建物取引士

【東京都知事:第237969号】

オフィス詳細情報

物件番号 3246
エリア 東京都新宿区西新宿
アクセス 都庁前駅徒歩6分,新宿駅徒歩8分,西新宿駅徒歩13分
坪数 118~128坪
坪単価 22,000~26,000円 / 坪
月額賃料 2,720,000~3,200,000円
推奨人数 51~80人
オフィスタイプ
築年月 2022年8月
階数 2F
周辺施設 都庁ビル
新宿中央公園
新宿NSビル
こだわり条件

募集条件

敷金 6ヶ月
礼金 相談
保証金 相談
償却 相談
更新料 相談
保証会社 必須
入居可能時期 即日
契約期間 相談

ショート動画

スタッフからのコメント

新宿エリアで会議室付きセットアップオフィスをお探しの方に最適な物件です。
詳細は以下をご覧ください。

このオフィスのおすすめポイント

  • 都庁前駅徒歩6分、新宿駅徒歩8分の好アクセス
  • 専有部内に会議室2室完備で来客対応も安心
  • エコファニ什器無償譲渡キャンペーン実施中
  • スケルトン天井でデザイン性と開放感を両立した空間
  • 窓際カウンターやラウンジスペースで多様な働き方に対応

オフィスの特徴

当オフィスは、2022年竣工の新しいビルに位置するセットアップオフィスです。

スケルトン天井が特徴的な内装は、開放感とモダンなデザイン性を兼ね備え、来訪者に洗練された印象を与えます。執務スペースには大きな窓から自然光が差し込み、明るく快適な作業環境を実現しています。
窓際に設置されたカウンター席は、気分転換やカジュアルな打ち合わせに最適です。
専有部内には会議室が2室設置されており、社内ミーティングから来客対応まで幅広く活用いただけます。

周辺には銀行や郵便局、コンビニエンスストアなど日常業務に必要な施設が揃っています。

こんな企業にオススメ

  • 初期コストを抑えてスピーディーにオフィスを構えたい企業
  • 会議室を頻繁に利用する打ち合わせの多い企業
  • 新宿エリアでアクセスの良い拠点を求める企業

本物件は、新宿エリアの利便性と充実した設備を兼ね備えたセットアップオフィスです。
公開情報以外で気になる点などございましたらお気軽にお問い合わせください。
内見や、空室確認なども随時承っておりますのでお気軽にご相談ください。

営業担当者

大隅 識文

大隅 識文

Norifumi Osumi
共同創業者/取締役

宅地建物取引士

【東京都知事:第237969号】

当オフィスの設備

  • デザイナーズオフィス
  • フォンブース
  • ファミレス席
  • リノベーションオフィス
  • 駐車場付き
  • 駐輪場あり
  • 築浅
  • 男女別トイレ
  • 会議室あり
  • 耐震
  • バルコニーorテラスor屋上あり
  • スケルトン天井
  • ワンフロア
  • 一棟貸し
  • セントラル空調
  • OAフロア
  • 天井が高い
  • 個別空調
  • 貸会議室あり
  • ラウンジ

当オフィスの周辺環境

このオフィス物件へのお問い合わせ

このサイトはreCAPTCHAによって保護されており、Googleのプライバシーポリシー利用規約が適用されます。

お電話でのお問い合わせはこちら

0120-19-1925 受付時間:10:00~18:00

同じ坪数&エリアの物件

お問い合せ受付中
【セットアップ 新宿御苑前駅徒歩1分】会議室・フォンブース完備のデザインオフィス

【セットアップ 新宿御苑前駅徒歩1分】会議室・フォンブース完備のデザインオフィス

エリア
新宿区大京町
アクセス
四谷三丁目駅徒歩5分,新宿御苑前駅徒歩6分
坪数
123~133坪
坪単価
26,000~30,000円 / 坪
推奨人数
51~80人
お問い合せ受付中
【セットアップ 四谷三丁目駅徒歩5分】リノベーションオフィスで創造的な働き方を

【セットアップ 四谷三丁目駅徒歩5分】リノベーションオフィスで創造的な働き方を

エリア
新宿区大京町
アクセス
四谷三丁目駅徒歩5分,新宿御苑前徒歩6分
坪数
123~133坪
坪単価
26,000~30,000円 / 坪
推奨人数
51~80人
お問い合せ受付中
【セットアップ 四谷三丁目駅徒歩5分】新宿御苑至近の落ち着いた環境とモダンな内装が魅力

【セットアップ 四谷三丁目駅徒歩5分】新宿御苑至近の落ち着いた環境とモダンな内装が魅力

エリア
新宿区大京町
アクセス
四谷三丁目駅徒歩5分,新宿御苑前駅徒歩6分
坪数
123~133坪
坪単価
26,000~30,000円 / 坪
推奨人数
51~80人
お問い合せ受付中
【セットアップ 四谷三丁目駅徒歩2分】会議室2室・什器付きデザインオフィス

【セットアップ 四谷三丁目駅徒歩2分】会議室2室・什器付きデザインオフィス

エリア
新宿区四谷
アクセス
四谷三丁目駅徒歩2分,曙橋駅徒歩10分
坪数
40~50坪
坪単価
-
推奨人数
11~30人
お問い合せ受付中
【セットアップ 市ヶ谷駅2分】駅近・会議室あり・内装造作済みの高機能オフィス

【セットアップ 市ヶ谷駅2分】駅近・会議室あり・内装造作済みの高機能オフィス

エリア
新宿区市谷田町
アクセス
市ヶ谷駅徒歩2分,牛込神楽坂駅徒歩11分
坪数
45~55坪
坪単価
21,000~25,000円 / 坪
推奨人数
11~30人
お問い合せ受付中
【セットアップ 飯田橋駅7分】会議室・フォンブース完備の洗練された造作済みデザインオフィス

【セットアップ 飯田橋駅7分】会議室・フォンブース完備の洗練された造作済みデザインオフィス

エリア
新宿区新小川町
アクセス
飯田橋駅徒歩7分
坪数
90~100坪
坪単価
23,000~27,000円 / 坪
推奨人数
31~50人

ハイッテの居抜きオフィス移転なら、
移転費用最大0円。期間短縮。
SDGsに貢献にできる。

オフィス・事務所の居抜き退去・入居ができる検索・掲載サービスです。
居抜き退去で原状回復費用を、居抜き入居で内装工事費用を大幅に削減!
採用戦略や事業運営に応じた、最適な移転提案でスタートアップ・ベンチャー企業の成長をサポートします。

お役立ち資料

解約通知書テンプレートを無料ダウンロード

解約通知書テンプレートを無料ダウンロード

オフィス移転の工数を1/3削減!レイアウトを考えるポイント(ガイド)

オフィス移転の工数を1/3削減!レイアウトを考えるポイント(ガイド)

居抜きオフィス移転チェックリスト

居抜きオフィス移転チェックリスト

居抜きオフィス移転完全マニュアル(ガイド)

居抜きオフィス移転完全マニュアル(ガイド)

オフィスプランニングシート【内見・内覧にも使える】

オフィスプランニングシート【内見・内覧にも使える】

5分でわかる原状回復!退去費用0円にする居抜きの魅力(ガイド)

5分でわかる原状回復!退去費用0円にする居抜きの魅力(ガイド)

本当にあった!居抜きオフィス移転トラブル事例5選(ガイド)

本当にあった!居抜きオフィス移転トラブル事例5選(ガイド)

オフィス・事務所移転を進めるためのスケジュールガイドを無料ダウンロード

オフィス・事務所移転を進めるためのスケジュールガイドを無料ダウンロード

面倒な物件探しは、まるっとおまかせ。非公開物件も多数 おまかせ問い合わせはコチラ
お問い合わせ