居抜きオフィス物件検索・掲載サイト【ハイッテ】 > 居抜きオフィス・セットアップオフィスを探す > 【セットアップ 新宿三丁目駅8分】キッチン完備の上質オフィス

【セットアップ 新宿三丁目駅8分】キッチン完備の上質オフィス

更新日:2026.01.14 公開日:2025.11.28
宅地建物取引士 本田
宅地建物取引士 本田
東京都新宿区西新宿は、高層ビルが立ち並ぶビジネス街であり、多くの企業やオフィスが集まっています。また、新宿駅周辺に位置しているため、交通の便が良く、多くの人々が行き交います。

この地域には、多くの大手企業や金融機関がオフィスを構えており、ビジネスに適した環境が整っています。また、近年はIT関連のスタートアップ企業も増えており、特にWebデザインやプログラミングなどの分野で活躍する企業が多くなっています。

この地域にオフィスを構えるスタートアップ企業におすすめなのは、IT関連の企業です。理由としては、新宿駅周辺には多くのIT関連企業が集まっており、人材や情報の交流が盛んであること、また、交通の便が良いことが挙げられます。さらに、新宿区は都心に位置しているため、ビジネスに必要な情報やネットワークにアクセスしやすい環境が整っています。
募集終了

スタッフからのコメント

新宿御苑前駅徒歩1分、キッチン完備の上質セットアップオフィス。詳細は以下をご覧ください。

このオフィスのおすすめポイント

  • 新宿御苑前駅徒歩1分の駅近立地
  • キッチン設備完備で来客対応も充実
  • ダークウッド調の落ち着いた上質な内装
  • ローズゴールドの照明で洗練された空間演出
  • 礼金・償却無しで初期費用を軽減

オフィスの特徴

本物件は、ダークウッド調フローリングとローズゴールドのペンダントライトが調和した、落ち着きと洗練さを兼ね備えた内装が特徴です。
温かみのある木目の床材は長時間の執務でも快適で、従業員の働きやすさに貢献します。
キッチン設備を完備しているため、来客時のお茶出しや従業員の軽食対応など日常の利便性が向上します。
オープンシェルフは収納機能を果たしながら空間を緩やかに区切り、開放感と機能性を両立。
天窓から差し込む自然光が空間全体を明るく照らし、快適な執務環境を実現しています。

こんな企業にオススメ

  • 駅近オフィスで通勤時間を短縮したい企業
  • キッチン設備を活用して来客対応を充実させたい企業
  • 落ち着いた雰囲気の中で集中して業務に取り組みたい企業

当オフィスは、新宿御苑前駅から徒歩1分の好立地に位置し、通勤の利便性と来客対応の両面で高い機能性を発揮します。
キッチン設備を完備しているため、来客時の対応や従業員の福利厚生面でも充実した環境を整えることができます。
礼金・償却が不要のため、移転時の初期コストを大幅に削減できます。
公開情報以外で気になる点などございましたらお気軽にお問い合わせください。内見や、空室確認なども随時承っておりますのでお気軽にご相談ください。

営業担当者

古川 達也

古川 達也

Tatsuya Furukawa
セールス

宅地建物取引士
【東京都知事:第290485号】

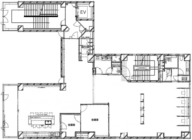
オフィス詳細情報

物件番号 3202
エリア 東京都新宿区西新宿
アクセス 新宿御苑前駅徒歩1分,新宿三丁目駅徒歩8分,四谷三丁目駅徒歩10分,新宿駅徒歩14分
坪数 82~92坪
坪単価 23,000~27,000円 / 坪
月額賃料 2,030,000~2,370,000円
推奨人数 11~30人
オフィスタイプ
築年月 1985年4月
階数 2F
周辺施設 都庁ビル
新宿中央公園
新宿NSビル
こだわり条件

募集条件

敷金 8ヶ月
礼金 0ヶ月
保証金 相談
償却 0ヶ月
更新料 0ヶ月
保証会社 必須
入居可能時期 2026年4月
契約期間 3年

ショート動画

スタッフからのコメント

新宿御苑前駅徒歩1分、キッチン完備の上質セットアップオフィス。詳細は以下をご覧ください。

このオフィスのおすすめポイント

  • 新宿御苑前駅徒歩1分の駅近立地
  • キッチン設備完備で来客対応も充実
  • ダークウッド調の落ち着いた上質な内装
  • ローズゴールドの照明で洗練された空間演出
  • 礼金・償却無しで初期費用を軽減

オフィスの特徴

本物件は、ダークウッド調フローリングとローズゴールドのペンダントライトが調和した、落ち着きと洗練さを兼ね備えた内装が特徴です。
温かみのある木目の床材は長時間の執務でも快適で、従業員の働きやすさに貢献します。
キッチン設備を完備しているため、来客時のお茶出しや従業員の軽食対応など日常の利便性が向上します。
オープンシェルフは収納機能を果たしながら空間を緩やかに区切り、開放感と機能性を両立。
天窓から差し込む自然光が空間全体を明るく照らし、快適な執務環境を実現しています。

こんな企業にオススメ

  • 駅近オフィスで通勤時間を短縮したい企業
  • キッチン設備を活用して来客対応を充実させたい企業
  • 落ち着いた雰囲気の中で集中して業務に取り組みたい企業

当オフィスは、新宿御苑前駅から徒歩1分の好立地に位置し、通勤の利便性と来客対応の両面で高い機能性を発揮します。
キッチン設備を完備しているため、来客時の対応や従業員の福利厚生面でも充実した環境を整えることができます。
礼金・償却が不要のため、移転時の初期コストを大幅に削減できます。
公開情報以外で気になる点などございましたらお気軽にお問い合わせください。内見や、空室確認なども随時承っておりますのでお気軽にご相談ください。

営業担当者

古川 達也

古川 達也

Tatsuya Furukawa
セールス

宅地建物取引士
【東京都知事:第290485号】

当オフィスの設備

  • デザイナーズオフィス
  • フォンブース
  • ファミレス席
  • リノベーションオフィス
  • 駐車場付き
  • 駐輪場あり
  • 築浅
  • 男女別トイレ
  • 会議室あり
  • 耐震
  • バルコニーorテラスor屋上あり
  • スケルトン天井
  • ワンフロア
  • 一棟貸し
  • セントラル空調
  • OAフロア
  • 天井が高い
  • 個別空調
  • 貸会議室あり
  • ラウンジ

当オフィスの周辺環境

似ているオフィス物件のお問い合わせ

このサイトはreCAPTCHAによって保護されており、Googleのプライバシーポリシー利用規約が適用されます。

お電話でのお問い合わせはこちら

0120-19-1925 受付時間:10:00~18:00

同じ坪数&エリアの物件

お問い合せ受付中
【セットアップ 飯田橋駅7分】会議室・フォンブース完備の洗練された造作済みデザインオフィス

【セットアップ 飯田橋駅7分】会議室・フォンブース完備の洗練された造作済みデザインオフィス

エリア
新宿区新小川町
アクセス
飯田橋駅徒歩7分
坪数
90~100坪
坪単価
23,000~27,000円 / 坪
推奨人数
31~50人
お問い合せ受付中
【セットアップ 飯田橋駅7分】充実の共有設備と洗練された内装が魅力のオフィス

【セットアップ 飯田橋駅7分】充実の共有設備と洗練された内装が魅力のオフィス

エリア
新宿区新小川町
アクセス
飯田橋駅徒歩7分
坪数
99~109坪
坪単価
23,000~27,000円 / 坪
推奨人数
31~50人
お問い合せ受付中
【セットアップ 新富町駅徒歩6分】眺望と機能性を兼備!築地エリアのオフィス

【セットアップ 新富町駅徒歩6分】眺望と機能性を兼備!築地エリアのオフィス

エリア
中央区築地
アクセス
築地駅徒歩4分,新富町駅徒歩6分,東銀座駅徒歩10分
坪数
100~110坪
坪単価
22,000~26,000円 / 坪
推奨人数
11~30人31~50人
ハイッテおすすめ
【居抜き 岩本町駅】駅徒歩1分!会議室・ラウンジ等フル装備の『居抜き』オフィス

【居抜き 岩本町駅】駅徒歩1分!会議室・ラウンジ等フル装備の『居抜き』オフィス

エリア
千代田区
アクセス
-
坪数
140~150坪
坪単価
17,000~21,000円 / 坪
推奨人数
51~80人
ハイッテおすすめ
【居抜き 六本木一丁目駅】創造性を刺激する六本木オフィス 複数路線で利便性抜群

【居抜き 六本木一丁目駅】創造性を刺激する六本木オフィス 複数路線で利便性抜群

エリア
港区六本木
アクセス
六本木駅徒歩8分,六本木一丁目駅徒歩4分,麻布十番駅徒歩12分
坪数
97~107坪
坪単価
20,000~24,000円 / 坪
推奨人数
51~80人
お問い合せ受付中
【セットアップ 市ヶ谷駅2分】駅近・会議室あり・内装造作済みの高機能オフィス

【セットアップ 市ヶ谷駅2分】駅近・会議室あり・内装造作済みの高機能オフィス

エリア
新宿区市谷田町
アクセス
市ヶ谷駅徒歩2分,牛込神楽坂駅徒歩11分
坪数
45~55坪
坪単価
21,000~25,000円 / 坪
推奨人数
11~30人

ハイッテの居抜きオフィス移転なら、
移転費用最大0円。期間短縮。
SDGsに貢献にできる。

オフィス・事務所の居抜き退去・入居ができる検索・掲載サービスです。
居抜き退去で原状回復費用を、居抜き入居で内装工事費用を大幅に削減!
採用戦略や事業運営に応じた、最適な移転提案でスタートアップ・ベンチャー企業の成長をサポートします。

お役立ち資料

5分でわかる原状回復!退去費用0円にする居抜きの魅力(ガイド)

5分でわかる原状回復!退去費用0円にする居抜きの魅力(ガイド)

居抜きオフィス移転完全マニュアル(ガイド)

居抜きオフィス移転完全マニュアル(ガイド)

居抜きオフィス移転チェックリスト

居抜きオフィス移転チェックリスト

解約通知書テンプレートを無料ダウンロード

解約通知書テンプレートを無料ダウンロード

オフィス・事務所移転を進めるためのスケジュールガイドを無料ダウンロード

オフィス・事務所移転を進めるためのスケジュールガイドを無料ダウンロード

オフィスプランニングシート【内見・内覧にも使える】

オフィスプランニングシート【内見・内覧にも使える】

オフィス移転の工数を1/3削減!レイアウトを考えるポイント(ガイド)

オフィス移転の工数を1/3削減!レイアウトを考えるポイント(ガイド)

本当にあった!居抜きオフィス移転トラブル事例5選(ガイド)

本当にあった!居抜きオフィス移転トラブル事例5選(ガイド)

面倒な物件探しは、まるっとおまかせ。非公開物件も多数 おまかせ問い合わせはコチラ
お問い合わせ