洗練された内装が完備されたセットアップオフィスで、快適なビジネス環境を総合的に提供いたします。
細部までこだわり抜かれた機能美を兼ね備えた空間の詳細は、以下をご覧ください。
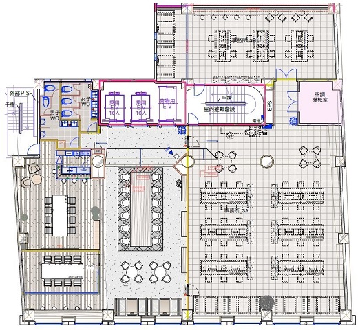
このオフィスのおすすめポイント
- 四谷三丁目駅より徒歩5分の軽快なアクセス
- 会議室やパントリーが設置済みのセットアップ仕様
- 開放的な共用ラウンジが利用可能な充実の共有設備
- 日差しを調整できるウッドブラインドを備えた窓際デスク
- 機械警備や駐車場設備を備えた安心と利便の両立
オフィスの特徴
大規模なリニューアルを経て一新された外観とエントランスは、デザイン性に優れ、来訪者に誠実でモダンな印象を与えます 。
室内は木目調のフローリングとコンクリート調の天井が調和し、温かみと洗練さを兼ね備えた居心地の良い空間 。窓際には集中作業に適したカウンター席や、打ち合わせに最適なボックス席が配置されており、場所を選ばない柔軟な働き方をサポート。
周辺は新宿御苑にほど近く、都心の利便性を享受しながらも落ち着いた環境で業務に励むことが可能です 。充実したインフラと機能的なレイアウトが、従業員のエンゲージメント向上に寄与します。
こんな企業にオススメ
- 内装構築のコストや手間を抑えてスムーズに移転したい企業
- 従業員の交流を促す開放的な共用スペースを重視する企業
- 都心の主要拠点へ迅速に移動できる立地を求める企業
本物件は、デザイン性と機能性を高次元で融合させたワークプレイスです。
公開情報以外で気になる点などございましたらお気軽にお問い合わせください。
内見や、空室確認なども随時承っておりますのでお気軽にご相談ください。
