洗練された家具付きの内装が整い、業務開始までのスピード感を重視できるオフィスです。
上質な共有スペースと充実の設備が、日々のビジネスシーンを華やかに彩ります。
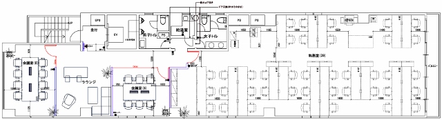
詳細は以下をご覧ください。
このオフィスのおすすめポイント
- 什器付きのセットアップ仕様で初期費用と工期を大幅に削減可能
- 最大8名まで収容可能な会議室を完備し社内会議や来客対応も円滑
- 複数路線が利用可能で都内主要エリアへの移動もスムーズな好立地
- 男女別トイレが専有部に設置されておりプライバシーと衛生面に配慮
- リラックスして打ち合わせや休憩ができるモダンなラウンジを併設
オフィスの特徴
2021年に内装リニューアルした室内は、清潔感にあふれ、洗練されたモダンなデザインが特徴。
エントランスから一歩足を踏み入れると、温かみのある木目調の壁面と柔らかな照明が、訪れる来客に安心感と信頼感を与えます。執務スペースは広々としており、グレーを基調とした落ち着いた配色のカーペットが集中力を高める環境を提供します。また、大きな窓からは自然光がたっぷりと差し込み、開放的な雰囲気の中で業務に励むことができます。
周辺は活気あるビジネス街でありながら、落ち着いた環境も兼ね備えており、ランチタイムの飲食店選びや仕事終わりの利便性も抜群のロケーションです。
こんな企業にオススメ
- 移転に伴う内装工事の負担を軽減し迅速に事業を開始したい企業
- 来客が多く第一印象を左右する受付や会議室の質を重視する企業
- 従業員のモチベーション向上と快適な執務環境を両立させたい企業
本物件は、デザイン性と機能性を兼ね備えたハイグレードなワークスペースを提供いたします。
公開情報以外で気になる点などございましたらお気軽にお問い合わせください。
内見や、空室確認なども随時承っておりますのでお気軽にご相談ください。
