渋谷エリアの中でも落ち着いた環境にありながら、複数路線利用可能な利便性を兼ね備えた居抜きオフィスです。
スタイリッシュな外観と機能的な内装設備が整い、すぐにでも業務を開始できる環境が魅力です。窓面が多く明るい執務空間で、快適なワークスタイルを実現できます。詳細は以下をご覧ください。
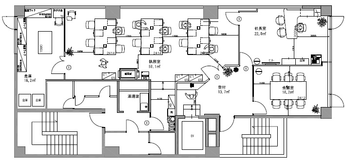
このオフィスのおすすめポイント
- 渋谷駅から徒歩圏内の好立地
- 居抜きでのお引き渡しが可能なため、内装費を抑えて速やかな入居が可能
- 窓面が多く、明るく開放的な空間
- 会議室完備で来客対応もスムーズ
- モダンでスタイリッシュな外観デザイン
- 複数路線利用可能でアクセス至便
- 機械警備システム導入済み
- 駐車場設備あり(来客や通勤にも便利)
- トイレ・給湯室等の面積が含まれた効率的なレイアウト
- 地下に月極駐車場もあり、来客や通勤にご利用できます
オフィスの特徴
当オフィスは、モダンで洗練された外観が印象的なビルに位置しています。ガラス面を多用したスタイリッシュなファサードは、来訪者に先進的で信頼感のある企業イメージを与えることができます。
内装は既に整っており、執務スペースには複数のデスクと会議室が設置されています。白を基調とした明るい空間に、落ち着いたグレーのカーペットがアクセントとなり、集中力を高める環境が整っています。窓からの採光も十分で、自然光あふれる快適な執務環境を実現しています。
エントランスホールは高級感のある仕上げで、世界地図をモチーフにしたガラス張りの会議室など、グローバルな視点を持つ企業にふさわしい空間設計となっています。
渋谷の中でも比較的静かなエリアに位置しており、都心の利便性を享受しながらも落ち着いた環境で業務に取り組むことができます。周辺には飲食店やコンビニエンスストアも充実しており、日常の利便性も確保されています。
こんな企業にオススメ
- すぐに業務を開始したい成長企業
- 初期投資を抑えて移転したい企業
- アクセスの良さを重視する企業
- 来客対応が多い企業
- 明るく開放的なオフィス環境を求める企業
- セキュリティを重視する企業
- 少人数から中規模のチームを持つ企業
- グローバルな視点を持つ企業
- ブランドイメージを大切にする企業
- 車での通勤や来客対応がある企業
本物件は、渋谷エリアでオフィス移転をご検討中の企業様に最適な居抜き物件です。既存の内装設備をそのままご活用いただけるため、初期費用を大幅に削減しながら、質の高いオフィス環境を実現できます。
特に、会議室やワークスペースが既に整備されているため、入居後すぐに業務を開始することが可能です。モダンな外観と機能的な内装の組み合わせは、従業員のモチベーション向上にも寄与し、採用活動においても有利に働くことでしょう。
渋谷という立地の利便性と、落ち着いた環境のバランスが取れた当オフィスは、事業の成長を支える理想的な拠点となります。
公開情報以外で気になる点などございましたらお気軽にお問い合わせください。内見や、空室確認なども随時承っておりますのでお気軽にご相談ください。

