居抜きオフィス物件検索・掲載サイト【ハイッテ】 > 居抜きオフィス・セットアップオフィスを探す > 【居抜き 代々木駅徒歩8分】ソファラウンジ付き・来客対応に最適なオフィス

【居抜き 代々木駅徒歩8分】ソファラウンジ付き・来客対応に最適なオフィス

更新日:2026.04.02 公開日:2025.08.28
宅地建物取引士 本田
宅地建物取引士 本田
東京都渋谷区千駄ケ谷は、若者文化や流行の発信地として知られています。渋谷駅周辺には、ファッションや音楽、アートなどのカルチャーに関するショップやイベントスペースが多くあり、多くの若者が集まります。また、近隣には明治神宮や代々木公園などの観光スポットもあります。
居抜き入居募集中

スタッフからのコメント

広々としたフロアと落ち着いたラウンジ空間を備えた居抜きオフィスです。
駅近でアクセス抜群の好立地に加え、来客対応にも便利な低層階の利点を活かせます。
詳細は以下をご覧ください。

このオフィスのおすすめポイント

  • 北参道駅徒歩4分・国立競技場駅徒歩5分で通勤・来客ともに便利
  • ゆったりとしたソファラウンジで来客対応やリフレッシュに最適
  • 会議室2室完備で社内外のミーティングに対応
  • 低層階で来客のご案内がスムーズ
  • 24時間利用可能・駐輪場完備で多様な通勤スタイルに対応

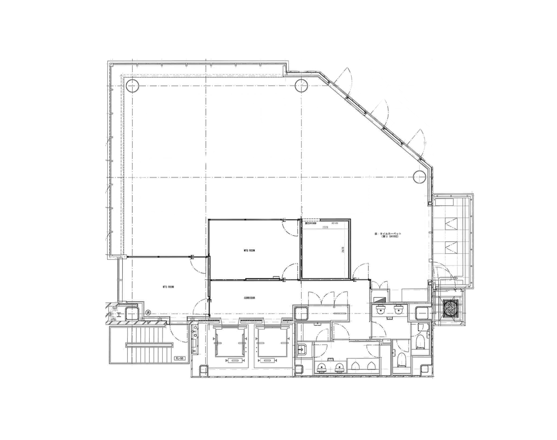
オフィスの特徴

当オフィスは、開放的なフロア設計と快適なラウンジスペースが魅力の居抜き物件です。

エントランス付近には上質なソファを配したラウンジがあり、来客をお迎えする際にも好印象を与えられます。
執務エリアは窓面からの採光を活かした明るい空間で、チームでの業務にも集中作業にも対応できるレイアウトとなっています。低層階に位置するため、お客様のご案内がスムーズに行える点も魅力です。

副都心線・大江戸線の2路線が利用でき、渋谷・新宿方面へのアクセスも良好。駐輪場も完備しており、自転車通勤にも対応しています。

こんな企業にオススメ

  • 来客が多く、スムーズなご案内を重視する企業
  • 落ち着いたラウンジ空間でチームの交流を促進したい企業
  • 居抜き入居で初期費用を抑えながら即稼働したい企業

本物件は、機能性とホスピタリティを両立した居抜きオフィスです。来客対応を重視される企業様に特におすすめの空間となっております。
公開情報以外で気になる点などございましたらお気軽にお問い合わせください。
内見や、空室確認なども随時承っておりますのでお気軽にご相談ください。

営業担当者

本田 司

本田 司

Tsukasa Honda
セールス

宅地建物取引士

【大阪:第125679号】

オフィス詳細情報

物件番号 3243
エリア 東京都渋谷区千駄ケ谷
アクセス 北参道駅徒歩4分,国立競技場駅徒歩5分,千駄ヶ谷駅徒歩5分,代々木駅徒歩8分
坪数 59~69坪
坪単価 お問い合わせください
月額賃料 お問い合わせください
推奨人数 31~50人
オフィスタイプ
築年月 2022年2月
階数 2F
周辺施設 新宿御苑
明治神宮外苑
パークコート神宮北参道ザタワー
こだわり条件

募集条件

敷金 6ヶ月
礼金 0ヶ月
保証金 相談
償却 相談
更新料 相談
保証会社 必須
入居可能時期 2026年7月
契約期間 2年

ショート動画

スタッフからのコメント

広々としたフロアと落ち着いたラウンジ空間を備えた居抜きオフィスです。
駅近でアクセス抜群の好立地に加え、来客対応にも便利な低層階の利点を活かせます。
詳細は以下をご覧ください。

このオフィスのおすすめポイント

  • 北参道駅徒歩4分・国立競技場駅徒歩5分で通勤・来客ともに便利
  • ゆったりとしたソファラウンジで来客対応やリフレッシュに最適
  • 会議室2室完備で社内外のミーティングに対応
  • 低層階で来客のご案内がスムーズ
  • 24時間利用可能・駐輪場完備で多様な通勤スタイルに対応

オフィスの特徴

当オフィスは、開放的なフロア設計と快適なラウンジスペースが魅力の居抜き物件です。

エントランス付近には上質なソファを配したラウンジがあり、来客をお迎えする際にも好印象を与えられます。
執務エリアは窓面からの採光を活かした明るい空間で、チームでの業務にも集中作業にも対応できるレイアウトとなっています。低層階に位置するため、お客様のご案内がスムーズに行える点も魅力です。

副都心線・大江戸線の2路線が利用でき、渋谷・新宿方面へのアクセスも良好。駐輪場も完備しており、自転車通勤にも対応しています。

こんな企業にオススメ

  • 来客が多く、スムーズなご案内を重視する企業
  • 落ち着いたラウンジ空間でチームの交流を促進したい企業
  • 居抜き入居で初期費用を抑えながら即稼働したい企業

本物件は、機能性とホスピタリティを両立した居抜きオフィスです。来客対応を重視される企業様に特におすすめの空間となっております。
公開情報以外で気になる点などございましたらお気軽にお問い合わせください。
内見や、空室確認なども随時承っておりますのでお気軽にご相談ください。

営業担当者

本田 司

本田 司

Tsukasa Honda
セールス

宅地建物取引士

【大阪:第125679号】

当オフィスの設備

  • デザイナーズオフィス
  • フォンブース
  • ファミレス席
  • リノベーションオフィス
  • 駐車場付き
  • 駐輪場あり
  • 築浅
  • 男女別トイレ
  • 会議室あり
  • 耐震
  • バルコニーorテラスor屋上あり
  • スケルトン天井
  • ワンフロア
  • 一棟貸し
  • セントラル空調
  • OAフロア
  • 天井が高い
  • 個別空調
  • 貸会議室あり
  • ラウンジ

当オフィスの周辺環境

このオフィス物件へのお問い合わせ

このサイトはreCAPTCHAによって保護されており、Googleのプライバシーポリシー利用規約が適用されます。

お電話でのお問い合わせはこちら

0120-19-1925 受付時間:10:00~18:00

同じ坪数&エリアの物件

お問い合せ受付中
【セットアップ 表参道駅4分】上質な素材感と機能性が融合した思想を育む空間

【セットアップ 表参道駅4分】上質な素材感と機能性が融合した思想を育む空間

エリア
渋谷区神宮前
アクセス
表参道駅徒歩4分,渋谷駅徒歩15分
坪数
58~68坪
坪単価
-
推奨人数
11~30人
お問い合せ受付中
【セットアップ 恵比寿駅7分】会議室とWEBブース完備の自由度の高いワンフロアオフィス

【セットアップ 恵比寿駅7分】会議室とWEBブース完備の自由度の高いワンフロアオフィス

エリア
渋谷区東
アクセス
恵比寿駅徒歩7分,代官山駅徒歩9分
坪数
16~26坪
坪単価
35,000~39,000円 / 坪
推奨人数
10人以下11~30人
お問い合せ受付中
【セットアップ 恵比寿駅7分】1フロア占有の独立性と充実のWEB会議環境を備えた高機能オフィス

【セットアップ 恵比寿駅7分】1フロア占有の独立性と充実のWEB会議環境を備えた高機能オフィス

エリア
渋谷区東
アクセス
恵比寿駅徒歩7分,代官山駅徒歩9分
坪数
16~26坪
坪単価
38,000~42,000円 / 坪
推奨人数
10人以下11~30人
お問い合せ受付中
【セットアップ 神泉駅4分】多様な共有部を備えたスモールオフィス

【セットアップ 神泉駅4分】多様な共有部を備えたスモールオフィス

エリア
渋谷区松濤
アクセス
神泉駅徒歩4分,渋谷駅徒歩10分
坪数
-
坪単価
-
ハイッテおすすめ
【居抜き 恵比寿駅徒歩6分】会議室3室・受付設置済みオフィス

【居抜き 恵比寿駅徒歩6分】会議室3室・受付設置済みオフィス

エリア
渋谷区東
アクセス
恵比寿駅徒歩6分
坪数
86~96坪
坪単価
34,000~38,000円 / 坪
推奨人数
31~50人
お問い合せ受付中
【セットアップ 渋谷駅徒歩圏】敷金0&会議室完備の即入居可オフィス

【セットアップ 渋谷駅徒歩圏】敷金0&会議室完備の即入居可オフィス

エリア
渋谷区東
アクセス
渋谷駅徒歩9分
坪数
49~59坪
坪単価
-
推奨人数
11~30人

ハイッテの居抜きオフィス移転なら、
移転費用最大0円。期間短縮。
SDGsに貢献にできる。

オフィス・事務所の居抜き退去・入居ができる検索・掲載サービスです。
居抜き退去で原状回復費用を、居抜き入居で内装工事費用を大幅に削減!
採用戦略や事業運営に応じた、最適な移転提案でスタートアップ・ベンチャー企業の成長をサポートします。

お役立ち資料

オフィス移転の工数を1/3削減!レイアウトを考えるポイント(ガイド)

オフィス移転の工数を1/3削減!レイアウトを考えるポイント(ガイド)

居抜きオフィス移転完全マニュアル(ガイド)

居抜きオフィス移転完全マニュアル(ガイド)

居抜きオフィス移転チェックリスト

居抜きオフィス移転チェックリスト

オフィスプランニングシート【内見・内覧にも使える】

オフィスプランニングシート【内見・内覧にも使える】

本当にあった!居抜きオフィス移転トラブル事例5選(ガイド)

本当にあった!居抜きオフィス移転トラブル事例5選(ガイド)

オフィス・事務所移転を進めるためのスケジュールガイドを無料ダウンロード

オフィス・事務所移転を進めるためのスケジュールガイドを無料ダウンロード

5分でわかる原状回復!退去費用0円にする居抜きの魅力(ガイド)

5分でわかる原状回復!退去費用0円にする居抜きの魅力(ガイド)

解約通知書テンプレートを無料ダウンロード

解約通知書テンプレートを無料ダウンロード

面倒な物件探しは、まるっとおまかせ。非公開物件も多数 おまかせ問い合わせはコチラ
お問い合わせ