北参道駅徒歩4分の好立地に、大規模なチーム運営に最適な広々とした執務スペースが誕生します。
組織の成長に対応できるゆとりある空間設計で、部門間の連携を促進しながら、フルセットアップオプションにより充実した設備を整えた状態での入居も実現可能です。
成長企業の組織拡大期を力強く支える、機能的なオフィス環境をご提供します。詳細は以下をご覧ください。
このオフィスのおすすめポイント
- 北参道駅徒歩4分の好立地で全国から人材採用しやすい
- 広々とした執務スペースでレイアウトの自由度が極めて高い
- フルセットアップオプション対応で大規模移転も効率化
- 千駄ヶ谷・国立競技場・代々木の各駅も徒歩圏内で複数路線利用可能
- 閑静な住宅街に隣接し落ち着いたビジネス環境を実現
- 会議室・集中ブース・リフレッシュスペース等の充実した共用設備
- LED照明採用で省エネルギーと快適性を両立
- 24時間利用可能で多様な勤務形態に対応
- 国立競技場エリアで企業イメージ向上にも寄与する好立地
- 2026年3月入居可能で十分な準備期間を確保できる
オフィスの特徴
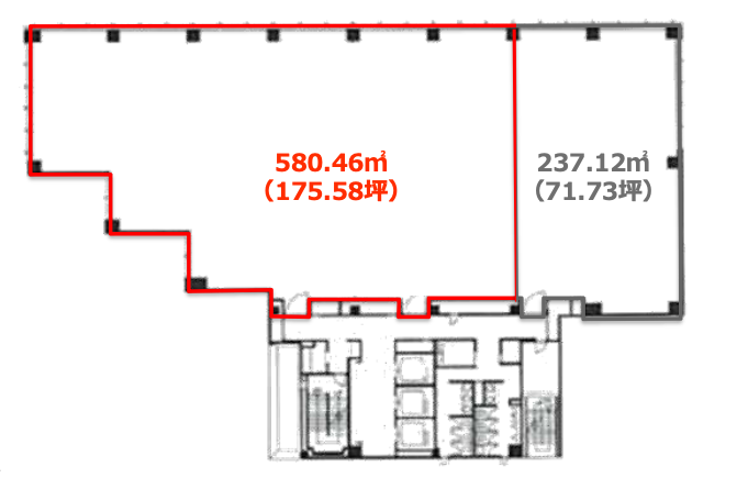
当オフィスは、広々とした執務スペースが最大の魅力で、大規模なチーム運営に必要な機能を効率的に配置できます。十分な広さを確保できるため、オープンな執務エリア、ミーティングスペース、集中作業ゾーン、リフレッシュエリアなど、多様な用途に応じた柔軟なレイアウトが実現可能です。
外観は現代的で洗練されたデザインが企業の成長力をアピールし、来訪者に好印象を与えます。内装もモダンで開放的な雰囲気が従業員のモチベーションを高め、創造性を刺激します。フルセットアップオプションを選択すれば、大規模な移転でも効率的に進められ、移転後すぐに本格的な業務を開始できます。広い空間は部門間の物理的な距離を縮め、コミュニケーションを活性化させます。
北参道駅徒歩4分という立地は、全国各地からの優秀な人材採用に大きなアドバンテージとなり、複数路線が利用可能なため様々なエリアからの通勤にも対応できます。閑静な環境は大人数でも集中して業務に取り組め、ビジネスの生産性を高めます。
こんな企業にオススメ
- 大規模なチーム体制で業務を展開する企業
- 急成長を遂げており大幅な人員増加を見込む企業
- 複数の部門やチームを近接配置してシナジーを生み出したい企業
- 部門間の連携強化とコミュニケーション活性化を図りたい企業
- オープンで風通しの良い組織文化を実現したい企業
- 採用活動が活発で継続的な組織拡大を計画している企業
- 大規模プロジェクトをチーム一体となって推進する企業
- 定期的にミーティングやイベントを開催する企業
- 柔軟なレイアウト変更で組織変化に対応したい企業
- 洗練されたオフィス環境で企業ブランドを強化したい企業
本物件は、広々とした執務スペースを確保でき、大規模なチーム運営に最適なオフィス環境です。
北参道駅徒歩4分という抜群の立地は、従業員の通勤利便性を高めるだけでなく、全国各地からの優秀な人材採用を強力に支援します。広い空間は組織の急成長や構造変化にも柔軟に対応でき、将来的な人員増加にも余裕をもって対応可能です。フルセットアップオプションを活用すれば、大規模な移転でも内装工事や家具手配の負担を大幅に削減でき、移転後すぐに本格稼働できます。
十分な広さがあることで、部門やチームを近接配置でき、コミュニケーションが自然と生まれやすい環境を作れます。閑静な環境は大人数でも落ち着いて業務に集中でき、モダンな内装は従業員の満足度と企業への誇りを高めます。充実した共用設備も利用でき、多様な働き方をサポートします。組織拡大期の企業にとって、成長の余地を十分に確保できる理想的な空間です。
公開情報以外で気になる点などございましたらお気軽にお問い合わせください。内見や、空室確認なども随時承っておりますのでお気軽にご相談ください。

