表参道エリアで洗練された居抜きオフィスが登場しました。スタイリッシュな内装と充実した設備がそのまま利用でき、初期費用を大幅に削減しながら、すぐに快適なオフィス環境を実現できます。
成長企業の新たな拠点として、理想的な物件です。詳細は以下をご覧ください。
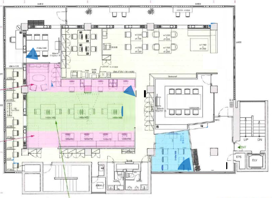
このオフィスのおすすめポイント
- 表参道駅徒歩3分・明治神宮前駅徒歩6分のダブルアクセス
- 居抜きで初期費用を大幅削減・即入居可能
- 会議室2室・フォンブース完備で機能的なレイアウト
- 受付エリアとベンチスペースで来客対応も万全
- リフレッシュスペース・集中ブース設置済み
- 執務エリアは窓側配置で明るく開放的
- 木目調の温かみある内装デザイン
- グリーンガラスブロックが印象的なエントランス周り
- 程よい規模感でコミュニケーションが取りやすい環境
- 原宿・表参道の創造的なエリアに立地
オフィスの特徴
本物件の最大の魅力は、デザイン性と機能性を兼ね備えた居抜きオフィスである点です。エントランスに配されたグリーンガラスブロックと木目調の内装が、来訪者に洗練された印象を与えます。
執務エリアは窓側に配置され、自然光が差し込む明るく開放的な空間となっています。会議室2室、フォンブース、リフレッシュスペース、集中ブースといった多様なワークスペースが既に整備されており、従業員の生産性向上に貢献します。
居抜き物件のため、什器や設備をそのまま活用でき、移転にかかる時間とコストを大幅に削減できます。表参道という創造性あふれるエリアに位置し、2路線利用可能なアクセスの良さも大きな強みです。
周辺にはカフェやレストランが充実し、ビジネスランチや打ち合わせにも便利な環境が整っています。温かみのある木目調の内装は、従業員にとって居心地の良い職場環境を提供し、企業文化の醸成にも寄与します。
こんな企業にオススメ
- 初期投資を抑えて質の高いオフィスを求める企業
- スピーディーな移転・開設を希望する企業
- デザイン性の高い空間でブランディングを重視する企業
- 程よい規模感でチームワークを大切にする企業
- 表参道エリアのクリエイティブな環境を活かしたい企業
- 来客対応が多く、印象的な受付スペースを求める企業
- 多様な働き方に対応できる環境を整えたい企業
- 従業員の満足度向上を重視する企業
- 2路線利用可能な好立地を求める企業
- 周辺環境の利便性を重視する成長企業
本物件は、表参道エリアの創造的な環境と、機能的な居抜きオフィスの利点を最大限に活かせる物件です。既存の内装や設備をそのまま利用できるため、移転にかかる時間を大幅に短縮し、すぐに事業活動を開始できます。会議室やフォンブース、リフレッシュスペースなど、現代のワークスタイルに必要な設備が整っており、追加投資なしで快適な職場環境を実現できます。
グリーンガラスブロックを使用したエントランスや、温かみのある木目調の内装は、企業のイメージアップにも貢献します。
表参道駅から徒歩3分という立地は、採用面でも大きなアドバンテージとなり、優秀な人材の確保にもつながります。当オフィスは、コスト効率と品質の両立を実現し、企業の成長を加速させる理想的な環境を提供します。
公開情報以外で気になる点などございましたらお気軽にお問い合わせください。内見や、空室確認なども随時承っておりますのでお気軽にご相談ください。

