原宿エリアの中心地に位置する、洗練されたデザインと機能性を兼ね備えたオフィススペースをご紹介します。
コンクリート打ちっぱなしの天井と木目調のアクセントが織りなすモダンな空間は、クリエイティブな発想を生み出す環境として最適です。詳細は以下をご覧ください。
このオフィスのおすすめポイント
- 原宿駅徒歩7分、明治神宮前駅徒歩6分の好立地
- 敷金0ヶ月
- 内装・家具付きですぐに業務開始可能
- スケルトン天井による開放的な空間設計
- 複数の会議室とフォンブース完備
- 充実した共用スペースでコミュニケーション促進
- 最新の空調設備で年間を通じて快適な環境
- セキュリティ完備で24時間安心して利用可能
- 光回線引込可能で高速インターネット環境構築
- 保証会社利用で初期費用を大幅削減可能
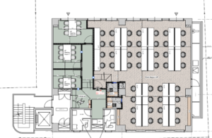
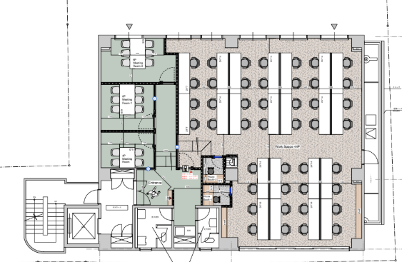
オフィスの特徴
当オフィスの最大の特徴は、コンクリート打ちっぱなしの天井と温かみのある木目調の内装が調和した、洗練されたデザイン空間です。エントランスから一歩足を踏み入れると、白を基調とした明るい空間に、縦格子のパーティションが優しいアクセントを添えています。
執務エリアは開放的なレイアウトで、チーム間のコミュニケーションを自然に促進。複数の会議室は、ガラス窓で区切られており、プライバシーを保ちながらも圧迫感のない設計となっています。個別のフォンブースも完備され、集中作業や重要な電話にも対応可能です。
原宿という都心の一等地にありながら、緑豊かな環境に囲まれた立地は、創造的な仕事環境を提供。周辺には多様な飲食店やカフェが点在し、ランチタイムや打ち合わせの選択肢も豊富です。最新の設備と洗練されたデザインが、企業の成長をサポートする理想的なオフィス環境を実現しています。
こんな企業にオススメ
- スタートアップから中堅規模まで幅広い成長企業
- クリエイティブな発想を重視する企業
- チームワークとコミュニケーションを大切にする企業
- 初期投資を抑えて質の高いオフィスを求める企業
- 都心へのアクセスを重視する企業
- 社員の働きやすさを追求する企業
- フレキシブルな働き方を推進する企業
- ブランディングを意識した環境づくりを目指す企業
- 来客対応が多く、印象的な空間を必要とする企業
- 即入居を希望する急成長中の企業
本物件は、原宿エリアの中でも特に利便性の高い立地にあり、2路線利用可能なアクセスの良さが魅力です。内装・家具付きという大きなメリットにより、入居後すぐに業務を開始できるため、スピーディーな事業展開を目指す企業様に最適です。
スケルトン天井がもたらす開放感と、木目調の温かみある内装が融合した空間は、社員のモチベーション向上にも貢献します。フリーレント相談可能、敷金0ヶ月という好条件により、初期コストを大幅に削減できる点も見逃せません。充実した会議室やフォンブースなどの設備は、多様な働き方に対応し、生産性の向上をサポートします。
公開情報以外で気になる点などございましたらお気軽にお問い合わせください。内見や、空室確認なども随時承っておりますのでお気軽にご相談ください。

