居抜きオフィス物件検索・掲載サイト【ハイッテ】 > 居抜きオフィス・セットアップオフィスを探す > キッチンやソーシャルスペースを完備。商談やリモート会議も行えます!

キッチンやソーシャルスペースを完備。商談やリモート会議も行えます!

更新日:2025.10.06 公開日:2025.08.18
宅地建物取引士 本田
宅地建物取引士 本田
東京都渋谷区本町は、渋谷駅から徒歩圏内に位置する静かな住宅街です。周辺には多くの公園や緑地があり、自然に囲まれた環境で暮らすことができます。また、商店街やスーパーマーケット、コンビニエンスストアなどの生活に必要な施設も充実しています。
募集終了

スタッフからのコメント

フルリノベーションされた洗練された空間に、充実した共有設備を備えている開放的なオフィスです。
都心の喧騒から離れた落ち着いた環境で、集中して業務に取り組める理想的なワークスペースとなっています。詳細は以下をご覧ください。

このオフィスのおすすめポイント

  • 共用キッチン完備で軽食や飲み物も楽しめる
  • 会議室を備え、商談やミーティングにも対応
  • 木材を活かした温かみのあるデザイン
  • 無料のフリードリンクサービスをご利用できます
  • コンパクトな規模で少人数チームに最適
  • 郵便物・配送物のお預かりサービスあり

オフィスの特徴

本物件は、フルリノベーションにより生まれ変わった空間は、木材をふんだんに使用した温かみのあるデザインが特徴的です。
エントランスから一歩足を踏み入れると、洗練されたインテリアがお客様をお迎えします。
執務スペースは自然光が豊富に差し込む設計となっており、明るく開放的な環境で業務に集中できます。

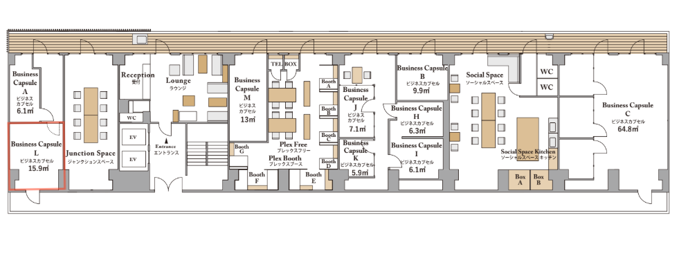
一般的なコワーキングスペースにない、スペース・サービスとして、キッチンスペースやソーシャルスペースなどを完備。商談やリモート会議も行えます。会員専用ラウンジもあるため、休憩・軽食などで活用できます。多様な働き方に寄り添うコワーキングスペースなので、ワークスペース+α を求める方におすすめです。
コンパクトながらも機能的にまとめられた設計により、少人数のチームでも快適に過ごせる環境が整っています。

こんな企業にオススメ

  • 静かな環境で集中して業務に取り組みたい企業
  • 少人数でアットホームな雰囲気を大切にする企業
  • クリエイティブな発想を重視する企業
  • 来客対応もスマートに行いたい企業
  • リフレッシュできる環境を求める企業
  • 洗練された空間でブランディングを高めたい企業
  • フレキシブルな働き方を推進する企業
  • コストパフォーマンスを重視する成長企業
  • チームワークを大切にする企業
  • 新しい働き方にチャレンジしたい企業

本物件は、少人数のチームでスタートアップを立ち上げる方、サテライトオフィスをお探しの方、クリエイティブな環境で新しいビジネスを展開したい方など、様々なニーズにお応えできる物件です。
公開情報以外で気になる点などございましたらお気軽にお問い合わせください。内見や、空室確認なども随時承っておりますのでお気軽にご相談ください。

営業担当者

本田 司

本田 司

Tsukasa Honda
セールス

宅地建物取引士

【大阪:第125679号】

オフィス詳細情報

物件番号 3046
エリア 東京都渋谷区本町
アクセス 初台駅徒歩5分
坪数 -1~9坪
坪単価 25,000~29,000円 / 坪
月額賃料 130,000~140,000円
オフィスタイプ
階数 3F
周辺施設 新国立劇場
東京オペラシティ
新宿パークタワー
こだわり条件

募集条件

敷金 0ヶ月
礼金 0ヶ月
保証金 1ヶ月
償却 0ヶ月
更新料 0ヶ月
保証会社 原則加入義務無し
入居可能時期 即日
契約期間 相談

ショート動画

スタッフからのコメント

フルリノベーションされた洗練された空間に、充実した共有設備を備えている開放的なオフィスです。
都心の喧騒から離れた落ち着いた環境で、集中して業務に取り組める理想的なワークスペースとなっています。詳細は以下をご覧ください。

このオフィスのおすすめポイント

  • 共用キッチン完備で軽食や飲み物も楽しめる
  • 会議室を備え、商談やミーティングにも対応
  • 木材を活かした温かみのあるデザイン
  • 無料のフリードリンクサービスをご利用できます
  • コンパクトな規模で少人数チームに最適
  • 郵便物・配送物のお預かりサービスあり

オフィスの特徴

本物件は、フルリノベーションにより生まれ変わった空間は、木材をふんだんに使用した温かみのあるデザインが特徴的です。
エントランスから一歩足を踏み入れると、洗練されたインテリアがお客様をお迎えします。
執務スペースは自然光が豊富に差し込む設計となっており、明るく開放的な環境で業務に集中できます。

一般的なコワーキングスペースにない、スペース・サービスとして、キッチンスペースやソーシャルスペースなどを完備。商談やリモート会議も行えます。会員専用ラウンジもあるため、休憩・軽食などで活用できます。多様な働き方に寄り添うコワーキングスペースなので、ワークスペース+α を求める方におすすめです。
コンパクトながらも機能的にまとめられた設計により、少人数のチームでも快適に過ごせる環境が整っています。

こんな企業にオススメ

  • 静かな環境で集中して業務に取り組みたい企業
  • 少人数でアットホームな雰囲気を大切にする企業
  • クリエイティブな発想を重視する企業
  • 来客対応もスマートに行いたい企業
  • リフレッシュできる環境を求める企業
  • 洗練された空間でブランディングを高めたい企業
  • フレキシブルな働き方を推進する企業
  • コストパフォーマンスを重視する成長企業
  • チームワークを大切にする企業
  • 新しい働き方にチャレンジしたい企業

本物件は、少人数のチームでスタートアップを立ち上げる方、サテライトオフィスをお探しの方、クリエイティブな環境で新しいビジネスを展開したい方など、様々なニーズにお応えできる物件です。
公開情報以外で気になる点などございましたらお気軽にお問い合わせください。内見や、空室確認なども随時承っておりますのでお気軽にご相談ください。

営業担当者

本田 司

本田 司

Tsukasa Honda
セールス

宅地建物取引士

【大阪:第125679号】

当オフィスの設備

  • デザイナーズオフィス
  • フォンブース
  • ファミレス席
  • リノベーションオフィス
  • 駐車場付き
  • 駐輪場あり
  • 築浅
  • 男女別トイレ
  • 会議室あり
  • 耐震
  • バルコニーorテラスor屋上あり
  • スケルトン天井
  • ワンフロア
  • 一棟貸し
  • セントラル空調
  • OAフロア
  • 天井が高い
  • 個別空調
  • 貸会議室あり
  • ラウンジ

当オフィスの周辺環境

似ているオフィス物件のお問い合わせ

このサイトはreCAPTCHAによって保護されており、Googleのプライバシーポリシー利用規約が適用されます。

お電話でのお問い合わせはこちら

0120-19-1925 受付時間:10:00~18:00

同じ坪数&エリアの物件

お問い合せ受付中
【フルセットアップ 表参道駅3分】テラス付×即入居可オフィス

【フルセットアップ 表参道駅3分】テラス付×即入居可オフィス

エリア
渋谷区神宮前
アクセス
表参道駅徒歩3分,渋谷駅徒歩15分
坪数
3~13坪
坪単価
44,000~48,000円 / 坪
推奨人数
10人以下
お問い合せ受付中
【セットアップ 恵比寿駅】8名用会議室完備の洗練オフィス

【セットアップ 恵比寿駅】8名用会議室完備の洗練オフィス

エリア
渋谷区東
アクセス
恵比寿駅徒歩7分,代官山駅徒歩9分,渋谷駅徒歩12分
坪数
57~67坪
坪単価
26,000~30,000円 / 坪
推奨人数
31~50人
お問い合せ受付中
代官山駅5分&敷金なし!天井高4m超の開放的セットアップオフィス

代官山駅5分&敷金なし!天井高4m超の開放的セットアップオフィス

エリア
渋谷区代官山町
アクセス
代官山駅徒歩5分,恵比寿駅徒歩10分,渋谷駅徒歩10分
坪数
40~50坪
坪単価
36,000~40,000円 / 坪
推奨人数
11~30人
お問い合せ受付中
渋谷アドレス駅近!充実設備とデザイン性兼備の少人数向け空間

渋谷アドレス駅近!充実設備とデザイン性兼備の少人数向け空間

エリア
渋谷区本町
アクセス
初台駅徒歩6分
坪数
10~20坪
坪単価
15,000~19,000円 / 坪
ハイッテおすすめ
渋谷駅徒歩圏内の居抜きオフィス!会議室完備の好立地物件

渋谷駅徒歩圏内の居抜きオフィス!会議室完備の好立地物件

エリア
渋谷区渋谷
アクセス
渋谷駅徒歩6分,表参道駅徒歩7分,明治神宮前駅徒歩12分
坪数
43~53坪
坪単価
25,000~29,000円 / 坪
推奨人数
11~30人
居抜き入居募集中
恵比寿駅5分!会議室完備で即入居可能なセットアップオフィス

恵比寿駅5分!会議室完備で即入居可能なセットアップオフィス

エリア
渋谷区広尾
アクセス
恵比寿駅徒歩5分
坪数
91~101坪
坪単価
28,000~32,000円 / 坪
推奨人数
31~50人

ハイッテの居抜きオフィス移転なら、
移転費用最大0円。期間短縮。
SDGsに貢献にできる。

オフィス・事務所の居抜き退去・入居ができる検索・掲載サービスです。
居抜き退去で原状回復費用を、居抜き入居で内装工事費用を大幅に削減!
採用戦略や事業運営に応じた、最適な移転提案でスタートアップ・ベンチャー企業の成長をサポートします。

お役立ち資料

オフィス移転の工数を1/3削減!レイアウトを考えるポイント(ガイド)

オフィス移転の工数を1/3削減!レイアウトを考えるポイント(ガイド)

居抜きオフィス移転完全マニュアル(ガイド)

居抜きオフィス移転完全マニュアル(ガイド)

本当にあった!居抜きオフィス移転トラブル事例5選(ガイド)

本当にあった!居抜きオフィス移転トラブル事例5選(ガイド)

居抜きオフィス移転チェックリスト

居抜きオフィス移転チェックリスト

5分でわかる原状回復!退去費用0円にする居抜きの魅力(ガイド)

5分でわかる原状回復!退去費用0円にする居抜きの魅力(ガイド)

解約通知書テンプレートを無料ダウンロード

解約通知書テンプレートを無料ダウンロード

オフィス・事務所移転を進めるためのスケジュールガイドを無料ダウンロード

オフィス・事務所移転を進めるためのスケジュールガイドを無料ダウンロード

オフィスプランニングシート【内見・内覧にも使える】

オフィスプランニングシート【内見・内覧にも使える】

東京都空き家活用事業公式アンバサダー2期連続就任決定!!
東京都空き家活用事業公式アンバサダー2期連続就任決定!!

同じ坪数&エリアの物件

お問い合せ受付中
【フルセットアップ 表参道駅3分】テラス付×即入居可オフィス

【フルセットアップ 表参道駅3分】テラス付×即入居可オフィス

エリア
渋谷区神宮前
アクセス
表参道駅徒歩3分,渋谷駅徒歩15分
坪数
3~13坪
坪単価
44,000~48,000円 / 坪
推奨人数
10人以下
お問い合せ受付中
【セットアップ 恵比寿駅】8名用会議室完備の洗練オフィス

【セットアップ 恵比寿駅】8名用会議室完備の洗練オフィス

エリア
渋谷区東
アクセス
恵比寿駅徒歩7分,代官山駅徒歩9分,渋谷駅徒歩12分
坪数
57~67坪
坪単価
26,000~30,000円 / 坪
推奨人数
31~50人
お問い合せ受付中
代官山駅5分&敷金なし!天井高4m超の開放的セットアップオフィス

代官山駅5分&敷金なし!天井高4m超の開放的セットアップオフィス

エリア
渋谷区代官山町
アクセス
代官山駅徒歩5分,恵比寿駅徒歩10分,渋谷駅徒歩10分
坪数
40~50坪
坪単価
36,000~40,000円 / 坪
推奨人数
11~30人