居抜きオフィス物件検索・掲載サイト【ハイッテ】 > 居抜きオフィス・セットアップオフィスを探す > 恵比寿駅徒歩7分!セットアップ済み会議室完備の洗練オフィス

恵比寿駅徒歩7分!セットアップ済み会議室完備の洗練オフィス

更新日:2025.10.29 公開日:2025.10.29
宅地建物取引士 本田
宅地建物取引士 本田
東京都渋谷区東の街は、若者文化やファッション、音楽、アートなどが集まるエリアとして知られています。また、渋谷駅周辺には多くの商業施設や飲食店があり、観光客や地元の人々にとっても人気のスポットです。
お問い合わせ受付中

スタッフからのコメント

渋谷区恵比寿エリアに位置する当オフィスは、複数路線が利用可能な抜群のアクセス環境と、洗練されたデザイン性を兼ね備えた理想的なワークスペースです。
開放的なレイアウトと充実した設備により、チームの生産性を最大限に引き出すことができる環境が整っています。詳細は以下をご覧ください。

このオフィスのおすすめポイント

  • 東京メトロ日比谷線恵比寿駅まで徒歩7分、JR山手線恵比寿駅まで徒歩8分の好立地
  • 2019年10月にエントランスをリニューアル、2020年12月に内装造作付きでセットアップ済み
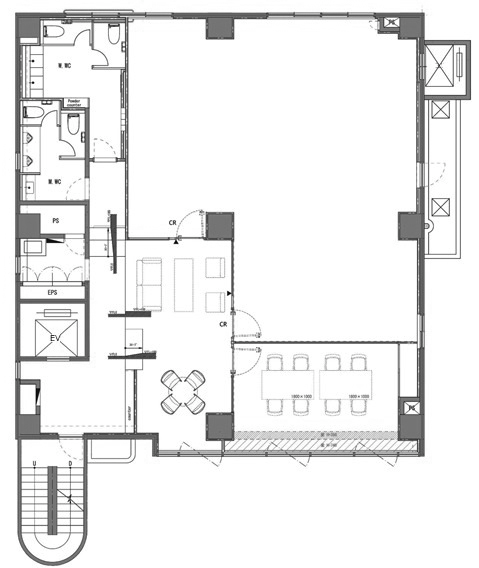
  • 独立した会議室を2室完備、商談や集中作業に最適
  • フォンブースを設置、プライバシーに配慮した通話環境を実現
  • 温かみのある木目調フローリングと打ちっぱなしコンクリートの調和した内装
  • 天井高を活かした開放的な空間設計で圧迫感なく働ける
  • ガラスパーティションで採光を確保しながら空間を効率的に分割
  • 男女別トイレと洋式設備で快適性を追求

オフィスの特徴

当オフィスの最大の魅力は、恵比寿という一等地でありながら、落ち着いた環境で業務に集中できる立地環境です。複数路線が徒歩圏内で利用できるため、取引先やクライアントとの打ち合わせにも非常に便利です。
外観はモダンなガラスカーテンウォールを採用しており、来訪者に先進的な企業イメージを印象付けることができます。内装は、ナチュラルな木目調フローリングとインダストリアルな打ちっぱなしコンクリートを組み合わせた洗練されたデザインが特徴です。柱の存在感を活かしたレイアウトが空間にリズムを生み出し、単調になりがちなオフィス空間にアクセントを加えています。
2室の独立した会議室は、重要な商談やオンライン会議に集中できる環境を提供し、フォンブースの設置により、オープンスペースでのプライバシーも確保されています。ガラスパーティションを効果的に使用することで、開放感を損なうことなく機能的なゾーニングを実現しており、コミュニケーションと集中のバランスが取れた働きやすい環境となっています。

こんな企業にオススメ

  • 恵比寿のブランド力を活かしたい成長企業
  • 取引先との打ち合わせが多く、アクセス利便性を重視する企業
  • デザイン性の高いオフィス環境でブランディングを強化したい企業
  • 会議室を頻繁に使用し、機密性の高い業務を扱う企業
  • オープンなコミュニケーションと集中作業のバランスを重視する企業
  • 採用力向上のため、魅力的なオフィス環境を求める企業
  • リモートワークとオフィスワークのハイブリッド体制を構築する企業
  • クライアントやパートナーを頻繁に招く必要がある企業
  • 従業員の働きやすさと生産性向上を両立させたい企業
  • 洗練された空間で企業文化を体現したい企業

本物件は、立地・デザイン・機能性のすべてにおいて高い水準を満たす、恵比寿エリアを代表するワークスペースです。複数路線へのアクセスの良さは、従業員の通勤負担を軽減するだけでなく、取引先との関係構築においても大きなアドバンテージとなります。
内装のセットアップが既に完了しているため、初期投資を抑えながらスムーズに入居できる点も大きな魅力です。会議室やフォンブースなど、現代のワークスタイルに対応した設備が整っており、多様な業務シーンに柔軟に対応できます。
恵比寿というブランド力のあるエリアで、洗練された空間を手に入れることで、従業員のモチベーション向上や採用力強化にもつながります。
公開情報以外で気になる点などございましたらお気軽にお問い合わせください。内見や、空室確認なども随時承っておりますのでお気軽にご相談ください。

営業担当者

本田 司

本田 司

Tsukasa Honda
セールス

宅地建物取引士

【大阪:第125679号】

オフィス詳細情報

物件番号 960
エリア 東京都渋谷区東
アクセス 恵比寿駅徒歩7分,代官山駅徒歩9分,渋谷駅徒歩12分
坪数 57~67坪
坪単価 26,000~30,000円 / 坪
月額賃料 1,620,000~1,860,000円
推奨人数 31~50人
オフィスタイプ
築年月 1984年9月
階数 2F
周辺施設 渋谷パルコ
渋谷ヒカリエ
渋谷マークシティ
渋谷スクランブルスクエア
渋谷ストリーム

募集条件

敷金 0ヶ月
礼金 0ヶ月
保証金 0ヶ月
償却 0ヶ月
更新料 0ヶ月
保証会社 必須
入居可能時期 2026年5月
契約期間 2年

ショート動画

スタッフからのコメント

渋谷区恵比寿エリアに位置する当オフィスは、複数路線が利用可能な抜群のアクセス環境と、洗練されたデザイン性を兼ね備えた理想的なワークスペースです。
開放的なレイアウトと充実した設備により、チームの生産性を最大限に引き出すことができる環境が整っています。詳細は以下をご覧ください。

このオフィスのおすすめポイント

  • 東京メトロ日比谷線恵比寿駅まで徒歩7分、JR山手線恵比寿駅まで徒歩8分の好立地
  • 2019年10月にエントランスをリニューアル、2020年12月に内装造作付きでセットアップ済み
  • 独立した会議室を2室完備、商談や集中作業に最適
  • フォンブースを設置、プライバシーに配慮した通話環境を実現
  • 温かみのある木目調フローリングと打ちっぱなしコンクリートの調和した内装
  • 天井高を活かした開放的な空間設計で圧迫感なく働ける
  • ガラスパーティションで採光を確保しながら空間を効率的に分割
  • 男女別トイレと洋式設備で快適性を追求

オフィスの特徴

当オフィスの最大の魅力は、恵比寿という一等地でありながら、落ち着いた環境で業務に集中できる立地環境です。複数路線が徒歩圏内で利用できるため、取引先やクライアントとの打ち合わせにも非常に便利です。
外観はモダンなガラスカーテンウォールを採用しており、来訪者に先進的な企業イメージを印象付けることができます。内装は、ナチュラルな木目調フローリングとインダストリアルな打ちっぱなしコンクリートを組み合わせた洗練されたデザインが特徴です。柱の存在感を活かしたレイアウトが空間にリズムを生み出し、単調になりがちなオフィス空間にアクセントを加えています。
2室の独立した会議室は、重要な商談やオンライン会議に集中できる環境を提供し、フォンブースの設置により、オープンスペースでのプライバシーも確保されています。ガラスパーティションを効果的に使用することで、開放感を損なうことなく機能的なゾーニングを実現しており、コミュニケーションと集中のバランスが取れた働きやすい環境となっています。

こんな企業にオススメ

  • 恵比寿のブランド力を活かしたい成長企業
  • 取引先との打ち合わせが多く、アクセス利便性を重視する企業
  • デザイン性の高いオフィス環境でブランディングを強化したい企業
  • 会議室を頻繁に使用し、機密性の高い業務を扱う企業
  • オープンなコミュニケーションと集中作業のバランスを重視する企業
  • 採用力向上のため、魅力的なオフィス環境を求める企業
  • リモートワークとオフィスワークのハイブリッド体制を構築する企業
  • クライアントやパートナーを頻繁に招く必要がある企業
  • 従業員の働きやすさと生産性向上を両立させたい企業
  • 洗練された空間で企業文化を体現したい企業

本物件は、立地・デザイン・機能性のすべてにおいて高い水準を満たす、恵比寿エリアを代表するワークスペースです。複数路線へのアクセスの良さは、従業員の通勤負担を軽減するだけでなく、取引先との関係構築においても大きなアドバンテージとなります。
内装のセットアップが既に完了しているため、初期投資を抑えながらスムーズに入居できる点も大きな魅力です。会議室やフォンブースなど、現代のワークスタイルに対応した設備が整っており、多様な業務シーンに柔軟に対応できます。
恵比寿というブランド力のあるエリアで、洗練された空間を手に入れることで、従業員のモチベーション向上や採用力強化にもつながります。
公開情報以外で気になる点などございましたらお気軽にお問い合わせください。内見や、空室確認なども随時承っておりますのでお気軽にご相談ください。

営業担当者

本田 司

本田 司

Tsukasa Honda
セールス

宅地建物取引士

【大阪:第125679号】

当オフィスの設備

  • デザイナーズオフィス
  • フォンブース
  • ファミレス席
  • リノベーションオフィス
  • 駐車場付き
  • 駐輪場あり
  • 築浅
  • 男女別トイレ
  • 会議室あり
  • 耐震
  • バルコニーorテラスor屋上あり
  • スケルトン天井
  • ワンフロア
  • 一棟貸し
  • セントラル空調
  • OAフロア
  • 天井が高い
  • 個別空調
  • 貸会議室あり
  • ラウンジ

当オフィスの周辺環境

このオフィス物件へのお問い合わせ

このサイトはreCAPTCHAによって保護されており、Googleのプライバシーポリシー利用規約が適用されます。

お電話でのお問い合わせはこちら

0120-19-1925 受付時間:10:00~18:00

同じ坪数&エリアの物件

ハイッテおすすめ
天井高2.55m!青山通り沿いの明るい居抜きオフィス

天井高2.55m!青山通り沿いの明るい居抜きオフィス

エリア
渋谷区渋谷
アクセス
渋谷駅徒歩6分
坪数
101~111坪
坪単価
-
推奨人数
51~80人
お問い合せ受付中
茅場町駅徒歩6分!会議室・ラウンジ・フォンブース付セットアップオフィス

茅場町駅徒歩6分!会議室・ラウンジ・フォンブース付セットアップオフィス

エリア
中央区新川
アクセス
茅場町駅徒歩6分,八丁堀駅徒歩9分,水天宮前駅徒歩10分
坪数
82~92坪
坪単価
-
推奨人数
31~50人
お問い合せ受付中
築地駅1分!フリーレント付きで初期コストを抑えたオフィスス

築地駅1分!フリーレント付きで初期コストを抑えたオフィスス

エリア
中央区築地
アクセス
築地駅徒歩1分,新富町駅徒歩4分,東銀座駅徒歩9分
坪数
68~78坪
坪単価
23,000~27,000円 / 坪
推奨人数
31~50人
お問い合せ受付中
入居コスト削減!家具・什器付き日本橋セットアップオフィス

入居コスト削減!家具・什器付き日本橋セットアップオフィス

エリア
中央区日本橋
アクセス
日本橋駅 徒歩2分,東京駅 徒歩9分
坪数
59~69坪
坪単価
-
推奨人数
31~50人
居抜き入居募集中
神谷町駅徒歩1分!虎ノ門・新橋エリアの居抜き移転可オフィス

神谷町駅徒歩1分!虎ノ門・新橋エリアの居抜き移転可オフィス

エリア
港区虎ノ門
アクセス
神谷町駅徒歩1分,六本木一丁目駅徒歩8分,虎ノ門ヒルズ駅徒歩8分
坪数
69~79坪
坪単価
22,000~26,000円 / 坪
推奨人数
お問い合せ受付中
赤坂エリア!4会議室完備で組織運営を効率化できる大型オフィス

赤坂エリア!4会議室完備で組織運営を効率化できる大型オフィス

エリア
港区赤坂
アクセス
六本木一丁目駅徒歩4分,溜池山王駅徒歩6分,神谷町駅徒歩6分,虎ノ門ヒルズ駅徒歩8分,虎ノ門駅徒歩10分
坪数
121~131坪
坪単価
12,000~16,000円 / 坪
推奨人数
51~80人

ハイッテの居抜きオフィス移転なら、
移転費用最大0円。期間短縮。
SDGsに貢献にできる。

オフィス・事務所の居抜き退去・入居ができる検索・掲載サービスです。
居抜き退去で原状回復費用を、居抜き入居で内装工事費用を大幅に削減!
採用戦略や事業運営に応じた、最適な移転提案でスタートアップ・ベンチャー企業の成長をサポートします。

お役立ち資料

居抜きオフィス移転完全マニュアル(ガイド)

居抜きオフィス移転完全マニュアル(ガイド)

居抜きオフィス移転チェックリスト

居抜きオフィス移転チェックリスト

解約通知書テンプレートを無料ダウンロード

解約通知書テンプレートを無料ダウンロード

5分でわかる原状回復!退去費用0円にする居抜きの魅力(ガイド)

5分でわかる原状回復!退去費用0円にする居抜きの魅力(ガイド)

本当にあった!居抜きオフィス移転トラブル事例5選(ガイド)

本当にあった!居抜きオフィス移転トラブル事例5選(ガイド)

オフィスプランニングシート【内見・内覧にも使える】

オフィスプランニングシート【内見・内覧にも使える】

オフィス移転の工数を1/3削減!レイアウトを考えるポイント(ガイド)

オフィス移転の工数を1/3削減!レイアウトを考えるポイント(ガイド)

オフィス・事務所移転を進めるためのスケジュールガイドを無料ダウンロード

オフィス・事務所移転を進めるためのスケジュールガイドを無料ダウンロード

東京都空き家活用事業公式アンバサダー2期連続就任決定!!
東京都空き家活用事業公式アンバサダー2期連続就任決定!!