洗練されたデザインと充実した設備が融合した、働く環境にこだわる企業様に最適なオフィス空間です。
開放的なエントランスから、機能性の高い執務スペース、プライバシーに配慮された会議室まで、ビジネスシーンに必要な要素を備えています。
詳細は以下をご覧ください。
このオフィスのおすすめポイント
- ガラス張りの会議室で開放感と遮音性を両立
- 個室型フォンブース完備でWeb会議も快適
- コンクリート打ちっぱなしのスタイリッシュなデザイン
- 清潔感のある独立トイレを複数設置
- ミニキッチン付きで社内コミュニケーションを促進
- 充実したロッカースペースで荷物管理も安心
- 間接照明による落ち着いた雰囲気の演出
- 1階立地で来客対応がスムーズ
- テラススペース付きでリフレッシュ可能
- 木材とコンクリートの調和した内装デザイン
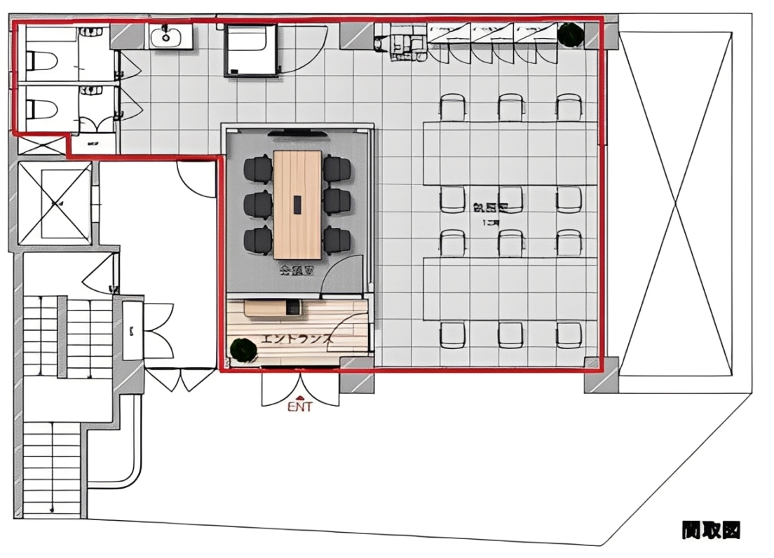
オフィスの特徴
1階という立地を活かした、来客対応に優れたオフィス設計が特徴です。
エントランスから続く開放的な空間は、訪れる方に好印象を与えるとともに、従業員の皆様にとっても心地よい就業環境を提供します。コンクリート打ちっぱなしの天井と木材を組み合わせた内装は、モダンでありながら温かみも感じられるデザインです。ガラスパーティションで区切られた会議室は、視覚的な開放感を保ちながら必要な遮音性も確保しており、重要な商談やミーティングに集中できる環境となっています。
また、個室型のフォンブースを設置することで、オープンスペースでもプライベートな通話やWeb会議が可能です。清潔で機能的な水回り設備、ミニキッチンスペース、充実したロッカールームなど、日々の業務を支える設備も整っています。
テラススペースへのアクセスも可能で、ちょっとした気分転換や従業員同士の交流の場としても活用いただけます。
こんな企業にオススメ
- 来客頻度が高く、第一印象を重視される企業
- クリエイティブな発想を大切にする企業
- Web会議やオンラインミーティングが多い企業
- 従業員の働きやすさを重視する企業
- スタイリッシュなオフィス環境を求める企業
- 少人数でも充実した設備を必要とする企業
- 社内コミュニケーションを活性化したい企業
- プライバシーと開放感の両立を求める企業
- リフレッシュスペースを設けたい企業
- 洗練されたブランドイメージを表現したい企業
本物件は、デザイン性と機能性を兼ね備えた、これからのワークスタイルに最適なオフィス空間です。1階という立地は来客対応の利便性だけでなく、テラスへのアクセスなど独自の価値を生み出します。
ガラス張りの会議室やフォンブースといった現代のビジネスシーンに必要な設備を整えながら、コンクリートと木材が調和する洗練された空間デザインは、企業のブランド価値を高めることにも貢献します。
清潔で機能的な水回り、充実した収納スペースなど、日々の業務を快適にする細やかな配慮も行き届いています。働く方々の創造性を引き出し、来訪者に好印象を与えるこのオフィスで、新しいビジネスの展開を実現してみませんか。
公開情報以外で気になる点などございましたらお気軽にお問い合わせください。内見や、空室確認なども随時承っておりますのでお気軽にご相談ください。

