居抜きオフィス物件検索・掲載サイト【ハイッテ】 > 居抜きオフィス・セットアップオフィスを探す > 【居抜き 神谷町駅徒歩1分】虎ノ門・新橋エリアの居抜き移転可オフィス

【居抜き 神谷町駅徒歩1分】虎ノ門・新橋エリアの居抜き移転可オフィス

更新日:2026.02.18 公開日:2025.10.27
宅地建物取引士 本田
宅地建物取引士 本田
東京都港区虎ノ門は、外資系企業や大手企業が進出しており、国際的なビジネスエリアとして知られています。麻布十番や新橋などの主要エリアへのアクセスが良く、商談や出張などもしやすい環境です。
居抜き入居募集中

スタッフからのコメント

神谷町駅から徒歩圏内、ビジネスの中心地に位置するこのオフィスは、開放的な空間設計と充実した設備により、チームの生産性を最大化する環境を提供します。
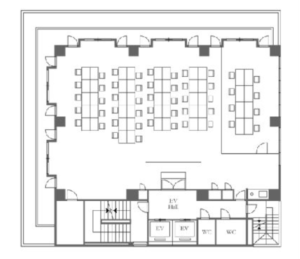
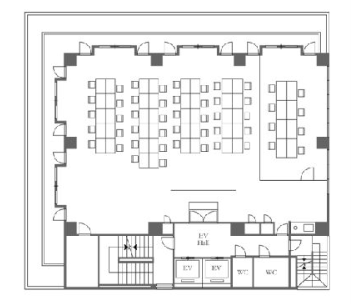
天井の高い快適な執務空間、男女別トイレ、居抜きによるスムーズな入居など、ワークスタイルに合わせた柔軟な活用が可能です。詳細は以下をご覧ください。

このオフィスのおすすめポイント

  • 神谷町駅徒歩1分、複数路線利用可能なアクセス至便の立地
  • 居抜き物件のため初期コストを抑えた入居が可能
  • 1階にコンビニがあり日常利便性が高い
  • 男女別トイレ完備でプライバシーに配慮
  • 開放的なレイアウトで自由度の高い空間活用が可能
  • パーテーションやデスクなど什器類が充実
  • 会議スペースやミーティングエリアの設置実績あり
  • 虎ノ門エリアの信頼性の高いビジネス環境
  • 周辺に多数の飲食店やサービス施設が充実
  • 居抜き相談可能で柔軟な契約条件に対応

オフィスの特徴

神谷町駅から徒歩わずか1分という卓越した立地に位置する当オフィスは、日比谷線をはじめとする複数路線へのアクセスが可能で、取引先との商談や採用活動における来訪者への利便性を大きく高めます。
ビル1階にはコンビニが入っており、急な会議準備や日常の買い物にも対応できる環境が整っています。
内装は明るく開放的な設計で、自然光が差し込む執務空間が広がっており、従業員の快適性とモチベーション向上に寄与します。既存のパーテーションやデスク、収納家具などが残置されており、居抜き物件として初期投資を大幅に抑えながらスピーディーな入居が実現可能です。男女別トイレの完備はプライバシーへの配慮と従業員満足度の向上につながり、多様な働き方をサポートします。
虎ノ門エリアは企業の信頼性を高めるブランド力を持ち、ビジネス拠点として最適な環境です。周辺には多様な飲食店やビジネスサービス施設が集積しており、クライアント接待や従業員の福利厚生面でも充実した立地といえます。

こんな企業にオススメ

  • 初期コストを抑えて迅速にオフィス開設を実現したい企業
  • 駅近立地でアクセス性を重視する企業
  • 従業員の働きやすさと快適性を重視する企業
  • 信頼性の高いビジネスエリアに拠点を構えたい企業
  • 来客が多く、立地の利便性が商談に影響する企業
  • 柔軟なレイアウト変更を想定している成長企業
  • 男女別トイレなど従業員への配慮を重視する企業
  • 周辺環境の利便性を福利厚生に活かしたい企業
  • プライバシーに配慮したオフィス環境を求める企業
  • 虎ノ門エリアのブランド力を活用したい企業

本物件は、神谷町駅徒歩1分という抜群の立地条件と、居抜き物件としてのコストメリットを兼ね備えた希少なオフィスです。既存設備を活用することで初期投資を抑えながら、迅速な事業スタートを実現できます。
1階のコンビニエンスストアや周辺の充実した飲食店・サービス施設は、日々の業務をスムーズにサポートします。男女別トイレの完備や開放的な空間設計は、従業員の満足度向上とチームの生産性向上に直結します。
虎ノ門エリアは企業のブランドイメージを高める立地でもあり、取引先や求職者に対する印象形成にも好影響を与えます。複数路線の利用が可能なアクセス環境は、通勤の利便性だけでなく、ビジネスチャンスの拡大にも寄与します。
公開情報以外で気になる点などございましたらお気軽にお問い合わせください。内見や、空室確認なども随時承っておりますのでお気軽にご相談ください。

営業担当者

塩沢 龍太朗

塩沢 龍太朗

Ryutaro Shiozawa
シニアセールス

宅地建物取引士

【東京都知事:第280468号】

オフィス詳細情報

物件番号 3173
エリア 東京都港区虎ノ門
アクセス 神谷町駅徒歩1分,六本木一丁目駅徒歩8分,虎ノ門ヒルズ駅徒歩8分
坪数 69~79坪
坪単価 22,000~26,000円 / 坪
月額賃料 1,650,000~1,940,000円
推奨人数
オフィスタイプ
築年月 1984年7月
階数 6F
周辺施設 虎ノ門ヒルズ
虎ノ門ヒルズステーションタワー
こだわり条件

募集条件

敷金 相談
礼金 0ヶ月
保証金 相談
償却 相談
更新料 0ヶ月
保証会社 必須
入居可能時期 2026年4月
契約期間 相談

ショート動画

スタッフからのコメント

神谷町駅から徒歩圏内、ビジネスの中心地に位置するこのオフィスは、開放的な空間設計と充実した設備により、チームの生産性を最大化する環境を提供します。
天井の高い快適な執務空間、男女別トイレ、居抜きによるスムーズな入居など、ワークスタイルに合わせた柔軟な活用が可能です。詳細は以下をご覧ください。

このオフィスのおすすめポイント

  • 神谷町駅徒歩1分、複数路線利用可能なアクセス至便の立地
  • 居抜き物件のため初期コストを抑えた入居が可能
  • 1階にコンビニがあり日常利便性が高い
  • 男女別トイレ完備でプライバシーに配慮
  • 開放的なレイアウトで自由度の高い空間活用が可能
  • パーテーションやデスクなど什器類が充実
  • 会議スペースやミーティングエリアの設置実績あり
  • 虎ノ門エリアの信頼性の高いビジネス環境
  • 周辺に多数の飲食店やサービス施設が充実
  • 居抜き相談可能で柔軟な契約条件に対応

オフィスの特徴

神谷町駅から徒歩わずか1分という卓越した立地に位置する当オフィスは、日比谷線をはじめとする複数路線へのアクセスが可能で、取引先との商談や採用活動における来訪者への利便性を大きく高めます。
ビル1階にはコンビニが入っており、急な会議準備や日常の買い物にも対応できる環境が整っています。
内装は明るく開放的な設計で、自然光が差し込む執務空間が広がっており、従業員の快適性とモチベーション向上に寄与します。既存のパーテーションやデスク、収納家具などが残置されており、居抜き物件として初期投資を大幅に抑えながらスピーディーな入居が実現可能です。男女別トイレの完備はプライバシーへの配慮と従業員満足度の向上につながり、多様な働き方をサポートします。
虎ノ門エリアは企業の信頼性を高めるブランド力を持ち、ビジネス拠点として最適な環境です。周辺には多様な飲食店やビジネスサービス施設が集積しており、クライアント接待や従業員の福利厚生面でも充実した立地といえます。

こんな企業にオススメ

  • 初期コストを抑えて迅速にオフィス開設を実現したい企業
  • 駅近立地でアクセス性を重視する企業
  • 従業員の働きやすさと快適性を重視する企業
  • 信頼性の高いビジネスエリアに拠点を構えたい企業
  • 来客が多く、立地の利便性が商談に影響する企業
  • 柔軟なレイアウト変更を想定している成長企業
  • 男女別トイレなど従業員への配慮を重視する企業
  • 周辺環境の利便性を福利厚生に活かしたい企業
  • プライバシーに配慮したオフィス環境を求める企業
  • 虎ノ門エリアのブランド力を活用したい企業

本物件は、神谷町駅徒歩1分という抜群の立地条件と、居抜き物件としてのコストメリットを兼ね備えた希少なオフィスです。既存設備を活用することで初期投資を抑えながら、迅速な事業スタートを実現できます。
1階のコンビニエンスストアや周辺の充実した飲食店・サービス施設は、日々の業務をスムーズにサポートします。男女別トイレの完備や開放的な空間設計は、従業員の満足度向上とチームの生産性向上に直結します。
虎ノ門エリアは企業のブランドイメージを高める立地でもあり、取引先や求職者に対する印象形成にも好影響を与えます。複数路線の利用が可能なアクセス環境は、通勤の利便性だけでなく、ビジネスチャンスの拡大にも寄与します。
公開情報以外で気になる点などございましたらお気軽にお問い合わせください。内見や、空室確認なども随時承っておりますのでお気軽にご相談ください。

営業担当者

塩沢 龍太朗

塩沢 龍太朗

Ryutaro Shiozawa
シニアセールス

宅地建物取引士

【東京都知事:第280468号】

当オフィスの設備

  • デザイナーズオフィス
  • フォンブース
  • ファミレス席
  • リノベーションオフィス
  • 駐車場付き
  • 駐輪場あり
  • 築浅
  • 男女別トイレ
  • 会議室あり
  • 耐震
  • バルコニーorテラスor屋上あり
  • スケルトン天井
  • ワンフロア
  • 一棟貸し
  • セントラル空調
  • OAフロア
  • 天井が高い
  • 個別空調
  • 貸会議室あり
  • ラウンジ

当オフィスの周辺環境

このオフィス物件へのお問い合わせ

このサイトはreCAPTCHAによって保護されており、Googleのプライバシーポリシー利用規約が適用されます。

お電話でのお問い合わせはこちら

0120-19-1925 受付時間:10:00~18:00

同じ坪数&エリアの物件

居抜き入居募集中
【居抜き 渋谷駅】天井高2.55m!青山通り沿いの明るい居抜きオフィス

【居抜き 渋谷駅】天井高2.55m!青山通り沿いの明るい居抜きオフィス

エリア
渋谷区渋谷
アクセス
渋谷駅徒歩6分
坪数
101~111坪
坪単価
-
推奨人数
51~80人
お問い合せ受付中
【セットアップ 赤坂見附駅4分】会議室2室完備の回遊型セットアップオフィス

【セットアップ 赤坂見附駅4分】会議室2室完備の回遊型セットアップオフィス

エリア
港区元赤坂
アクセス
赤坂見附駅徒歩4分,永田町駅徒歩7分,赤坂駅徒歩9分
坪数
54~64坪
坪単価
-
推奨人数
11~30人
お問い合せ受付中
【セットアップ 三田駅5分】会議室・ラウンジ・フォンブース完備の環境配慮型オフィス

【セットアップ 三田駅5分】会議室・ラウンジ・フォンブース完備の環境配慮型オフィス

エリア
港区芝
アクセス
三田駅徒歩5分,田町駅徒歩8分,芝公園駅徒歩8分,赤羽橋駅徒歩9分
坪数
94~104坪
坪単価
37,000~41,000円 / 坪
推奨人数
31~50人
お問い合せ受付中
【セットアップ 田町駅5分】敷金・礼金0円!会議室・フォンブース完備オフィス

【セットアップ 田町駅5分】敷金・礼金0円!会議室・フォンブース完備オフィス

エリア
港区芝浦
アクセス
田町駅徒歩5分,三田駅徒歩8分,芝浦ふ頭駅徒歩9分
坪数
30~40坪
坪単価
39,000~43,000円 / 坪
推奨人数
11~30人
お問い合せ受付中
【セットアップ 田町駅5分】最新設備が揃うバルコニー付きデザインオフィス

【セットアップ 田町駅5分】最新設備が揃うバルコニー付きデザインオフィス

エリア
港区芝浦
アクセス
田町駅徒歩5分,三田駅徒歩8分,芝浦ふ頭駅徒歩9分
坪数
30~40坪
坪単価
37,000~41,000円 / 坪
推奨人数
11~30人
お問い合せ受付中
【セットアップ 乃木坂駅1分】高層階・家具付き・敷金0円の高品質オフィス

【セットアップ 乃木坂駅1分】高層階・家具付き・敷金0円の高品質オフィス

エリア
港区赤坂
アクセス
乃木坂駅徒歩1分,六本木駅徒歩9分,青山一丁目駅徒歩10分
坪数
25~35坪
坪単価
-
推奨人数
11~30人

ハイッテの居抜きオフィス移転なら、
移転費用最大0円。期間短縮。
SDGsに貢献にできる。

オフィス・事務所の居抜き退去・入居ができる検索・掲載サービスです。
居抜き退去で原状回復費用を、居抜き入居で内装工事費用を大幅に削減!
採用戦略や事業運営に応じた、最適な移転提案でスタートアップ・ベンチャー企業の成長をサポートします。

お役立ち資料

5分でわかる原状回復!退去費用0円にする居抜きの魅力(ガイド)

5分でわかる原状回復!退去費用0円にする居抜きの魅力(ガイド)

本当にあった!居抜きオフィス移転トラブル事例5選(ガイド)

本当にあった!居抜きオフィス移転トラブル事例5選(ガイド)

居抜きオフィス移転チェックリスト

居抜きオフィス移転チェックリスト

オフィス・事務所移転を進めるためのスケジュールガイドを無料ダウンロード

オフィス・事務所移転を進めるためのスケジュールガイドを無料ダウンロード

オフィスプランニングシート【内見・内覧にも使える】

オフィスプランニングシート【内見・内覧にも使える】

解約通知書テンプレートを無料ダウンロード

解約通知書テンプレートを無料ダウンロード

居抜きオフィス移転完全マニュアル(ガイド)

居抜きオフィス移転完全マニュアル(ガイド)

オフィス移転の工数を1/3削減!レイアウトを考えるポイント(ガイド)

オフィス移転の工数を1/3削減!レイアウトを考えるポイント(ガイド)