六本木一丁目駅から徒歩3分、複数路線が利用可能な好立地に誕生したセットアップオフィスです。
開放感のある高い天井とインダストリアルデザインが印象的な空間は、来訪者にも好印象を与えます。執務エリアからコラボレーションスペース、個室ブースまで、多様な働き方に対応できる設備が整っており、入居初日から快適にご利用いただけます。詳細は以下をご覧ください。
このオフィスのおすすめポイント
- 六本木一丁目駅徒歩3分、4駅5路線利用可能な抜群のアクセス
- 敷金ゼロプラン利用相談可能で初期費用を大幅に削減
- 執務席、会議室、コラボレーションスペースを完備したセットアップ仕様
- 開放感のある高い天井が生み出す快適なワークスペース
- 床配線対応で自由なレイアウト変更が可能
- エレベーターホールのグラフィックデザインが印象的なエントランス
- 異なる規模の会議室を2室完備し、多様なミーティングに対応
- 個室ブース・リフレッシュスペースで集中作業や休憩も快適
- パーソナルロッカー付きでフリーアドレス導入にも最適
- 2023年竣工の新しいビルで最新設備と清潔感を実現
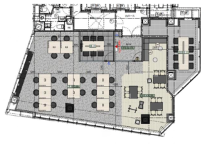
オフィスの特徴
ガラス張りのモダンな外観が際立つこのビルは、六本木エリアのランドマークとして来訪者に強い印象を与えます。エレベーターホールには都心の地図をモチーフにしたグラフィックデザインが施され、訪れる方を洗練された空間へと誘います。
室内は高い天井とコンクリート打ちっぱなしのインダストリアルデザインが特徴的で、開放感と集中力を両立させた環境を実現しています。執務エリアは自然光が差し込む明るい空間で、フリーアドレス導入にも対応できる柔軟なレイアウトを採用。木製家具を配したコラボレーションスペースは温かみのある雰囲気で、カジュアルなミーティングやブレインストーミングに最適です。
異なる規模の会議室を2室完備しており、少人数の打ち合わせから重要な商談まで、用途に応じて使い分けることができます。個室ブースも設置されているため、集中作業やWeb会議など、プライバシーが必要な場面でも安心してご利用いただけます。
こんな企業にオススメ
- 初期費用を抑えて都心一等地にオフィスを構えたい企業
- 複数路線の利用で全国からのアクセス性を重視する企業
- デザイン性の高いオフィスでブランドイメージを向上させたい企業
- フリーアドレスやABWなど柔軟な働き方を導入したい企業
- 来客が多く、印象的なエントランスを求める企業
- コラボレーションを促進する多様なスペースが必要な企業
- 開放的な空間で従業員の生産性を高めたい企業
- 入居後すぐに業務を開始したいスピード重視の企業
- 新しいビルで清潔感と最新設備を求める企業
- 成長フェーズにあり、洗練された環境で採用力を強化したい企業
本物件は、六本木という一等地でありながら、複数の働き方に対応できる機能性と、来訪者に強い印象を与えるデザイン性を兼ね備えた希少なセットアップオフィスです。高い天井がもたらす開放感は、従業員の創造性を刺激し、チームのパフォーマンス向上に貢献します。執務エリア、会議室、コラボレーションスペース、個室ブースと、多様なシーンに対応できる空間構成により、時代に求められる柔軟な働き方を実現できます。
敷金ゼロプランの利用相談も可能で、初期投資を抑えながら、都心の一等地で質の高いオフィス環境を手に入れることができます。
六本木一丁目駅から徒歩3分というアクセスの良さは、社員の通勤負担を軽減するだけでなく、全国からの来客対応にも大きなアドバンテージとなるでしょう。
公開情報以外で気になる点などございましたらお気軽にお問い合わせください。内見や、空室確認なども随時承っておりますのでお気軽にご相談ください。

