居抜きオフィス物件検索・掲載サイト【ハイッテ】 > 居抜きオフィス・セットアップオフィスを探す > 【セットアップ 虎ノ門駅徒歩2分】会議室とブース完備の快適オフィス

【セットアップ 虎ノ門駅徒歩2分】会議室とブース完備の快適オフィス

更新日:2026.02.13 公開日:2025.12.12
宅地建物取引士 本田
宅地建物取引士 本田
東京都港区西新橋は、オフィスビルやビジネスエリアが広がるエリアで、多くの企業が進出しています。新橋駅や汐留エリアへのアクセスが便利で新橋三井ビルディングや新橋センタービルなどのオフィスビルが人気です。
募集終了

スタッフからのコメント

本物件は、利便性の高い立地と機能的なセットアップ内装が魅力のオフィスです。
働き方の多様化に対応しながら、来訪者にとっても印象に残る空間づくりをサポートします。

このオフィスのおすすめポイント

  • 東京メトロ虎ノ門駅徒歩2分で来客にも便利な立地
  • 男女別トイレや警備システムなど安心感のある共用設備
  • 家具付きの執務エリアと会議室が整ったセットアップ内装
  • 複数路線利用可能で通勤や来客の移動がしやすいロケーション
  • ラウンジやオープンスペースがあり多様な働き方をサポートする空間

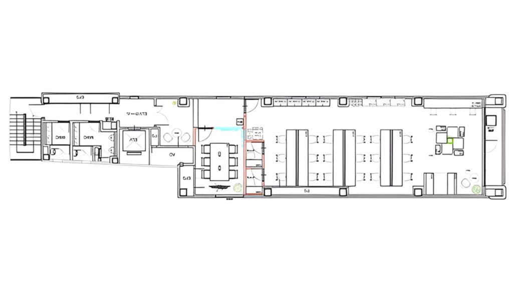
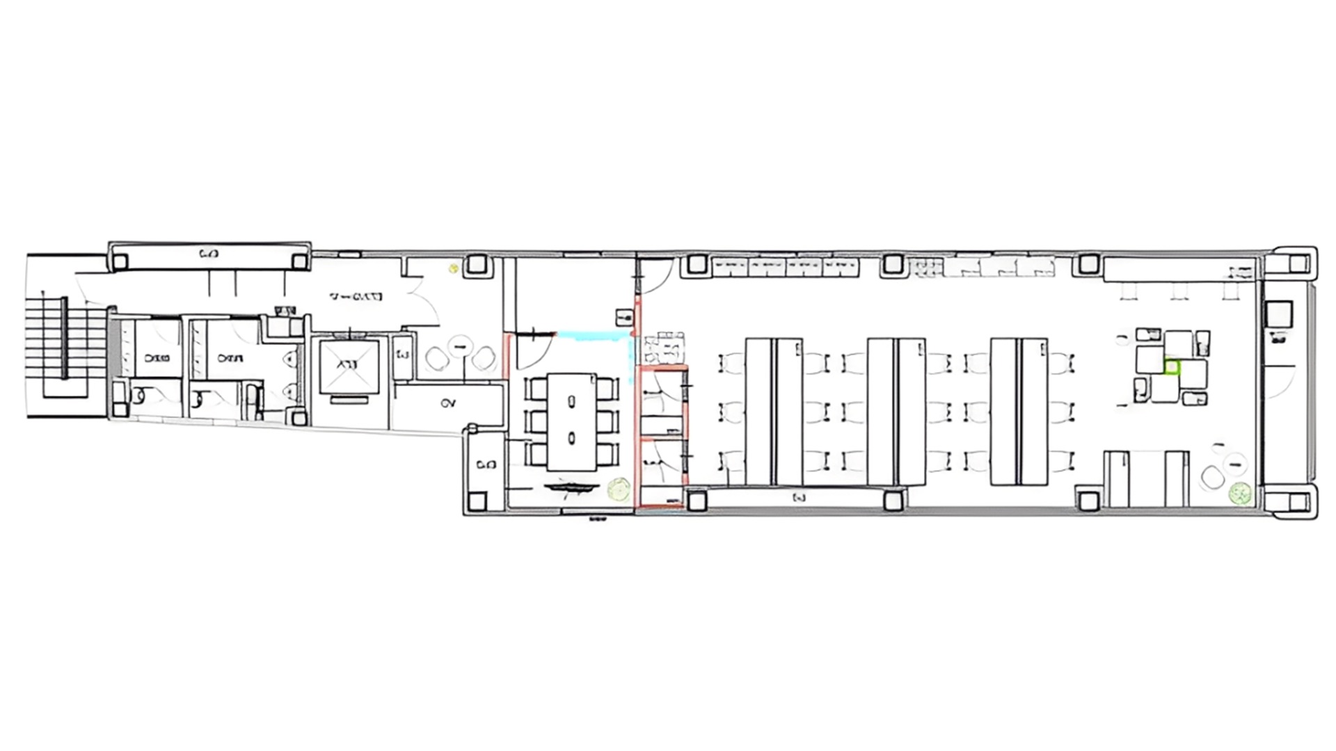
オフィスの特徴

最寄り駅から徒歩数分のアクセスの良さが魅力のオフィスです。ガラス面の多い外観は視認性が高く、来訪者に洗練された印象を与えます。
執務エリアには整然とデスクが配置され、集中しやすいレイアウトとしながら、リフレッシュできるラウンジスペースも確保しています。
会議室やオンライン対応に適した個室ブースを備え、対面とオンラインの両方の打ち合わせをスムーズに行える環境です。
複数路線が利用できる立地のため、通勤のしやすさはもちろん、来客動線の良さも期待できます。周辺には飲食店やサービス店舗も揃い、ランチや仕事後の時間も過ごしやすいエリアで、日々の働き方を豊かにしてくれます。

こんな企業にオススメ

  • 来客対応や対面での打ち合わせが多く、駅近と印象的な外観を重視する企業
  • オンライン会議や電話対応が多く、個室ブースや会議室を積極的に活用したい企業
  • 執務エリアとラウンジスペースをバランス良く取り入れたい成長志向の企業

公開情報以外で気になる点などございましたらお気軽にお問い合わせください。内見や、空室確認なども随時承っておりますのでお気軽にご相談ください。

営業担当者

本田 司

本田 司

Tsukasa Honda
セールス

宅地建物取引士

【大阪:第125679号】

オフィス詳細情報

物件番号 3217
エリア 東京都港区西新橋
アクセス 虎ノ門駅徒歩2分,内幸町駅徒歩2分,霞ヶ関駅徒歩6分
坪数 32~42坪
坪単価 28,000~32,000円 / 坪
月額賃料 1,050,000~1,190,000円
推奨人数 11~30人
オフィスタイプ
築年月 2025年12月
階数 4F
周辺施設 虎ノ門ヒルズ
東京タワー
増上寺
こだわり条件

募集条件

敷金 6ヶ月
礼金 0ヶ月
保証金 0ヶ月
償却 0ヶ月
更新料 0ヶ月
保証会社 必須(保証会社指定あり)
入居可能時期 即日
契約期間 2年
備考 ※原状回復:免除(退去時は原則クリーニング)

ショート動画

スタッフからのコメント

本物件は、利便性の高い立地と機能的なセットアップ内装が魅力のオフィスです。
働き方の多様化に対応しながら、来訪者にとっても印象に残る空間づくりをサポートします。

このオフィスのおすすめポイント

  • 東京メトロ虎ノ門駅徒歩2分で来客にも便利な立地
  • 男女別トイレや警備システムなど安心感のある共用設備
  • 家具付きの執務エリアと会議室が整ったセットアップ内装
  • 複数路線利用可能で通勤や来客の移動がしやすいロケーション
  • ラウンジやオープンスペースがあり多様な働き方をサポートする空間

オフィスの特徴

最寄り駅から徒歩数分のアクセスの良さが魅力のオフィスです。ガラス面の多い外観は視認性が高く、来訪者に洗練された印象を与えます。
執務エリアには整然とデスクが配置され、集中しやすいレイアウトとしながら、リフレッシュできるラウンジスペースも確保しています。
会議室やオンライン対応に適した個室ブースを備え、対面とオンラインの両方の打ち合わせをスムーズに行える環境です。
複数路線が利用できる立地のため、通勤のしやすさはもちろん、来客動線の良さも期待できます。周辺には飲食店やサービス店舗も揃い、ランチや仕事後の時間も過ごしやすいエリアで、日々の働き方を豊かにしてくれます。

こんな企業にオススメ

  • 来客対応や対面での打ち合わせが多く、駅近と印象的な外観を重視する企業
  • オンライン会議や電話対応が多く、個室ブースや会議室を積極的に活用したい企業
  • 執務エリアとラウンジスペースをバランス良く取り入れたい成長志向の企業

公開情報以外で気になる点などございましたらお気軽にお問い合わせください。内見や、空室確認なども随時承っておりますのでお気軽にご相談ください。

営業担当者

本田 司

本田 司

Tsukasa Honda
セールス

宅地建物取引士

【大阪:第125679号】

当オフィスの設備

  • デザイナーズオフィス
  • フォンブース
  • ファミレス席
  • リノベーションオフィス
  • 駐車場付き
  • 駐輪場あり
  • 築浅
  • 男女別トイレ
  • 会議室あり
  • 耐震
  • バルコニーorテラスor屋上あり
  • スケルトン天井
  • ワンフロア
  • 一棟貸し
  • セントラル空調
  • OAフロア
  • 天井が高い
  • 個別空調
  • 貸会議室あり
  • ラウンジ

当オフィスの周辺環境

似ているオフィス物件のお問い合わせ

このサイトはreCAPTCHAによって保護されており、Googleのプライバシーポリシー利用規約が適用されます。

お電話でのお問い合わせはこちら

0120-19-1925 受付時間:10:00~18:00

同じ坪数&エリアの物件

お問い合せ受付中
【セットアップ 浜松町駅徒歩3分】会議室・フォンブース完備の環境配慮型のオフィスビル

【セットアップ 浜松町駅徒歩3分】会議室・フォンブース完備の環境配慮型のオフィスビル

エリア
港区浜松町
アクセス
浜松町駅徒歩3分,大門駅徒歩3分
坪数
36~46坪
坪単価
31,000~35,000円 / 坪
推奨人数
11~30人
お問い合せ受付中
【セットアップ お台場海浜公園駅】お台場駅徒歩3分!最新設備の海景色の眺望抜群セットアップ

【セットアップ お台場海浜公園駅】お台場駅徒歩3分!最新設備の海景色の眺望抜群セットアップ

エリア
港区台場
アクセス
お台場海浜公園駅徒歩3分,東京テレポート駅徒歩3分
坪数
50~60坪
坪単価
22,000~26,000円 / 坪
推奨人数
11~30人
お問い合せ受付中
【セットアップ 田町駅】築浅オフィスで初期費用を抑えて入居可能!

【セットアップ 田町駅】築浅オフィスで初期費用を抑えて入居可能!

エリア
港区芝
アクセス
三田駅徒歩4分,田町駅徒歩6分
坪数
39~49坪
坪単価
-
推奨人数
11~30人
居抜き入居募集中
【居抜き 芝公園駅】家具付き居抜きオフィスが募集中

【居抜き 芝公園駅】家具付き居抜きオフィスが募集中

エリア
港区芝
アクセス
芝公園駅徒歩1分,三田駅徒歩7分,赤羽橋駅徒歩7分
坪数
59~69坪
坪単価
17,000~21,000円 / 坪
推奨人数
31~50人
ハイッテおすすめ
【居抜き 新橋駅】プロジェクター完備のセミナールーム付き!利便性抜群の居抜きオフィス

【居抜き 新橋駅】プロジェクター完備のセミナールーム付き!利便性抜群の居抜きオフィス

エリア
港区新橋
アクセス
新橋駅徒歩5分,内幸町駅徒歩4分,虎ノ門ヒルズ駅徒歩8分
坪数
60~70坪
坪単価
16,000~20,000円 / 坪
推奨人数
31~50人
お問い合せ受付中
【セットアップ 茅場町駅徒歩5分】アクセス性抜群&会議室充実の内装付きオフィス

【セットアップ 茅場町駅徒歩5分】アクセス性抜群&会議室充実の内装付きオフィス

エリア
中央区日本橋茅場町
アクセス
茅場町駅徒歩5分,日本橋駅徒歩6分
坪数
45~55坪
坪単価
24,000~28,000円 / 坪
推奨人数
11~30人

ハイッテの居抜きオフィス移転なら、
移転費用最大0円。期間短縮。
SDGsに貢献にできる。

オフィス・事務所の居抜き退去・入居ができる検索・掲載サービスです。
居抜き退去で原状回復費用を、居抜き入居で内装工事費用を大幅に削減!
採用戦略や事業運営に応じた、最適な移転提案でスタートアップ・ベンチャー企業の成長をサポートします。

お役立ち資料

5分でわかる原状回復!退去費用0円にする居抜きの魅力(ガイド)

5分でわかる原状回復!退去費用0円にする居抜きの魅力(ガイド)

居抜きオフィス移転完全マニュアル(ガイド)

居抜きオフィス移転完全マニュアル(ガイド)

オフィスプランニングシート【内見・内覧にも使える】

オフィスプランニングシート【内見・内覧にも使える】

解約通知書テンプレートを無料ダウンロード

解約通知書テンプレートを無料ダウンロード

本当にあった!居抜きオフィス移転トラブル事例5選(ガイド)

本当にあった!居抜きオフィス移転トラブル事例5選(ガイド)

オフィス・事務所移転を進めるためのスケジュールガイドを無料ダウンロード

オフィス・事務所移転を進めるためのスケジュールガイドを無料ダウンロード

居抜きオフィス移転チェックリスト

居抜きオフィス移転チェックリスト

オフィス移転の工数を1/3削減!レイアウトを考えるポイント(ガイド)

オフィス移転の工数を1/3削減!レイアウトを考えるポイント(ガイド)

面倒な物件探しは、まるっとおまかせ。非公開物件も多数 おまかせ問い合わせはコチラ
お問い合わせ