※定期借家:2027年8月末まで
港区西新橋エリアに位置する本オフィスは、複数路線が利用可能な抜群の交通アクセスと、環状二号線沿いの高い視認性を兼ね備えた希少な募集物件です。
開放的な眺望と充実の設備環境により、企業の成長ステージに応じた柔軟な働き方を実現します。詳細は以下をご覧ください。
このオフィスのおすすめポイント
- 専有オフィス+6階の会議室を必要な分だけ専有で賃借可能
- JR新橋駅徒歩8分、都営三田線内幸町駅徒歩5分、御成門駅徒歩6分の好立地
- フリーレント相談可&敷金0ヶ月プランあり
- 共用ラウンジ、共用フォンブースも利用可能
- 大通り沿いで視認性が高く、企業イメージの向上に貢献
- 分割対応可能で少人数から段階的な拡張にも対応
- LED照明・グリッド天井で快適な執務環境
- 男女別トイレ・給湯室完備で利便性が高い
- 機械警備システム導入でセキュリティ面も安心
- 開放的な眺望で従業員のモチベーション向上
- 即日入居可能で早期開設ニーズにも対応
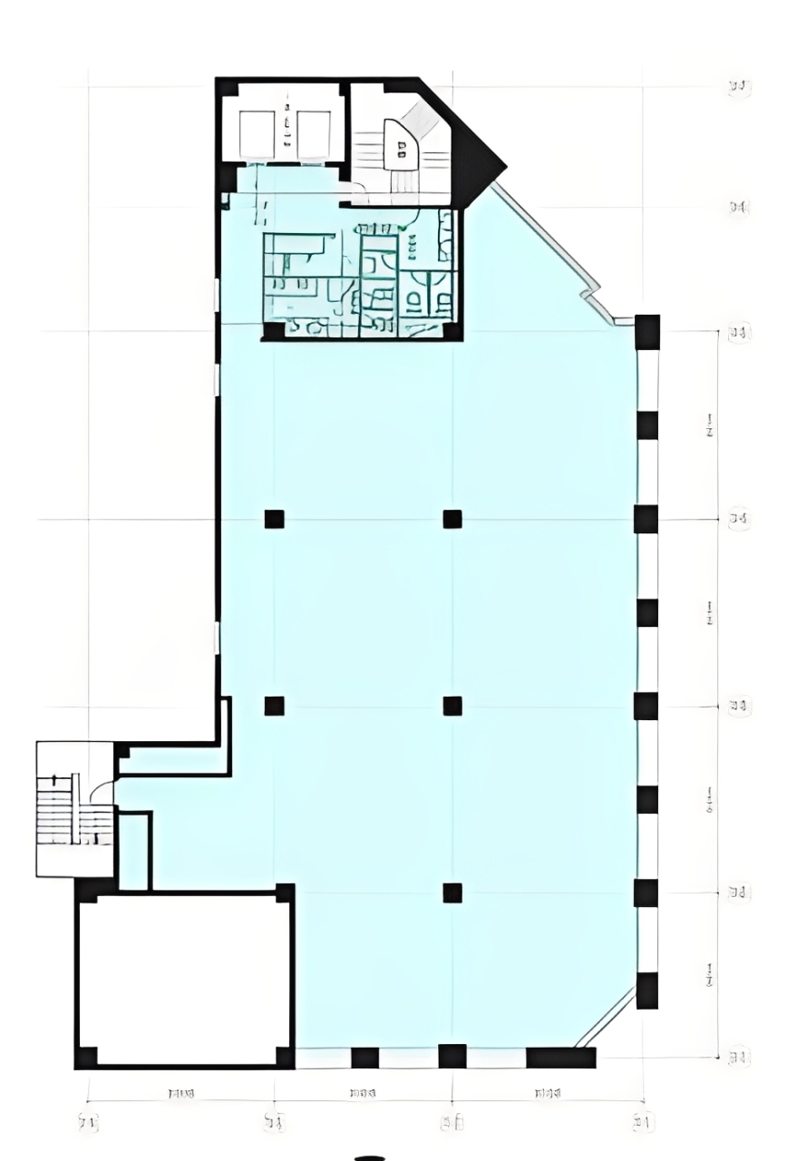
オフィスの特徴
当オフィスは、落ち着いたベージュトーンの外観デザインが特徴的で、企業の信頼性を印象づける佇まいとなっています。大通りに面した立地により、来訪者にとって非常に分かりやすく、取引先との商談前にも迷わずアクセスできる安心感があります。
建物内部は、自然光が差し込む明るいエントランスホールから始まり、来客の第一印象を大きく左右するエントランス空間は清潔感と洗練された雰囲気を演出しています。執務スペースは、広々とした無駄のないレイアウトが可能で、デスク配置の自由度が高く、チーム編成の変更にも柔軟に対応できます。
窓からの眺望は開放的で、東京のビジネス街を一望できる視界の広がりが、閉塞感のない快適な就業環境を提供します。また、専有ラウンジや会議室が利用できる期間限定特典により、採用面接や重要な商談の際に自社オフィス以外のプレミアムな空間を活用できる点も大きな魅力です。
8路線が利用可能な交通利便性は、全国各地からのアクセスを容易にし、人材採用においても優位性を発揮します。
こんな企業にオススメ
- 都心でのアクセス利便性を重視する企業
- 取引先との商談が多く、来客対応を重視する企業
- 開放的な眺望で従業員の働きやすさを追求する企業
- 成長段階に合わせてオフィスを柔軟に拡張したい企業
- 企業イメージを向上させる立地を求める企業
- 初期コストを抑えて移転を検討している企業
- セキュリティを重視する企業
- 専有ラウンジや会議室を活用して採用力を強化したい企業
- 即日入居で早期に事業を開始したい企業
- 少人数からスタートし段階的に規模を拡大したい企業
本物件は、港区西新橋という一等地でありながら、初期コストを抑えられるフリーレントや敷金優遇プランが用意されており、成長フェーズにある企業にとって理想的な選択肢となります。大通り沿いの高い視認性は、企業ブランディングにも寄与し、取引先や求職者に対して確かな信頼感を与えます。
開放的な眺望と充実した設備環境は、従業員の満足度向上にもつながり、採用や定着率の向上にも効果を発揮するでしょう。分割対応が可能なため、少人数での入居から始めて、事業拡大に応じて段階的にスペースを拡張していくことも可能です。
また、専有ラウンジや会議室は、採用活動や重要な商談において、自社のオフィスとは異なるプレミアム空間として活用でき、企業の魅力を高める重要な要素となります。
公開情報以外で気になる点などございましたらお気軽にお問い合わせください。内見や、空室確認なども随時承っておりますのでお気軽にご相談ください。
