新橋の中心地に位置する、木の温もりと最新機能が調和した理想的なワークスペースです。
複数路線が利用可能な都心の好立地でありながら、初期費用を大幅に抑えたセットアップ仕様により、スムーズな移転を実現します。
中層階ならではのバランスの取れた環境と、木質化による心地よい空間が、チームの創造性と生産性を最大限に引き出します。詳細は以下をご覧ください。
このオフィスのおすすめポイント
- 都営三田線・JR・東京メトロ複数路線利用可能で通勤に便利
- 初期費用大幅削減!敷金0円・内装工事不要の即入居可能物件
- 水光熱費・清掃・Wi-Fi完備で月額コストが明確
- 中層階の落ち着いた環境で集中できる執務空間
- 木材を活用した温もりある内装が創造性を刺激
- 執務席・会議室・打合ブース・個室ブースが揃った充実設備
- 短期契約相談可能で事業計画の変化に柔軟対応
- 高い天井による開放的で快適な室内環境
- 環境認証取得済みでESG経営をアピール可能
- 2026年竣工の新築で最新設備を完備
オフィスの特徴
都市の利便性と自然の心地よさを両立させた、新しい時代のオフィス環境です。外観デザインは木材を随所に配し、都市景観に柔らかな表情を与えています。訪れる人々に温かみと革新性を同時に伝え、企業イメージの向上に貢献します。
中層階という立地は、適度な高さによる眺望の良さと、落ち着いた執務環境を提供します。エントランスからのアクセスも良好で、日々の業務がスムーズに進みます。
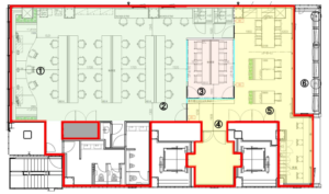
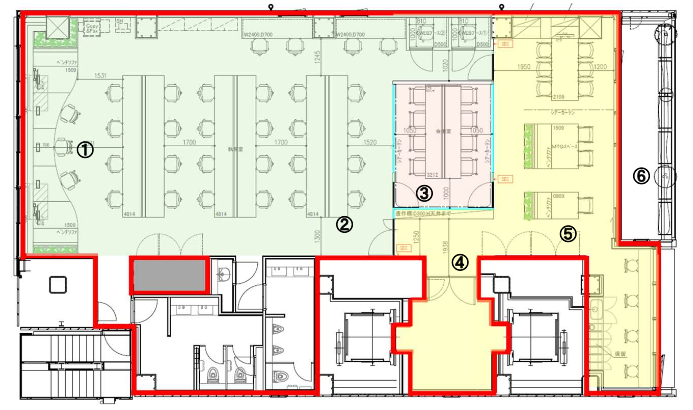
内装は木質化を徹底し、天井・壁・柱など空間全体に木材を使用することで、自然の温もりを感じられる執務環境を実現しています。十分な天井高が開放感をもたらし、長時間の業務でも快適に過ごせます。執務エリアは機能性を重視した設計で、多様な業務スタイルに対応できるよう、会議室・打合ブース・個室ブースなどを配置しています。
新橋エリアは、ビジネスの中心地として多くの企業が集積しており、商談やネットワーキングに最適な立地です。複数の鉄道路線が交差するため、都内はもちろん、首都圏全域へのアクセスも良好で、取引先との連携もスムーズに行えます。周辺には飲食店や商業施設も充実しており、ビジネスとプライベートの両面で快適な環境が整っています。
こんな企業にオススメ
- スピード重視で移転を進めたい成長企業
- 都心の利便性を活かして顧客対応を充実させたい企業
- 木質空間による従業員満足度向上を目指す企業
- 環境配慮型オフィスで企業価値を高めたい企業
- 柔軟な契約で事業拡大のペースに合わせたい企業
- 充実した会議スペースで社内外のコミュニケーションを活性化したい企業
- 明確な運営コストで財務計画を立てやすくしたい企業
- 中層階の落ち着いた環境を求める企業
- 最新の執務環境で人材獲得力を強化したい企業
- 1階ラウンジを活用してオープンなコミュニケーションを促進したい企業
当オフィスは、都心の好立地と木質化による快適性、そしてセットアップによる即入居可能性を高次元で融合させた理想的なワークスペースです。複数路線が利用可能な交通アクセスの良さは、従業員の通勤ストレスを軽減し、取引先との商談にも大きなアドバンテージをもたらします。中層階という立地は、適度な静寂性と開放感のバランスが取れており、集中力を要する業務にも最適です。
敷金不要・内装工事不要という条件により、初期投資を大幅に抑えながら高品質なオフィス環境を実現できます。水光熱費込みの明確な運営コストと、短期契約も相談可能な柔軟性により、変化の激しい現代のビジネス環境に対応できます。
木材を効果的に活用した内装は、従業員の心身の健康をサポートし、創造的な発想や生産性の向上を促します。環境認証を取得した持続可能なオフィスとして、ステークホルダーに対する企業姿勢を明確に示すことができます。
公開情報以外で気になる点などございましたらお気軽にお問い合わせください。内見や、空室確認なども随時承っておりますのでお気軽にご相談ください。
