新橋エリアに誕生する、木質化による温もりとセットアップ仕様による即入居可能性を兼ね備えたオフィス空間です。
内幸町駅から徒歩圏内という抜群のアクセス環境に加え、敷金不要・初期費用を抑えた柔軟な契約形態により、スピーディな移転を実現します。
低層階ならではの利便性と、木材をふんだんに使用した心地よい執務環境が、新しい働き方をサポートします。詳細は以下をご覧ください。
このオフィスのおすすめポイント
- 内幸町駅徒歩2分、新橋駅徒歩5分の好立地でアクセス至便
- 敷金0ヶ月・内装工事不要で初期費用を大幅削減
- 水光熱費・清掃・インターネット込みの賃料で運営コストが明確
- 木質化による温もりある執務空間で快適なワークスタイルを実現
- 1階共用ラウンジへのアクセスが便利で来客対応もスムーズ
- 会議室・打合ブース・個室ブース完備で多様な業務に対応
- 3ヶ月前予告で常時解約可能な柔軟な契約形態
- 高い天井高による開放的な執務環境
- CASBEE-WO Aランク・BELS★★★★取得の環境配慮型オフィス
- 2026年竣工予定の最新スペックを採用した新築オフィス
オフィスの特徴
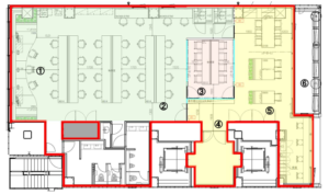
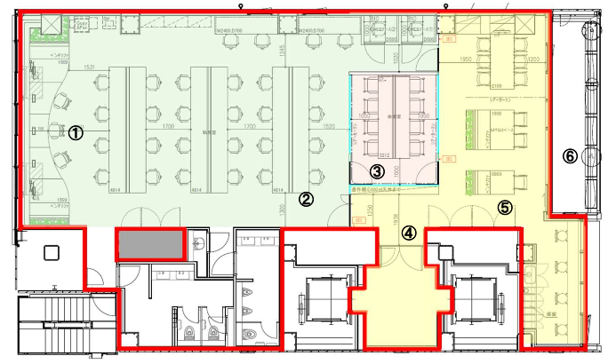
都心の利便性と自然の温もりが融合した、次世代型のワークスペースです。外観は木材を効果的に配置したデザインが特徴で、都市景観に新しい息吹を吹き込んでいます。木材をふんだんに使用した外観は、来訪者に温かみと先進性の両方を印象づけ、企業のブランドイメージ向上にも寄与します。低層階に位置するため、エントランスへのアクセスが良好で、日常の出入りがスムーズです。
また、1階の共用ラウンジを気軽に利用できる距離感も大きな魅力です。内装においても木質化を徹底しており、天井や壁、柱など随所に木材を使用することで、自然の温もりを感じられる執務環境を実現しています。十分な天井高により開放感があり、圧迫感のない快適な空間が広がります。
執務エリアは効率的なレイアウトで設計されており、会議室や打合ブース、個室ブースなど多様なワークスペースを備えています。
新橋・内幸町エリアは、官公庁や大手企業が集積するビジネスの中心地であり、商談や打ち合わせにも便利な立地です。複数路線が利用可能なため、都内各所へのアクセスも良好で、取引先との往来もスムーズに行えます。
こんな企業にオススメ
- 初期費用を抑えてスピーディに移転したい企業
- 都心の好立地で顧客や取引先との商談機会が多い企業
- 従業員の働きやすさと健康面に配慮したい企業
- 環境配慮型オフィスでSDGsへの取り組みをアピールしたい企業
- 柔軟な契約形態で事業の変化に対応したい企業
- 来客対応が頻繁で共用ラウンジを活用したい企業
- 木質空間によるブランドイメージ向上を図りたい企業
- 最新の執務環境で採用力を強化したい企業
- 運営コストを固定化して予算管理を明確にしたい企業
- 低層階の利便性を重視する企業
本物件は、都心の好立地と木質化による快適性、そしてセットアップ仕様による即入居可能性を兼ね備えた、次世代型のオフィス空間です。内幸町駅徒歩2分という抜群のアクセス環境は、従業員の通勤負担を軽減し、顧客や取引先との商談にも最適です。
低層階ならではの利便性により、日常の出入りがスムーズで、1階の共用ラウンジも気軽に活用できます。
敷金不要・内装工事不要というスピーディな入居条件と、水光熱費込みの明確な運営コスト、さらに柔軟な契約形態により、変化の激しいビジネス環境にも対応可能です。木材を効果的に使用した内装は、従業員の心身の健康をサポートし、創造性や生産性の向上にも寄与します。
環境認証を取得した持続可能なオフィスとして、企業の社会的責任を体現できる点も大きな魅力です。
公開情報以外で気になる点などございましたらお気軽にお問い合わせください。内見や、空室確認なども随時承っておりますのでお気軽にご相談ください。
