居抜きオフィス物件検索・掲載サイト【ハイッテ】 > 居抜きオフィス・セットアップオフィスを探す > 【居抜き 表参道駅徒歩6分】南青山エリアの会議室完備オフィス

【居抜き 表参道駅徒歩6分】南青山エリアの会議室完備オフィス

更新日:2025.12.10 公開日:2025.11.25
宅地建物取引士 本田
宅地建物取引士 本田
東京都港区南青山は、ファッションやデザイン、クリエイティブ関連の企業が多く集まるエリアです。閑静ながらも都心へのアクセスが良い点が特徴です。同業種やクリエイティブな分野での交流機会が多いエリアでもあります。
募集終了

スタッフからのコメント

南青山5丁目という洗練されたビジネスエリアに位置する本物件は、モダンな内装と充実した設備を兼ね備えた居抜きオフィスです。
コンクリート打ちっぱなしのスタイリッシュな空間に、複数の会議室やラウンジスペースを完備。即戦力となるワークスペースをお探しの企業様に最適な環境です。詳細は以下をご覧ください。

このオフィスのおすすめポイント

  • 表参道駅徒歩6分・南青山5丁目の好立地
  • 造作付き居抜き物件で初期費用を大幅削減
  • 会議室7室完備で社内外のミーティングに対応
  • コンクリート打ちっぱなし天井のスタイリッシュな内装
  • 無垢材フローリングで温かみのある空間
  • ラウンジスペース完備でリフレッシュ環境も充実
  • セキュリティシステム導入済みで安心
  • 大きな窓から自然光が降り注ぐ明るい空間
  • 本棚やカウンター席など多様なワークスペース
  • 24時間利用可能で柔軟な働き方に対応

オフィスの特徴

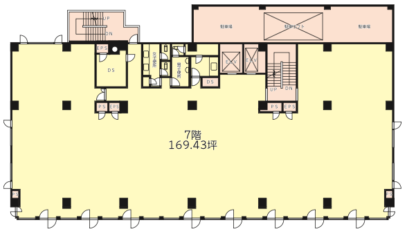
当オフィスは、南青山5丁目という都内屈指のビジネスエリアに立地しています。表参道駅から徒歩6分でアクセスでき、周辺にはハイブランドショップや洗練された飲食店が立ち並ぶ環境です。来訪者への印象も良く、企業ブランディングにも効果的な立地と言えます。内装は、コンクリート打ちっぱなしの天井とLED照明が織りなすモダンな空間が特徴です。床には無垢材のフローリングを採用し、洗練された印象の中にも温かみを感じられる設えとなっています。居抜き物件のため、デスクやチェア、会議室の造作がそのまま利用でき、初期費用を抑えながらすぐに業務を開始できる点も大きな魅力です。会議室は7室を完備しており、社内ミーティングから来客対応まで幅広く活用いただけます。大きな窓からは都市の景観を一望でき、開放感のある環境で創造的な業務に取り組めます。また、本棚やカウンター席を備えたラウンジスペースもあり、集中作業やリフレッシュなど多様な働き方に対応しています。

こんな企業にオススメ

  • 初期費用を抑えて移転したい企業
  • 南青山エリアでブランドイメージを高めたい企業
  • 会議室を頻繁に使用する企業
  • クリエイティブな発想を重視する企業
  • 来客の多い企業
  • 急成長中でスピーディーに入居したい企業
  • スタイリッシュなオフィス環境を求める企業
  • 従業員の働きやすさを重視する企業
  • 複数のプロジェクトを同時進行する企業
  • 表参道エリアへのアクセスを重視する企業

本物件は、南青山5丁目という一等地に位置する居抜きオフィスです。表参道駅徒歩6分という利便性の高いアクセスに加え、造作付きでの引き渡しとなるため、デスクやチェア、会議室などをそのまま活用いただけます。入居後すぐに業務を開始できる即入居可能な環境が整っており、移転に伴う時間とコストを大幅に削減できる点は大きな魅力です。
コンクリート打ちっぱなしの天井と無垢材フローリングが織りなすスタイリッシュな空間は、従業員のモチベーション向上はもちろん、来訪者にも洗練された印象を与えます。
7室の会議室やラウンジスペース、本棚など、業務効率を高める設備も充実しており、成長企業の多様なニーズに応える環境が整っています。
南青山というブランド力のあるエリアで、洗練されたオフィス環境をお探しの企業様には最適な物件です。
公開情報以外で気になる点などございましたらお気軽にお問い合わせください。内見や、空室確認なども随時承っておりますのでお気軽にご相談ください。

営業担当者

古川 達也

古川 達也

Tatsuya Furukawa
セールス

宅地建物取引士
【東京都知事:第290485号】

オフィス詳細情報

物件番号 3195
エリア 東京都港区南青山
アクセス 表参道駅徒歩6分
坪数 164~174坪
坪単価 18,000~22,000円 / 坪
月額賃料 3,050,000~3,720,000円
推奨人数 81人以上
オフィスタイプ
築年月 1975年3月
階数 7F
周辺施設 青山ツイン
国立新美術館
根津美術館

募集条件

敷金 0ヶ月
礼金 2ヶ月
保証金 6ヶ月
償却 相談
更新料 相談
保証会社 必須
入居可能時期 2026年4月
契約期間 相談

ショート動画

スタッフからのコメント

南青山5丁目という洗練されたビジネスエリアに位置する本物件は、モダンな内装と充実した設備を兼ね備えた居抜きオフィスです。
コンクリート打ちっぱなしのスタイリッシュな空間に、複数の会議室やラウンジスペースを完備。即戦力となるワークスペースをお探しの企業様に最適な環境です。詳細は以下をご覧ください。

このオフィスのおすすめポイント

  • 表参道駅徒歩6分・南青山5丁目の好立地
  • 造作付き居抜き物件で初期費用を大幅削減
  • 会議室7室完備で社内外のミーティングに対応
  • コンクリート打ちっぱなし天井のスタイリッシュな内装
  • 無垢材フローリングで温かみのある空間
  • ラウンジスペース完備でリフレッシュ環境も充実
  • セキュリティシステム導入済みで安心
  • 大きな窓から自然光が降り注ぐ明るい空間
  • 本棚やカウンター席など多様なワークスペース
  • 24時間利用可能で柔軟な働き方に対応

オフィスの特徴

当オフィスは、南青山5丁目という都内屈指のビジネスエリアに立地しています。表参道駅から徒歩6分でアクセスでき、周辺にはハイブランドショップや洗練された飲食店が立ち並ぶ環境です。来訪者への印象も良く、企業ブランディングにも効果的な立地と言えます。内装は、コンクリート打ちっぱなしの天井とLED照明が織りなすモダンな空間が特徴です。床には無垢材のフローリングを採用し、洗練された印象の中にも温かみを感じられる設えとなっています。居抜き物件のため、デスクやチェア、会議室の造作がそのまま利用でき、初期費用を抑えながらすぐに業務を開始できる点も大きな魅力です。会議室は7室を完備しており、社内ミーティングから来客対応まで幅広く活用いただけます。大きな窓からは都市の景観を一望でき、開放感のある環境で創造的な業務に取り組めます。また、本棚やカウンター席を備えたラウンジスペースもあり、集中作業やリフレッシュなど多様な働き方に対応しています。

こんな企業にオススメ

  • 初期費用を抑えて移転したい企業
  • 南青山エリアでブランドイメージを高めたい企業
  • 会議室を頻繁に使用する企業
  • クリエイティブな発想を重視する企業
  • 来客の多い企業
  • 急成長中でスピーディーに入居したい企業
  • スタイリッシュなオフィス環境を求める企業
  • 従業員の働きやすさを重視する企業
  • 複数のプロジェクトを同時進行する企業
  • 表参道エリアへのアクセスを重視する企業

本物件は、南青山5丁目という一等地に位置する居抜きオフィスです。表参道駅徒歩6分という利便性の高いアクセスに加え、造作付きでの引き渡しとなるため、デスクやチェア、会議室などをそのまま活用いただけます。入居後すぐに業務を開始できる即入居可能な環境が整っており、移転に伴う時間とコストを大幅に削減できる点は大きな魅力です。
コンクリート打ちっぱなしの天井と無垢材フローリングが織りなすスタイリッシュな空間は、従業員のモチベーション向上はもちろん、来訪者にも洗練された印象を与えます。
7室の会議室やラウンジスペース、本棚など、業務効率を高める設備も充実しており、成長企業の多様なニーズに応える環境が整っています。
南青山というブランド力のあるエリアで、洗練されたオフィス環境をお探しの企業様には最適な物件です。
公開情報以外で気になる点などございましたらお気軽にお問い合わせください。内見や、空室確認なども随時承っておりますのでお気軽にご相談ください。

営業担当者

古川 達也

古川 達也

Tatsuya Furukawa
セールス

宅地建物取引士
【東京都知事:第290485号】

当オフィスの設備

  • デザイナーズオフィス
  • フォンブース
  • ファミレス席
  • リノベーションオフィス
  • 駐車場付き
  • 駐輪場あり
  • 築浅
  • 男女別トイレ
  • 会議室あり
  • 耐震
  • バルコニーorテラスor屋上あり
  • スケルトン天井
  • ワンフロア
  • 一棟貸し
  • セントラル空調
  • OAフロア
  • 天井が高い
  • 個別空調
  • 貸会議室あり
  • ラウンジ

当オフィスの周辺環境

似ているオフィス物件のお問い合わせ

このサイトはreCAPTCHAによって保護されており、Googleのプライバシーポリシー利用規約が適用されます。

お電話でのお問い合わせはこちら

0120-19-1925 受付時間:10:00~18:00

同じ坪数&エリアの物件

お問い合せ受付中
【セットアップ 赤坂見附駅徒歩2分】洗練された内装と抜群のアクセスを誇るオフィス

【セットアップ 赤坂見附駅徒歩2分】洗練された内装と抜群のアクセスを誇るオフィス

エリア
港区赤坂
アクセス
赤坂見附駅徒歩2分,赤坂駅徒歩5分,永田町駅徒歩5分,溜池山王駅徒歩10分
坪数
31~41坪
坪単価
25,000~29,000円 / 坪
推奨人数
お問い合せ受付中
【セットアップ 三田駅5分】充実の会議室とWEBブースを備えた上質空間

【セットアップ 三田駅5分】充実の会議室とWEBブースを備えた上質空間

エリア
港区三田
アクセス
三田駅徒歩5分,田町駅徒歩7分
坪数
101~111坪
坪単価
31,000~35,000円 / 坪
推奨人数
51~80人
お問い合せ受付中
【セットアップ 赤坂見附駅4分】会議室2室完備の回遊型セットアップオフィス

【セットアップ 赤坂見附駅4分】会議室2室完備の回遊型セットアップオフィス

エリア
港区元赤坂
アクセス
赤坂見附駅徒歩4分,永田町駅徒歩7分,赤坂駅徒歩9分
坪数
54~64坪
坪単価
-
推奨人数
11~30人
お問い合せ受付中
【セットアップ 三田駅5分】会議室・ラウンジ・フォンブース完備の環境配慮型オフィス

【セットアップ 三田駅5分】会議室・ラウンジ・フォンブース完備の環境配慮型オフィス

エリア
港区芝
アクセス
三田駅徒歩5分,田町駅徒歩8分,芝公園駅徒歩8分,赤羽橋駅徒歩9分
坪数
94~104坪
坪単価
27,000~31,000円 / 坪
推奨人数
31~50人
お問い合せ受付中
【セットアップ 田町駅5分】敷金・礼金0円!会議室・フォンブース完備オフィス

【セットアップ 田町駅5分】敷金・礼金0円!会議室・フォンブース完備オフィス

エリア
港区芝浦
アクセス
田町駅徒歩5分,三田駅徒歩8分,芝浦ふ頭駅徒歩9分
坪数
30~40坪
坪単価
39,000~43,000円 / 坪
推奨人数
11~30人
お問い合せ受付中
【セットアップ 田町駅5分】最新設備が揃うバルコニー付きデザインオフィス

【セットアップ 田町駅5分】最新設備が揃うバルコニー付きデザインオフィス

エリア
港区芝浦
アクセス
田町駅徒歩5分,三田駅徒歩8分,芝浦ふ頭駅徒歩9分
坪数
18~28坪
坪単価
37,000~41,000円 / 坪
推奨人数
11~30人

ハイッテの居抜きオフィス移転なら、
移転費用最大0円。期間短縮。
SDGsに貢献にできる。

オフィス・事務所の居抜き退去・入居ができる検索・掲載サービスです。
居抜き退去で原状回復費用を、居抜き入居で内装工事費用を大幅に削減!
採用戦略や事業運営に応じた、最適な移転提案でスタートアップ・ベンチャー企業の成長をサポートします。

お役立ち資料

オフィスプランニングシート【内見・内覧にも使える】

オフィスプランニングシート【内見・内覧にも使える】

オフィス移転の工数を1/3削減!レイアウトを考えるポイント(ガイド)

オフィス移転の工数を1/3削減!レイアウトを考えるポイント(ガイド)

5分でわかる原状回復!退去費用0円にする居抜きの魅力(ガイド)

5分でわかる原状回復!退去費用0円にする居抜きの魅力(ガイド)

解約通知書テンプレートを無料ダウンロード

解約通知書テンプレートを無料ダウンロード

居抜きオフィス移転完全マニュアル(ガイド)

居抜きオフィス移転完全マニュアル(ガイド)

本当にあった!居抜きオフィス移転トラブル事例5選(ガイド)

本当にあった!居抜きオフィス移転トラブル事例5選(ガイド)

居抜きオフィス移転チェックリスト

居抜きオフィス移転チェックリスト

オフィス・事務所移転を進めるためのスケジュールガイドを無料ダウンロード

オフィス・事務所移転を進めるためのスケジュールガイドを無料ダウンロード

面倒な物件探しは、まるっとおまかせ。非公開物件も多数 おまかせ問い合わせはコチラ
お問い合わせ