日本橋の中心で5路線が利用できる圧倒的な交通利便性と、充実した共用ファシリティが魅力のセットアップオフィスです。コンパクトながら機能的な空間設計で、効率的なビジネス運営を実現します。詳細は以下をご覧ください。
このオフィスのおすすめポイント
- 人形町駅徒歩5分、都営・メトロ5路線で都内主要エリアへスムーズアクセス
- 敷金0円・原状回復不要で移転時の負担を最小限に
- デスク・チェア完備のセットアップ仕様で家具調達の手間とコストを削減
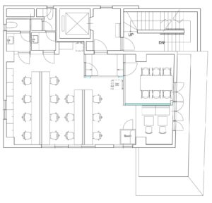
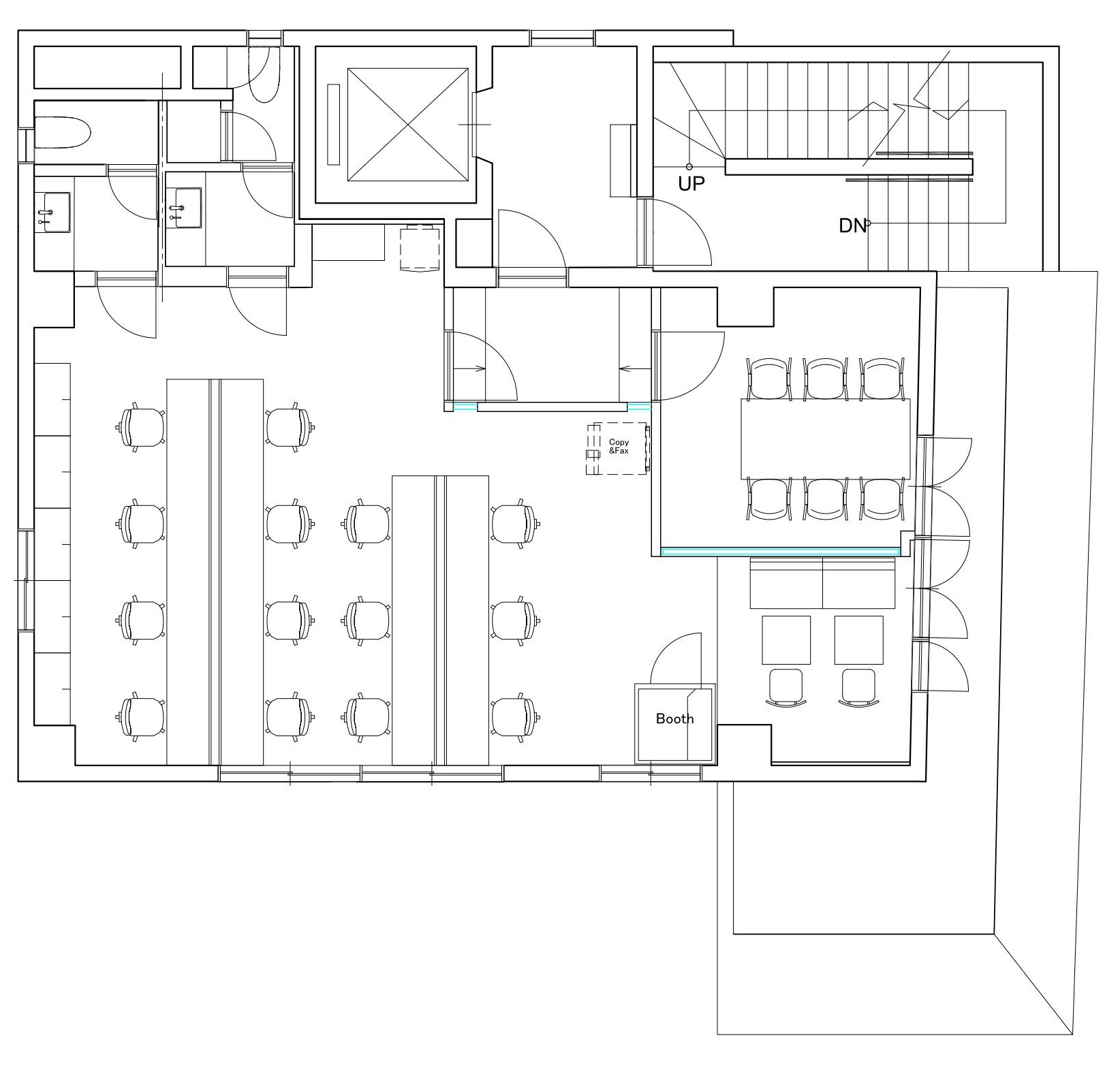
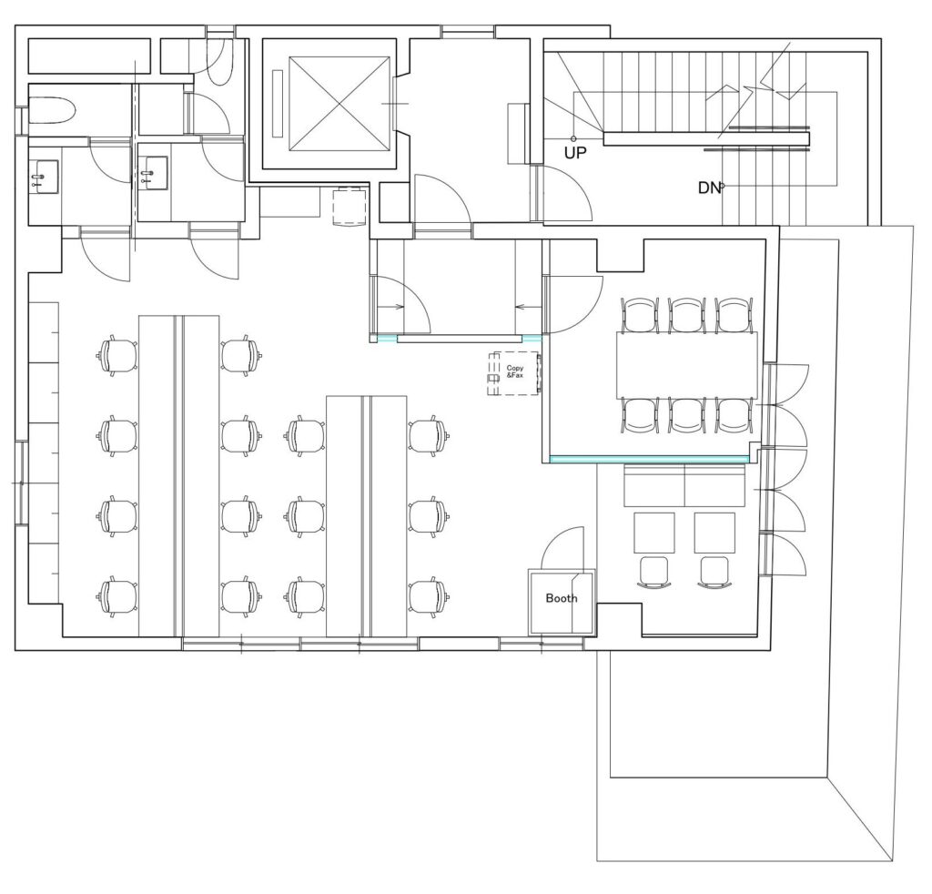
- 4名用会議室と集中ブースで用途に応じた空間利用が可能
- セキュリティ完備で安心して業務に集中できる環境
オフィスの特徴
当オフィスは、効率性を追求したコンパクトな設計が特徴です。ナチュラルウッドとモダンな石調素材を組み合わせた内装は、落ち着きと先進性を兼ね備えた雰囲気を醸成します。エントランスエリアは企業の顔として来訪者に好印象を与える洗練された空間となっており、ブランドイメージの向上に寄与します。執務エリアは集中力を高めるレイアウトで、少人数チームの生産性を最大化します。会議室と集中ブースを使い分けることで、商談からリモート会議、個人作業まで幅広いシーンに対応可能です。日本橋という歴史あるビジネス街の利便性を享受しながら、現代的な働き方を実践できます。
こんな企業にオススメ
- スタートアップやプロジェクトチームなど機動力を重視する企業
- 取引先が都内各所に点在し交通利便性を最優先する企業
- 初期投資を抑えながらも品格あるオフィス環境を求める企業
本物件は、都心の利便性と機能性を最大限に活かした、効率的なビジネス展開に最適なオフィスです。公開情報以外で気になる点などございましたらお気軽にお問い合わせください。内見や、空室確認なども随時承っておりますのでお気軽にご相談ください。
