利便性の高い立地と洗練された内装が融合した、創造性を刺激するメゾネットタイプのオフィス環境です。詳細は以下をご覧ください。
このオフィスのおすすめポイント
- 茅場町駅徒歩2分の好立地
- 8名用会議室とフォンブース2台を完備
- 最上階かつ専用テラス付きの開放的な空間
- 一部什器付きのセットアップ仕様
- 内階段で行き来可能なメゾネットスタイル
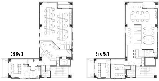
オフィスの特徴
最寄り駅から徒歩2分という抜群のアクセスを誇りながら、最上階のメゾネット区画という希少性の高いワークスペースです。
コンクリート打ち放しの壁面とウッド調のフローリングが調和したモダンな内装は、来訪者に先進的で洗練された印象を与えます。9階と10階を専用の内階段で結ぶ構成により、執務スペースと会議スペースを明確に分けるなど、機能的なレイアウトが可能です。
さらに、10階には開放感あふれる専用テラスが備わっており、リフレッシュスペースや社内コミュニケーションの場として活用いただけます。都市の利便性を享受しながら、創造性を高める上質な環境が整っています。
こんな企業にオススメ
- 来客へのブランディングを重視する企業
- 部署間やオンオフの切り替えを重視する企業
- 都心での機動力を活かしたい企業
本物件は、駅至近の利便性と独自性のあるデザインを兼ね備えた希少なオフィスです。
公開情報以外で気になる点などございましたらお気軽にお問い合わせください。内見や、空室確認なども随時承っておりますのでお気軽にご相談ください。
