居抜きオフィス物件検索・掲載サイト【ハイッテ】 > 居抜きオフィス・セットアップオフィスを探す > 【セットアップ 東日本橋駅徒歩4分】什器完備・テレカンブース付き

【セットアップ 東日本橋駅徒歩4分】什器完備・テレカンブース付き

更新日:2026.03.09 公開日:2026.01.30
宅地建物取引士 本田
宅地建物取引士 本田
東京都中央区日本橋久松町は、多くの企業や金融機関、法律事務所が集まっています。ビジネス機会が豊富であり、東京駅も近くにあり、交通の要所となっています。様々な業種や分野が混在しているため、幅広いビジネス機会が広がります。近代的で高層のオフィスビルが多く、最新設備が整っており、景観も良好です。
募集終了

スタッフからのコメント

駅近好立地と充実設備を兼ね備えたセットアップオフィスです。詳細は以下をご覧ください。

このオフィスのおすすめポイント

  • 東日本橋駅徒歩4分、人形町駅徒歩5分の好立地
  • 執務室・会議室に什器完備のフルセットアップ仕様
  • Webミーティングに便利なテレカンブース付き
  • 木目調の温かみあるラウンジスペース完備
  • 男女別トイレとWi-Fi環境を標準装備

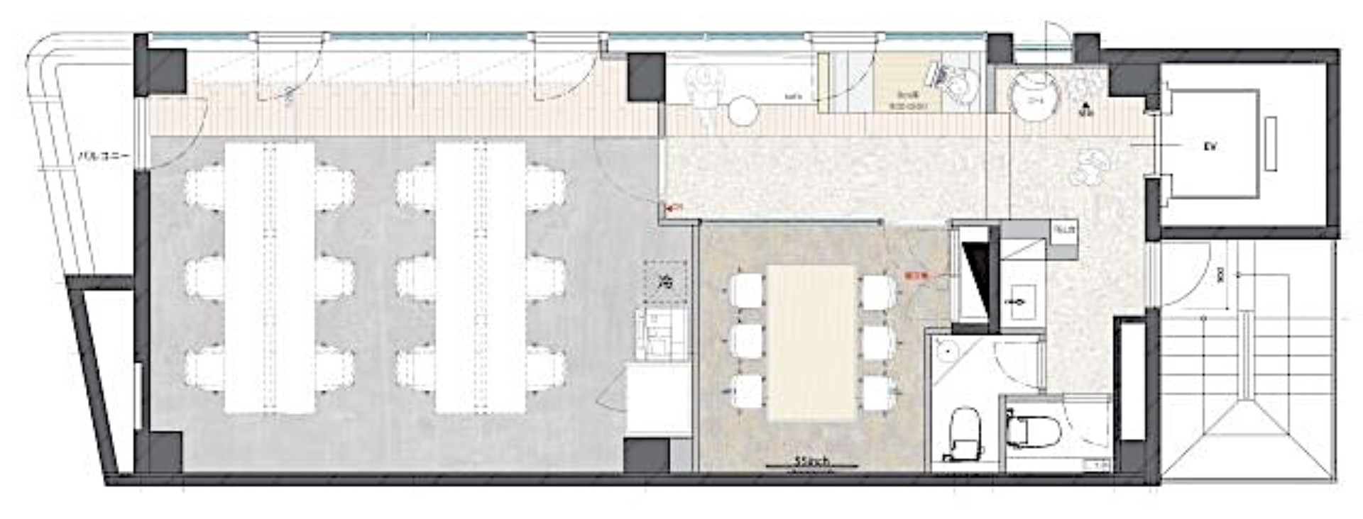
オフィスの特徴

白を基調とした清潔感のある外観が、来訪者に好印象を与えるビルです。内装は天井を開放的に仕上げ、モダンな雰囲気の中で集中しやすい環境を実現しています。
執務室にはデスクと椅子が設置済みで、会議室も同様に什器完備のため、入居後すぐに業務を開始できます。木目調の壁面が印象的なラウンジスペースでは、ソファー席でのカジュアルな打ち合わせや休憩が可能です。
東日本橋エリアは日本橋・人形町方面へのアクセスも良好で、取引先との往来にも便利な立地といえます。男女別トイレも専用で設けられており、快適なオフィス環境が整っています。

こんな企業にオススメ

  • 初期コストを抑えてスピーディーに拠点を開設したい企業
  • Web会議や電話対応が多く集中できる環境を求める企業
  • 来客対応の機会が多くアクセスの良さを重視する企業

本物件は、都営浅草線・日比谷線・新宿線の3路線が利用可能な好立地に加え、什器完備のセットアップ仕様で即入居が可能です。テレカンブースやラウンジスペースなど、多様な働き方に対応した設備が充実しています。
公開情報以外で気になる点などございましたらお気軽にお問い合わせください。内見や、空室確認なども随時承っておりますのでお気軽にご相談ください。

営業担当者

古川 達也

古川 達也

Tatsuya Furukawa
セールス

宅地建物取引士
【東京都知事:第290485号】

オフィス詳細情報

物件番号 3248
エリア 東京都中央区日本橋久松町
アクセス 東日本橋駅徒歩4分,馬喰横山駅徒歩4分,浜町駅徒歩4分,人形町駅徒歩5分,馬喰町駅徒歩8分
坪数 72~82坪
坪単価 23,000~27,000円 / 坪
月額賃料 1,790,000~2,090,000円
推奨人数 31~50人
オフィスタイプ
築年月 1991年8月
階数 8F
周辺施設 日本国道路元標
コレド室町
日本橋室町三井タワー

募集条件

敷金 4ヶ月
礼金 0ヶ月
保証金 相談
償却 0ヶ月
更新料 0ヶ月
保証会社 必須
入居可能時期 2026年2月
契約期間 相談

ショート動画

スタッフからのコメント

駅近好立地と充実設備を兼ね備えたセットアップオフィスです。詳細は以下をご覧ください。

このオフィスのおすすめポイント

  • 東日本橋駅徒歩4分、人形町駅徒歩5分の好立地
  • 執務室・会議室に什器完備のフルセットアップ仕様
  • Webミーティングに便利なテレカンブース付き
  • 木目調の温かみあるラウンジスペース完備
  • 男女別トイレとWi-Fi環境を標準装備

オフィスの特徴

白を基調とした清潔感のある外観が、来訪者に好印象を与えるビルです。内装は天井を開放的に仕上げ、モダンな雰囲気の中で集中しやすい環境を実現しています。
執務室にはデスクと椅子が設置済みで、会議室も同様に什器完備のため、入居後すぐに業務を開始できます。木目調の壁面が印象的なラウンジスペースでは、ソファー席でのカジュアルな打ち合わせや休憩が可能です。
東日本橋エリアは日本橋・人形町方面へのアクセスも良好で、取引先との往来にも便利な立地といえます。男女別トイレも専用で設けられており、快適なオフィス環境が整っています。

こんな企業にオススメ

  • 初期コストを抑えてスピーディーに拠点を開設したい企業
  • Web会議や電話対応が多く集中できる環境を求める企業
  • 来客対応の機会が多くアクセスの良さを重視する企業

本物件は、都営浅草線・日比谷線・新宿線の3路線が利用可能な好立地に加え、什器完備のセットアップ仕様で即入居が可能です。テレカンブースやラウンジスペースなど、多様な働き方に対応した設備が充実しています。
公開情報以外で気になる点などございましたらお気軽にお問い合わせください。内見や、空室確認なども随時承っておりますのでお気軽にご相談ください。

営業担当者

古川 達也

古川 達也

Tatsuya Furukawa
セールス

宅地建物取引士
【東京都知事:第290485号】

当オフィスの設備

  • デザイナーズオフィス
  • フォンブース
  • ファミレス席
  • リノベーションオフィス
  • 駐車場付き
  • 駐輪場あり
  • 築浅
  • 男女別トイレ
  • 会議室あり
  • 耐震
  • バルコニーorテラスor屋上あり
  • スケルトン天井
  • ワンフロア
  • 一棟貸し
  • セントラル空調
  • OAフロア
  • 天井が高い
  • 個別空調
  • 貸会議室あり
  • ラウンジ

当オフィスの周辺環境

似ているオフィス物件のお問い合わせ

このサイトはreCAPTCHAによって保護されており、Googleのプライバシーポリシー利用規約が適用されます。

お電話でのお問い合わせはこちら

0120-19-1925 受付時間:10:00~18:00

同じ坪数&エリアの物件

居抜き入居募集中
【居抜き 渋谷駅】天井高2.55m!青山通り沿いの明るい居抜きオフィス

【居抜き 渋谷駅】天井高2.55m!青山通り沿いの明るい居抜きオフィス

エリア
渋谷区渋谷
アクセス
渋谷駅徒歩6分
坪数
101~111坪
坪単価
-
推奨人数
51~80人
お問い合せ受付中
【居抜き 六本木一丁目駅】創造性を刺激する六本木オフィス 複数路線で利便性抜群

【居抜き 六本木一丁目駅】創造性を刺激する六本木オフィス 複数路線で利便性抜群

エリア
港区六本木
アクセス
六本木駅徒歩8分,六本木一丁目駅徒歩4分,麻布十番駅徒歩12分
坪数
97~107坪
坪単価
22,000~26,000円 / 坪
推奨人数
51~80人
お問い合せ受付中
【セットアップ 茅場町駅6分】家具設置済みで即稼働可能な最上階の洗練されたワークスペース

【セットアップ 茅場町駅6分】家具設置済みで即稼働可能な最上階の洗練されたワークスペース

エリア
中央区新川
アクセス
茅場町駅徒歩6分,八丁堀駅徒歩7分,水天宮前駅徒歩10分
坪数
24~34坪
坪単価
20,000~24,000円 / 坪
推奨人数
11~30人
お問い合せ受付中
【セットアップ 新富町駅徒歩2分】最新リニューアル済みの快適オフィス

【セットアップ 新富町駅徒歩2分】最新リニューアル済みの快適オフィス

エリア
中央区新富
アクセス
新富町駅徒歩2分,築地駅徒歩7分,宝町駅徒歩7分,銀座一丁目駅徒歩10分,東銀座駅徒歩10分
坪数
14~24坪
坪単価
15,000~19,000円 / 坪
推奨人数
10人以下
お問い合せ受付中
【セットアップ 茅場町駅6分】家具・会議室完備!木目の温もりを感じる開放的な上層階オフィス

【セットアップ 茅場町駅6分】家具・会議室完備!木目の温もりを感じる開放的な上層階オフィス

エリア
中央区新川
アクセス
茅場町駅徒歩6分,八丁堀駅徒歩7分,水天宮前駅徒歩10分
坪数
33~43坪
坪単価
20,000~24,000円 / 坪
推奨人数
お問い合せ受付中
【セットアップ 茅場町駅2分】専用テラスと会議室完備のメゾネットオフィス

【セットアップ 茅場町駅2分】専用テラスと会議室完備のメゾネットオフィス

エリア
中央区日本橋茅場町
アクセス
茅場町駅徒歩1分,日本橋駅徒歩4分
坪数
66~76坪
坪単価
27,000~31,000円 / 坪
推奨人数
31~50人

ハイッテの居抜きオフィス移転なら、
移転費用最大0円。期間短縮。
SDGsに貢献にできる。

オフィス・事務所の居抜き退去・入居ができる検索・掲載サービスです。
居抜き退去で原状回復費用を、居抜き入居で内装工事費用を大幅に削減!
採用戦略や事業運営に応じた、最適な移転提案でスタートアップ・ベンチャー企業の成長をサポートします。

お役立ち資料

居抜きオフィス移転チェックリスト

居抜きオフィス移転チェックリスト

オフィス・事務所移転を進めるためのスケジュールガイドを無料ダウンロード

オフィス・事務所移転を進めるためのスケジュールガイドを無料ダウンロード

5分でわかる原状回復!退去費用0円にする居抜きの魅力(ガイド)

5分でわかる原状回復!退去費用0円にする居抜きの魅力(ガイド)

居抜きオフィス移転完全マニュアル(ガイド)

居抜きオフィス移転完全マニュアル(ガイド)

解約通知書テンプレートを無料ダウンロード

解約通知書テンプレートを無料ダウンロード

オフィスプランニングシート【内見・内覧にも使える】

オフィスプランニングシート【内見・内覧にも使える】

オフィス移転の工数を1/3削減!レイアウトを考えるポイント(ガイド)

オフィス移転の工数を1/3削減!レイアウトを考えるポイント(ガイド)

本当にあった!居抜きオフィス移転トラブル事例5選(ガイド)

本当にあった!居抜きオフィス移転トラブル事例5選(ガイド)