居抜きオフィス物件検索・掲載サイト【ハイッテ】 > 居抜きオフィス・セットアップオフィスを探す > 【セットアップ 馬喰横山駅徒歩3分】会議室3室・ブース完備の開放的な高天井オフィス

【セットアップ 馬喰横山駅徒歩3分】会議室3室・ブース完備の開放的な高天井オフィス

更新日:2026.04.16 公開日:2023.04.07
宅地建物取引士 本田
宅地建物取引士 本田
東京都中央区日本橋久松町は、多くの企業や金融機関、法律事務所が集まっています。ビジネス機会が豊富であり、東京駅も近くにあり、交通の要所となっています。様々な業種や分野が混在しているため、幅広いビジネス機会が広がります。近代的で高層のオフィスビルが多く、最新設備が整っており、景観も良好です。
お問い合わせ受付中

スタッフからのコメント

都心アクセスの利便性と、洗練されたデザインが融合したセットアップオフィスが誕生しました。
上層階ならではの開放的な空間の詳細は以下をご覧ください。

このオフィスのおすすめポイント

  • 馬喰横山駅・東日本橋駅から徒歩3分など5駅5路線利用可能な好立地
  • 会議室3室とテレカンブース2台を完備した充実のセットアップ仕様
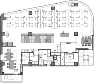
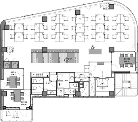
  • 天井高3,270mmの開放感あふれるスケルトン天井デザインを採用
  • 男女別トイレ完備かつ機械警備導入で安心・快適なワークスペース

オフィスの特徴

2022年に貸室内のセットアップ工事を完了した、機能美に優れたワークスペースです 。

最大のアピールポイントは、3mを超える圧倒的な天井高を活かした開放的な空間設計です 。

上層階に位置するため窓からの見通しも良く、赤みを帯びたスケルトン天井とモダンな照明器具が、従業員の創造性を刺激する心地よい執務環境を提供します。

室内には会議室に加え、Web会議に最適なテレカンブースも2台設置されており、現代の多様な働き方に即座に対応可能です 。

周辺は落ち着いた日本橋エリアながら飲食店や利便施設が豊富に揃い、来訪者にとっても非常にアクセスの良い絶好のロケーションといえます 。

こんな企業にオススメ

  • 内装工事の手間や初期費用を抑えてスピーディーに移転したい企業
  • Web会議の頻度が高く専用のブース環境を求めている企業
  • 開放的な高天井の空間で従業員のモチベーションを高めたい企業

当オフィスは、機能性とデザイン性を高次元で両立させた希少な上層階物件です。
公開情報以外で気になる点などございましたらお気軽にお問い合わせください。
内見や、空室確認なども随時承っておりますのでお気軽にご相談ください。

営業担当者

本田 司

本田 司

Tsukasa Honda
セールス

宅地建物取引士

【大阪:第125679号】

オフィス詳細情報

物件番号 1653
エリア 東京都中央区日本橋久松町
アクセス 馬喰横山駅徒歩3分,東日本橋駅徒歩3分,人形町駅徒歩6分
坪数 55~65坪
坪単価 19,000~23,000円 / 坪
月額賃料 1,160,000~1,400,000円
推奨人数 31~50人
オフィスタイプ
築年月 1988年10月
階数 8F
周辺施設 日本国道路元標
コレド室町
日本橋室町三井タワー
こだわり条件

募集条件

敷金 6ヶ月
礼金 0ヶ月
保証金 0ヶ月
償却 0ヶ月
更新料 0ヶ月
保証会社 必須(保証会社指定あり)
入居可能時期 2026年6月
契約期間 2年

ショート動画

スタッフからのコメント

都心アクセスの利便性と、洗練されたデザインが融合したセットアップオフィスが誕生しました。
上層階ならではの開放的な空間の詳細は以下をご覧ください。

このオフィスのおすすめポイント

  • 馬喰横山駅・東日本橋駅から徒歩3分など5駅5路線利用可能な好立地
  • 会議室3室とテレカンブース2台を完備した充実のセットアップ仕様
  • 天井高3,270mmの開放感あふれるスケルトン天井デザインを採用
  • 男女別トイレ完備かつ機械警備導入で安心・快適なワークスペース

オフィスの特徴

2022年に貸室内のセットアップ工事を完了した、機能美に優れたワークスペースです 。

最大のアピールポイントは、3mを超える圧倒的な天井高を活かした開放的な空間設計です 。

上層階に位置するため窓からの見通しも良く、赤みを帯びたスケルトン天井とモダンな照明器具が、従業員の創造性を刺激する心地よい執務環境を提供します。

室内には会議室に加え、Web会議に最適なテレカンブースも2台設置されており、現代の多様な働き方に即座に対応可能です 。

周辺は落ち着いた日本橋エリアながら飲食店や利便施設が豊富に揃い、来訪者にとっても非常にアクセスの良い絶好のロケーションといえます 。

こんな企業にオススメ

  • 内装工事の手間や初期費用を抑えてスピーディーに移転したい企業
  • Web会議の頻度が高く専用のブース環境を求めている企業
  • 開放的な高天井の空間で従業員のモチベーションを高めたい企業

当オフィスは、機能性とデザイン性を高次元で両立させた希少な上層階物件です。
公開情報以外で気になる点などございましたらお気軽にお問い合わせください。
内見や、空室確認なども随時承っておりますのでお気軽にご相談ください。

営業担当者

本田 司

本田 司

Tsukasa Honda
セールス

宅地建物取引士

【大阪:第125679号】

当オフィスの設備

  • デザイナーズオフィス
  • フォンブース
  • ファミレス席
  • リノベーションオフィス
  • 駐車場付き
  • 駐輪場あり
  • 築浅
  • 男女別トイレ
  • 会議室あり
  • 耐震
  • バルコニーorテラスor屋上あり
  • スケルトン天井
  • ワンフロア
  • 一棟貸し
  • セントラル空調
  • OAフロア
  • 天井が高い
  • 個別空調
  • 貸会議室あり
  • ラウンジ

当オフィスの周辺環境

このオフィス物件へのお問い合わせ

このサイトはreCAPTCHAによって保護されており、Googleのプライバシーポリシー利用規約が適用されます。

お電話でのお問い合わせはこちら

0120-19-1925 受付時間:10:00~18:00

同じ坪数&エリアの物件

ハイッテおすすめ
【居抜き 八丁堀駅徒歩2分】敷金0&会議室完備の築浅オフィス

【居抜き 八丁堀駅徒歩2分】敷金0&会議室完備の築浅オフィス

エリア
中央区八丁堀
アクセス
八丁堀駅徒歩2分,茅場町駅徒歩3分
坪数
59~69坪
坪単価
24,000~28,000円 / 坪
推奨人数
31~50人
お問い合せ受付中
【セットアップ 八丁堀駅徒歩2分】随所に木目調を取り入れたデザインオフィス

【セットアップ 八丁堀駅徒歩2分】随所に木目調を取り入れたデザインオフィス

エリア
中央区八丁堀
アクセス
八丁堀駅徒歩2分,宝町駅徒歩6分
坪数
60~70坪
坪単価
21,000~25,000円 / 坪
推奨人数
31~50人
お問い合せ受付中
【セットアップ 人形町駅徒歩3分】利便性×デザイン性を兼ね備えた人形町エリアのオフィス

【セットアップ 人形町駅徒歩3分】利便性×デザイン性を兼ね備えた人形町エリアのオフィス

エリア
中央区日本橋堀留町
アクセス
人形町駅徒歩3分,小伝馬町駅徒歩6分,水天宮前駅徒歩7分,馬喰横山駅徒歩8分
坪数
56~66坪
坪単価
20,000~24,000円 / 坪
推奨人数
31~50人
お問い合せ受付中
【セットアップ 人形町駅徒歩4分】複数路線利用可のオフィスで快適なビジネスを実現

【セットアップ 人形町駅徒歩4分】複数路線利用可のオフィスで快適なビジネスを実現

エリア
中央区日本橋富沢町
アクセス
人形町駅徒歩4分,馬喰横山駅徒歩6分,東日本橋駅徒歩7分,浜町駅徒歩7分
坪数
57~67坪
坪単価
-
推奨人数
31~50人
ハイッテおすすめ
【居抜き 神谷町駅徒歩1分】虎ノ門・新橋エリアの居抜き移転可オフィス

【居抜き 神谷町駅徒歩1分】虎ノ門・新橋エリアの居抜き移転可オフィス

エリア
港区虎ノ門
アクセス
神谷町駅徒歩1分,六本木一丁目駅徒歩8分,虎ノ門ヒルズ駅徒歩8分
坪数
69~79坪
坪単価
19,000~23,000円 / 坪
推奨人数
31~50人
お問い合せ受付中
【セットアップ 宝町駅徒歩3分】好立地に誕生した洗練の什器付きオフィス

【セットアップ 宝町駅徒歩3分】好立地に誕生した洗練の什器付きオフィス

エリア
中央区京橋
アクセス
宝町駅徒歩3分,京橋駅徒歩4分,日本橋駅徒歩7分,東京駅徒歩8分
坪数
44~54坪
坪単価
34,000~38,000円 / 坪
推奨人数
11~30人

ハイッテの居抜きオフィス移転なら、
移転費用最大0円。期間短縮。
SDGsに貢献にできる。

オフィス・事務所の居抜き退去・入居ができる検索・掲載サービスです。
居抜き退去で原状回復費用を、居抜き入居で内装工事費用を大幅に削減!
採用戦略や事業運営に応じた、最適な移転提案でスタートアップ・ベンチャー企業の成長をサポートします。

お役立ち資料

解約通知書テンプレートを無料ダウンロード

解約通知書テンプレートを無料ダウンロード

居抜きオフィス移転完全マニュアル(ガイド)

居抜きオフィス移転完全マニュアル(ガイド)

5分でわかる原状回復!退去費用0円にする居抜きの魅力(ガイド)

5分でわかる原状回復!退去費用0円にする居抜きの魅力(ガイド)

オフィスプランニングシート【内見・内覧にも使える】

オフィスプランニングシート【内見・内覧にも使える】

オフィス移転の工数を1/3削減!レイアウトを考えるポイント(ガイド)

オフィス移転の工数を1/3削減!レイアウトを考えるポイント(ガイド)

オフィス・事務所移転を進めるためのスケジュールガイドを無料ダウンロード

オフィス・事務所移転を進めるためのスケジュールガイドを無料ダウンロード

本当にあった!居抜きオフィス移転トラブル事例5選(ガイド)

本当にあった!居抜きオフィス移転トラブル事例5選(ガイド)

居抜きオフィス移転チェックリスト

居抜きオフィス移転チェックリスト

面倒な物件探しは、まるっとおまかせ。非公開物件も多数 おまかせ問い合わせはコチラ
お問い合わせ