居抜きオフィス物件検索・掲載サイト【ハイッテ】 > 居抜きオフィス・セットアップオフィスを探す > 【セットアップ 日本橋駅徒歩3分】開放感と都心の利便性を両立した高機能オフィス

【セットアップ 日本橋駅徒歩3分】開放感と都心の利便性を両立した高機能オフィス

更新日:2026.03.26 公開日:2025.07.03
宅地建物取引士 本田
宅地建物取引士 本田
東京都中央区日本橋は、多くの企業や金融機関、法律事務所が集まっています。ビジネス機会が豊富であり、東京駅も近くにあり、交通の要所となっています。様々な業種や分野が混在しているため、幅広いビジネス機会が広がります。近代的で高層のオフィスビルが多く、最新設備が整っており、景観も良好です。
お問い合わせ受付中

スタッフからのコメント

都心中心エリアの利便性と洗練されたワークスペースが共存する環境です。
細部までこだわり抜いた空間の詳細は以下をご覧ください。

このオフィスのおすすめポイント

  • 日本橋駅から徒歩3分の至近で複数路線が利用可能な好立地
  • ガラスパーティションで仕切られた会議室が設置済み
  • 開放的な屋外テラスでリフレッシュや軽作業が可能
  • 素材感のある壁面やライティングが施された受付スペースあり
  • 男女別トイレや給湯スペースなど水回り設備も充実

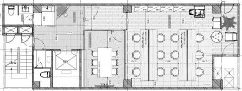
オフィスの特徴

落ち着いた色調のタイル壁と植栽が調和するエントランスが、来訪者に洗練された印象を与えます 。
内部はコンクリートの質感を活かしたスケルトン天井にダクトレール照明を配し、モダンで開放的な執務空間を実現しました 。

什器の配置がしやすい長方形の形状に加え、窓際のリラックススペースや、ウッドデッキ仕様のバルコニーなど、従業員の創造性を高める工夫が随所に凝らされています 。
周辺は飲食店や郵便局が揃う至便な環境でありながら、一歩室内に入れば集中できる静かな環境が整っています。機能美と快適性を追求した次世代のワークスタイルを支える拠点です。

こんな企業にオススメ

  • 内装構築の手間を省き早期に業務を開始したい企業
  • 従業員の満足度を高めるリフレッシュ空間を重視する企業
  • 複数駅が利用でき都内各所への移動が多い企業

当オフィスは、日々の快適な業務遂行を支える設備と意匠性を兼ね備えています。
公開情報以外で気になる点などございましたらお気軽にお問い合わせください。
内見や、空室確認なども随時承っておりますのでお気軽にご相談ください。

営業担当者

本田 司

本田 司

Tsukasa Honda
セールス

宅地建物取引士

【大阪:第125679号】

オフィス詳細情報

物件番号 3282
エリア 東京都中央区日本橋
アクセス 日本橋駅徒歩3分,茅場町駅徒歩6分
坪数 18~28坪
坪単価 25,000~29,000円 / 坪
月額賃料 600,000~690,000円
推奨人数 11~30人
オフィスタイプ
築年月 1993年4月
階数 4F
周辺施設 日本国道路元標
コレド室町
日本橋室町三井タワー
こだわり条件

募集条件

敷金 5ヶ月
礼金 0ヶ月
保証金 0ヶ月
償却 0ヶ月
更新料 0ヶ月
保証会社 必須(保証会社指定あり)
入居可能時期 2026年6月
契約期間 2年

ショート動画

スタッフからのコメント

都心中心エリアの利便性と洗練されたワークスペースが共存する環境です。
細部までこだわり抜いた空間の詳細は以下をご覧ください。

このオフィスのおすすめポイント

  • 日本橋駅から徒歩3分の至近で複数路線が利用可能な好立地
  • ガラスパーティションで仕切られた会議室が設置済み
  • 開放的な屋外テラスでリフレッシュや軽作業が可能
  • 素材感のある壁面やライティングが施された受付スペースあり
  • 男女別トイレや給湯スペースなど水回り設備も充実

オフィスの特徴

落ち着いた色調のタイル壁と植栽が調和するエントランスが、来訪者に洗練された印象を与えます 。
内部はコンクリートの質感を活かしたスケルトン天井にダクトレール照明を配し、モダンで開放的な執務空間を実現しました 。

什器の配置がしやすい長方形の形状に加え、窓際のリラックススペースや、ウッドデッキ仕様のバルコニーなど、従業員の創造性を高める工夫が随所に凝らされています 。
周辺は飲食店や郵便局が揃う至便な環境でありながら、一歩室内に入れば集中できる静かな環境が整っています。機能美と快適性を追求した次世代のワークスタイルを支える拠点です。

こんな企業にオススメ

  • 内装構築の手間を省き早期に業務を開始したい企業
  • 従業員の満足度を高めるリフレッシュ空間を重視する企業
  • 複数駅が利用でき都内各所への移動が多い企業

当オフィスは、日々の快適な業務遂行を支える設備と意匠性を兼ね備えています。
公開情報以外で気になる点などございましたらお気軽にお問い合わせください。
内見や、空室確認なども随時承っておりますのでお気軽にご相談ください。

営業担当者

本田 司

本田 司

Tsukasa Honda
セールス

宅地建物取引士

【大阪:第125679号】

当オフィスの設備

  • デザイナーズオフィス
  • フォンブース
  • ファミレス席
  • リノベーションオフィス
  • 駐車場付き
  • 駐輪場あり
  • 築浅
  • 男女別トイレ
  • 会議室あり
  • 耐震
  • バルコニーorテラスor屋上あり
  • スケルトン天井
  • ワンフロア
  • 一棟貸し
  • セントラル空調
  • OAフロア
  • 天井が高い
  • 個別空調
  • 貸会議室あり
  • ラウンジ

当オフィスの周辺環境

このオフィス物件へのお問い合わせ

このサイトはreCAPTCHAによって保護されており、Googleのプライバシーポリシー利用規約が適用されます。

お電話でのお問い合わせはこちら

0120-19-1925 受付時間:10:00~18:00

同じ坪数&エリアの物件

お問い合せ受付中
【セットアップ 東日本橋駅徒歩1分】什器付で即入居可能なリノベオフィス

【セットアップ 東日本橋駅徒歩1分】什器付で即入居可能なリノベオフィス

エリア
中央区東日本橋
アクセス
東日本橋駅徒歩2分,馬喰町駅徒歩3分,馬喰横山駅徒歩5分,浅草橋駅徒歩7分
坪数
21~31坪
坪単価
25,000~29,000円 / 坪
推奨人数
11~30人
お問い合せ受付中
【セットアップ 馬喰町駅徒歩3分】採光良好な什器付オフィス

【セットアップ 馬喰町駅徒歩3分】採光良好な什器付オフィス

エリア
中央区東日本橋
アクセス
東日本橋駅徒歩2分,馬喰町駅徒歩3分,馬喰横山駅徒歩5分,浅草橋駅徒歩7分
坪数
21~31坪
坪単価
25,000~29,000円 / 坪
推奨人数
11~30人
お問い合せ受付中
【セットアップ 馬喰横山駅徒歩5分】最上階・プロジェクター付オフィス

【セットアップ 馬喰横山駅徒歩5分】最上階・プロジェクター付オフィス

エリア
中央区東日本橋
アクセス
東日本橋駅徒歩1分,馬喰町駅徒歩3分,馬喰横山駅徒歩2分,浅草橋駅徒歩8分
坪数
21~31坪
坪単価
23,000~27,000円 / 坪
推奨人数
11~30人
お問い合せ受付中
什器付きフルセットアップ!自然光あふれる快適なオフィス空間

什器付きフルセットアップ!自然光あふれる快適なオフィス空間

エリア
中央区日本橋小網町
アクセス
水天宮前駅徒歩5分,人形町駅徒歩5分,茅場町駅徒歩5分
坪数
23~33坪
坪単価
25,000~29,000円 / 坪
推奨人数
11~30人
お問い合せ受付中
【セットアップ 宝町駅徒歩4分】家具付きラウンジと会議室を備えたリニューアル済みオフィス

【セットアップ 宝町駅徒歩4分】家具付きラウンジと会議室を備えたリニューアル済みオフィス

エリア
中央区新富
アクセス
宝町駅徒歩4分,新富町駅徒歩4分,八丁堀駅徒歩7分,銀座一丁目駅徒歩7分,銀座駅徒歩10分
坪数
26~36坪
坪単価
24,000~28,000円 / 坪
推奨人数
11~30人
お問い合せ受付中
【セットアップ 市ヶ谷駅4分】会議室完備の洗練された内装造作付きオフィス

【セットアップ 市ヶ谷駅4分】会議室完備の洗練された内装造作付きオフィス

エリア
千代田区九段南
アクセス
市ヶ谷駅徒歩4分,九段下駅徒歩10分
坪数
22~32坪
坪単価
25,000~29,000円 / 坪
推奨人数
11~30人

ハイッテの居抜きオフィス移転なら、
移転費用最大0円。期間短縮。
SDGsに貢献にできる。

オフィス・事務所の居抜き退去・入居ができる検索・掲載サービスです。
居抜き退去で原状回復費用を、居抜き入居で内装工事費用を大幅に削減!
採用戦略や事業運営に応じた、最適な移転提案でスタートアップ・ベンチャー企業の成長をサポートします。

お役立ち資料

本当にあった!居抜きオフィス移転トラブル事例5選(ガイド)

本当にあった!居抜きオフィス移転トラブル事例5選(ガイド)

解約通知書テンプレートを無料ダウンロード

解約通知書テンプレートを無料ダウンロード

5分でわかる原状回復!退去費用0円にする居抜きの魅力(ガイド)

5分でわかる原状回復!退去費用0円にする居抜きの魅力(ガイド)

オフィス・事務所移転を進めるためのスケジュールガイドを無料ダウンロード

オフィス・事務所移転を進めるためのスケジュールガイドを無料ダウンロード

オフィスプランニングシート【内見・内覧にも使える】

オフィスプランニングシート【内見・内覧にも使える】

オフィス移転の工数を1/3削減!レイアウトを考えるポイント(ガイド)

オフィス移転の工数を1/3削減!レイアウトを考えるポイント(ガイド)

居抜きオフィス移転完全マニュアル(ガイド)

居抜きオフィス移転完全マニュアル(ガイド)

居抜きオフィス移転チェックリスト

居抜きオフィス移転チェックリスト

面倒な物件探しは、まるっとおまかせ。非公開物件も多数 おまかせ問い合わせはコチラ
お問い合わせ