居抜きオフィス物件検索・掲載サイト【ハイッテ】 > 居抜きオフィス・セットアップオフィスを探す > 【居抜き 八丁堀駅徒歩2分】敷金0&会議室完備の築浅オフィス

【居抜き 八丁堀駅徒歩2分】敷金0&会議室完備の築浅オフィス

更新日:2026.02.19 公開日:2025.11.27
宅地建物取引士 本田
宅地建物取引士 本田
東京都中央区八丁堀は、多くの大手企業や金融機関、法律事務所などがオフィスを構えています。一帯に高級なオフィスビルが多く、最新の設備やセキュリティが整っており、プロフェッショナルなオフィス環境が提供されています。
居抜き入居募集中

スタッフからのコメント

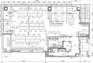
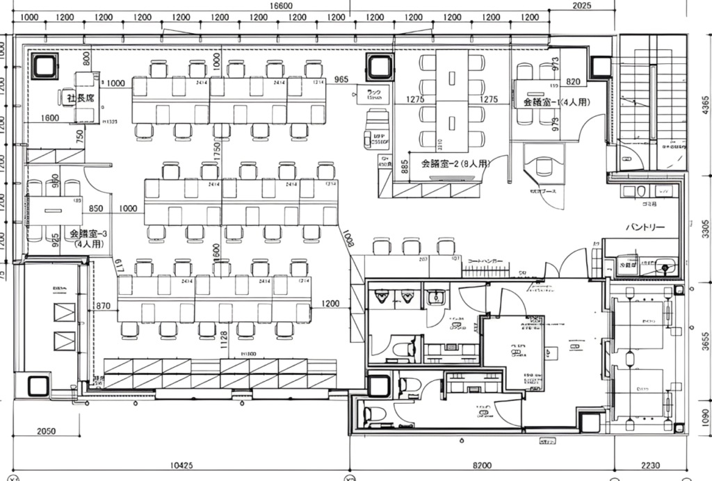
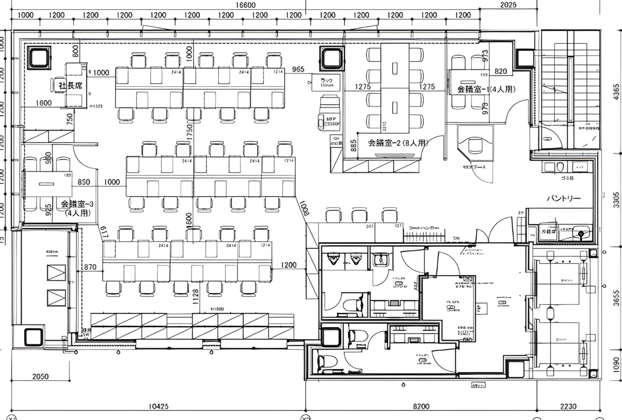
八丁堀駅徒歩2分の好立地に、2022年竣工の築浅オフィスが登場しました。二面採光による明るく開放的な空間と、複数の会議室を備えた居抜き区画です。
保証会社利用で敷金ゼロという好条件も魅力。充実した共用設備と上質な内装が、企業の成長をサポートします。詳細は以下をご覧ください。

このオフィスのおすすめポイント

  • 八丁堀駅徒歩2分、茅場町駅徒歩3分の好アクセス
  • 保証会社利用で敷金ゼロの好条件
  • 複数の会議室完備で来客対応も安心
  • 2022年竣工の築浅ビルで快適なオフィス環境
  • 二面採光による開放的で明るいワークスペース
  • 屋上テラス・喫煙スペース完備でリフレッシュ可能
  • 木製ブラインド採用の上質な内装デザイン
  • パントリー設備で従業員の利便性向上
  • バルコニー・換気窓による自然換気機能
  • 非接触設備採用で衛生面も安心

オフィスの特徴

当オフィスは、2022年に竣工した築浅ビルに位置し、モダンで洗練された外観が来訪者に好印象を与えます。1階エントランスはアロマが香る上質な空間となっており、企業イメージの向上に貢献します。
執務スペースは二面採光による豊富な自然光が特徴で、明るく開放的な環境で業務に集中できます。木製ブラインドを採用した内装は落ち着きと高級感を演出し、来客時にも自信を持ってご案内いただけます。
複数の会議室は規模や用途に応じて使い分けが可能で、日常のミーティングから重要な商談まで幅広く対応できます。パントリー設備も完備されており、従業員の休憩時間も快適にお過ごしいただけます。
共用部には開放的なウッド調の屋上テラスがあり、Wi-Fi完備の喫煙スペースも設置されています。
八丁堀・茅場町・日本橋・東京駅など複数路線が利用可能な交通利便性の高さも、ビジネスの機動力を高める大きな魅力です。

こんな企業にオススメ

  • 複数路線を活用して営業活動を効率化したい企業
  • 来客対応用の会議室を複数確保したい企業
  • 築浅ビルで企業イメージを向上させたい企業
  • 初期費用を抑えて移転を実現したい企業
  • 居抜き物件で速やかに業務を開始したい企業
  • 自然光を取り入れた明るい環境で働きたい企業
  • 従業員のリフレッシュ環境を重視する企業
  • 上質な内装で取引先への印象を高めたい企業
  • 衛生面に配慮した最新設備を求める企業
  • 東京駅・日本橋エリアへのアクセスを重視する企業

本物件は、八丁堀駅から徒歩2分、茅場町駅から徒歩3分という抜群の交通利便性を誇る築浅オフィスです。
二面採光の明るい執務スペースに加え、複数の会議室やパントリー設備など、業務効率を高める環境が整っています。居抜き物件のため内装工事の手間やコストを抑えられ、保証会社利用で敷金ゼロという好条件も大きな魅力です。1階エントランスのアロマが香る上質な空間や、木製ブラインドを採用した落ち着きのある内装は、来訪されるお客様にも好印象を与えます。
屋上にはWi-Fi完備のウッド調テラスがあり、従業員のリフレッシュにも最適です。
日本橋・東京駅エリアへのアクセスも良好で、ビジネスの拠点として理想的な立地といえます。
公開情報以外で気になる点などございましたらお気軽にお問い合わせください。内見や、空室確認なども随時承っておりますのでお気軽にご相談ください。

営業担当者

本田 司

本田 司

Tsukasa Honda
セールス

宅地建物取引士

【大阪:第125679号】

オフィス詳細情報

物件番号 3201
エリア 東京都中央区八丁堀
アクセス 八丁堀駅徒歩2分,茅場町駅徒歩3分
坪数 59~69坪
坪単価 24,000~28,000円 / 坪
月額賃料 1,560,000~1,800,000円
推奨人数 31~50人
オフィスタイプ
築年月 2022年8月
階数 2F
周辺施設 S-GATE八丁堀
KITTE
東京駅
こだわり条件

募集条件

敷金 相談
礼金 相談
保証金 相談
償却 相談
更新料 相談
保証会社 必須
入居可能時期 2026年3月
契約期間 相談

ショート動画

スタッフからのコメント

八丁堀駅徒歩2分の好立地に、2022年竣工の築浅オフィスが登場しました。二面採光による明るく開放的な空間と、複数の会議室を備えた居抜き区画です。
保証会社利用で敷金ゼロという好条件も魅力。充実した共用設備と上質な内装が、企業の成長をサポートします。詳細は以下をご覧ください。

このオフィスのおすすめポイント

  • 八丁堀駅徒歩2分、茅場町駅徒歩3分の好アクセス
  • 保証会社利用で敷金ゼロの好条件
  • 複数の会議室完備で来客対応も安心
  • 2022年竣工の築浅ビルで快適なオフィス環境
  • 二面採光による開放的で明るいワークスペース
  • 屋上テラス・喫煙スペース完備でリフレッシュ可能
  • 木製ブラインド採用の上質な内装デザイン
  • パントリー設備で従業員の利便性向上
  • バルコニー・換気窓による自然換気機能
  • 非接触設備採用で衛生面も安心

オフィスの特徴

当オフィスは、2022年に竣工した築浅ビルに位置し、モダンで洗練された外観が来訪者に好印象を与えます。1階エントランスはアロマが香る上質な空間となっており、企業イメージの向上に貢献します。
執務スペースは二面採光による豊富な自然光が特徴で、明るく開放的な環境で業務に集中できます。木製ブラインドを採用した内装は落ち着きと高級感を演出し、来客時にも自信を持ってご案内いただけます。
複数の会議室は規模や用途に応じて使い分けが可能で、日常のミーティングから重要な商談まで幅広く対応できます。パントリー設備も完備されており、従業員の休憩時間も快適にお過ごしいただけます。
共用部には開放的なウッド調の屋上テラスがあり、Wi-Fi完備の喫煙スペースも設置されています。
八丁堀・茅場町・日本橋・東京駅など複数路線が利用可能な交通利便性の高さも、ビジネスの機動力を高める大きな魅力です。

こんな企業にオススメ

  • 複数路線を活用して営業活動を効率化したい企業
  • 来客対応用の会議室を複数確保したい企業
  • 築浅ビルで企業イメージを向上させたい企業
  • 初期費用を抑えて移転を実現したい企業
  • 居抜き物件で速やかに業務を開始したい企業
  • 自然光を取り入れた明るい環境で働きたい企業
  • 従業員のリフレッシュ環境を重視する企業
  • 上質な内装で取引先への印象を高めたい企業
  • 衛生面に配慮した最新設備を求める企業
  • 東京駅・日本橋エリアへのアクセスを重視する企業

本物件は、八丁堀駅から徒歩2分、茅場町駅から徒歩3分という抜群の交通利便性を誇る築浅オフィスです。
二面採光の明るい執務スペースに加え、複数の会議室やパントリー設備など、業務効率を高める環境が整っています。居抜き物件のため内装工事の手間やコストを抑えられ、保証会社利用で敷金ゼロという好条件も大きな魅力です。1階エントランスのアロマが香る上質な空間や、木製ブラインドを採用した落ち着きのある内装は、来訪されるお客様にも好印象を与えます。
屋上にはWi-Fi完備のウッド調テラスがあり、従業員のリフレッシュにも最適です。
日本橋・東京駅エリアへのアクセスも良好で、ビジネスの拠点として理想的な立地といえます。
公開情報以外で気になる点などございましたらお気軽にお問い合わせください。内見や、空室確認なども随時承っておりますのでお気軽にご相談ください。

営業担当者

本田 司

本田 司

Tsukasa Honda
セールス

宅地建物取引士

【大阪:第125679号】

当オフィスの設備

  • デザイナーズオフィス
  • フォンブース
  • ファミレス席
  • リノベーションオフィス
  • 駐車場付き
  • 駐輪場あり
  • 築浅
  • 男女別トイレ
  • 会議室あり
  • 耐震
  • バルコニーorテラスor屋上あり
  • スケルトン天井
  • ワンフロア
  • 一棟貸し
  • セントラル空調
  • OAフロア
  • 天井が高い
  • 個別空調
  • 貸会議室あり
  • ラウンジ

当オフィスの周辺環境

このオフィス物件へのお問い合わせ

このサイトはreCAPTCHAによって保護されており、Googleのプライバシーポリシー利用規約が適用されます。

お電話でのお問い合わせはこちら

0120-19-1925 受付時間:10:00~18:00

同じ坪数&エリアの物件

お問い合せ受付中
【セットアップ 東日本橋駅徒歩4分】什器完備・テレカンブース付き

【セットアップ 東日本橋駅徒歩4分】什器完備・テレカンブース付き

エリア
中央区日本橋久松町
アクセス
東日本橋駅徒歩4分,馬喰横山駅徒歩4分,浜町駅徒歩4分,人形町駅徒歩5分,馬喰町駅徒歩8分
坪数
72~82坪
坪単価
23,000~27,000円 / 坪
推奨人数
31~50人
お問い合せ受付中
【セットアップ 京橋駅】フリーレント相談可!スケルトン天井&屋上テラス付き!

【セットアップ 京橋駅】フリーレント相談可!スケルトン天井&屋上テラス付き!

エリア
中央区
アクセス
八丁堀駅徒歩3分,宝町駅徒歩4分,新富町駅徒歩5分,京橋駅徒歩6分
坪数
62~72坪
坪単価
27,000~31,000円 / 坪
推奨人数
31~50人
居抜き入居募集中
【居抜き 笹塚駅3分】会議室2室&リフレッシュスペース完備デザインオフィス

【居抜き 笹塚駅3分】会議室2室&リフレッシュスペース完備デザインオフィス

エリア
渋谷区笹塚
アクセス
笹塚駅徒歩3分
坪数
79~89坪
坪単価
-
推奨人数
31~50人
居抜き入居募集中
【居抜き 渋谷駅】天井高2.55m!青山通り沿いの明るい居抜きオフィス

【居抜き 渋谷駅】天井高2.55m!青山通り沿いの明るい居抜きオフィス

エリア
渋谷区渋谷
アクセス
渋谷駅徒歩6分
坪数
101~111坪
坪単価
-
推奨人数
51~80人
居抜き入居募集中
【居抜き 神谷町駅徒歩1分】虎ノ門・新橋エリアの居抜き移転可オフィス

【居抜き 神谷町駅徒歩1分】虎ノ門・新橋エリアの居抜き移転可オフィス

エリア
港区虎ノ門
アクセス
神谷町駅徒歩1分,六本木一丁目駅徒歩8分,虎ノ門ヒルズ駅徒歩8分
坪数
69~79坪
坪単価
22,000~26,000円 / 坪
推奨人数
お問い合せ受付中
【セットアップ 御成門駅】浜松町駅徒歩圏内!ラウンジ+会議室&WEBブース2室付きオフィス

【セットアップ 御成門駅】浜松町駅徒歩圏内!ラウンジ+会議室&WEBブース2室付きオフィス

エリア
港区芝公園
アクセス
御成門駅徒歩3分,大門駅徒歩6分,浜松町駅徒歩11分
坪数
68~78坪
坪単価
21,000~25,000円 / 坪
推奨人数
31~50人

ハイッテの居抜きオフィス移転なら、
移転費用最大0円。期間短縮。
SDGsに貢献にできる。

オフィス・事務所の居抜き退去・入居ができる検索・掲載サービスです。
居抜き退去で原状回復費用を、居抜き入居で内装工事費用を大幅に削減!
採用戦略や事業運営に応じた、最適な移転提案でスタートアップ・ベンチャー企業の成長をサポートします。

お役立ち資料

オフィス・事務所移転を進めるためのスケジュールガイドを無料ダウンロード

オフィス・事務所移転を進めるためのスケジュールガイドを無料ダウンロード

5分でわかる原状回復!退去費用0円にする居抜きの魅力(ガイド)

5分でわかる原状回復!退去費用0円にする居抜きの魅力(ガイド)

オフィスプランニングシート【内見・内覧にも使える】

オフィスプランニングシート【内見・内覧にも使える】

居抜きオフィス移転完全マニュアル(ガイド)

居抜きオフィス移転完全マニュアル(ガイド)

解約通知書テンプレートを無料ダウンロード

解約通知書テンプレートを無料ダウンロード

オフィス移転の工数を1/3削減!レイアウトを考えるポイント(ガイド)

オフィス移転の工数を1/3削減!レイアウトを考えるポイント(ガイド)

本当にあった!居抜きオフィス移転トラブル事例5選(ガイド)

本当にあった!居抜きオフィス移転トラブル事例5選(ガイド)

居抜きオフィス移転チェックリスト

居抜きオフィス移転チェックリスト