都心の主要路線が交差する絶好のロケーションに位置する当オフィスは、コンパクトながら機能性に優れた設計が特徴です。スタイリッシュな内装と効率的な動線設計により、少数精鋭チームの生産性を最大限に引き出す環境を実現しています。詳細は以下をご覧ください。
このオフィスのおすすめポイント
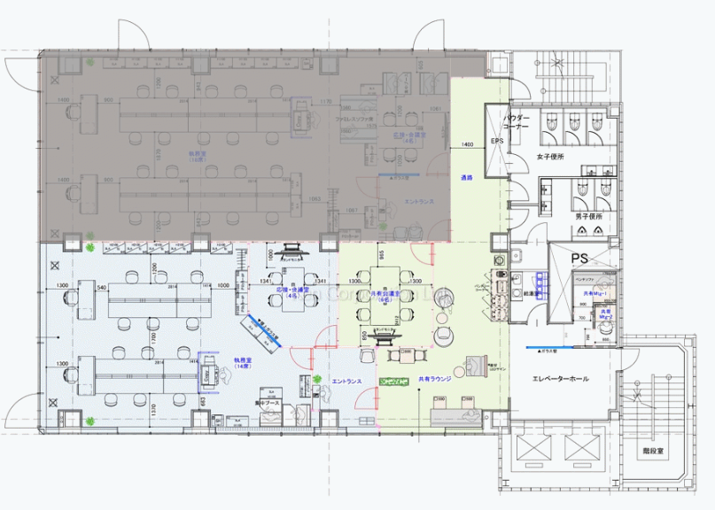
- 半蔵門駅徒歩1分・麹町駅徒歩6分の好立地
- ハーフセットアップオフィスで即入居可能
- 共有会議室(6人用)利用可能
- テレカンブース×2区画完備
- パントリースペース設置済み
- 保管テーブル4セット配備
- 執務室内の仕様について相談可能
- コンパクトで効率的な空間設計
- 周辺商業施設充実で快適な就業環境
- セキュアなビル管理体制
オフィスの特徴
このビルの特徴は、コンパクトながら洗練された空間デザインと機能的な設備配置にあります。エントランスエリアはモノトーンを基調とした落ち着いた雰囲気で、プロフェッショナルな印象を演出。執務スペースは効率性を重視したレイアウトとなっており、限られた空間を最大限に活用できる設計です。ハーフセットアップ仕様により、入居後すぐに業務を開始できる点も大きな魅力です。共有の会議室は6人規模の打ち合わせに対応し、2つのテレカンブースはプライバシーに配慮したオンラインミーティングを可能にします。パントリースペースは従業員の憩いの場として機能し、働きやすい環境づくりに貢献します。半蔵門駅から徒歩わずか1分という立地は、通勤の負担を大幅に軽減し、クライアントとの商談にも最適です。ビル1階にはコンビニエンスストアが入居しており、日常の利便性も確保されています。このような環境は、スタートアップから専門性の高いチームまで、幅広いビジネスニーズに応える理想的な執務空間といえます。
こんな企業にオススメ
- 少数精鋭で効率的な運営を目指す企業
- スピーディーな事業展開を重視する企業
- 初期投資を抑えて都心進出を検討する企業
- 駅近立地で採用競争力を高めたい企業
- オンラインミーティングが多い企業
- コンパクトで機能的なオフィスを求める企業
- プロジェクトベースで活動する専門企業
- 都心の利便性を活かしたビジネス展開を行う企業
- 従業員の働きやすさを重視する企業
- フレキシブルな働き方を推進する企業
当オフィスは、都心の一等地にありながらコンパクトで機能的な設計により、効率的なビジネス運営を可能にする理想的な空間です。半蔵門駅徒歩1分という圧倒的なアクセスの良さは、時間を有効活用したい企業にとって大きな価値となります。ハーフセットアップ仕様により初期投資を抑えながら、すぐに業務を開始できる環境が整っています。共有会議室とテレカンブースの組み合わせは、現代のハイブリッドワークに完全対応。執務エリアは効率的な動線設計により、少人数でも快適に働ける環境を実現しています。ビル1階のコンビニエンスストアをはじめ、周辺には多様な商業施設が揃い、ビジネスライフをサポートします。都心での新たな拠点開設や、スマートなオフィス運営を目指す企業にとって、最適な選択肢となるでしょう。公開情報以外で気になる点などございましたらお気軽にお問い合わせください。内見や、空室確認なども随時承っておりますのでお気軽にご相談ください。

