居抜きオフィス物件検索・掲載サイト【ハイッテ】 > 居抜きオフィス・セットアップオフィスを探す > 【セットアップ 小川町駅徒歩5分】屋上テラス付き&4路線利用可

【セットアップ 小川町駅徒歩5分】屋上テラス付き&4路線利用可

更新日:2026.02.13 公開日:2025.11.28
宅地建物取引士 本田
宅地建物取引士 本田
東京都千代田区神田錦町は、東京の中心的存在として、大手企業の本社やレンタルオフィスが集中しています。また、金融機関であるメガバンクも多かったことから、東京の中心でもあります。住友商事錦町ビルが有名です。
募集終了

スタッフからのコメント

神保町エリアに複数路線利用可能な造作付きオフィスが登場します。詳細は以下をご覧ください。

このオフィスのおすすめポイント

  • 小川町駅・新御茶ノ水駅徒歩5分の好立地
  • 2026年1月予定、造作付きで即入居可能
  • 原状回復義務なし(現状変更した場合等を除く)
  • 屋上テラス・ラウンジ・会議室2室完備
  • 更新料・礼金不要で初期コストを抑制

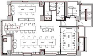
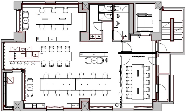
オフィスの特徴

都営新宿線・東京メトロ千代田線・半蔵門線・三田線の4路線が利用可能な神保町に位置し、2025年12月竣工予定の新築物件です。
木調を基調としたモダンな内装デザインで、開放的な空間が快適な執務環境を実現します。
ガラスパーティションにより視覚的な広がりと機能的なゾーニングを両立し、屋上のルーフトップテラスは夜間ライトアップされた洗練された空間として、社員の憩いの場やカジュアルなミーティングスペースに活用できます。
1階には共用ラウンジとバーカウンターを備え、他テナントとの交流や来客対応にも最適です。

こんな企業にオススメ

  • すぐに業務を開始したい成長企業
  • 複数路線利用でアクセス利便性を重視する企業
  • 共用施設を活用して社内交流を促進したい企業

当オフィスは、2026年1月に造作付きで完成予定のため、什器搬入のみで営業開始が可能です。
原状回復義務がない(現状変更した場合や設備等を除く)ため、退去時の費用負担もありません。更新料や礼金も不要で、長期的なコスト削減も実現します。
共用ラウンジや会議室2室は予約制で利用でき、自社専有面積を抑えながらも必要に応じてスペースを活用できます。
公開情報以外で気になる点などございましたらお気軽にお問い合わせください。内見や、空室確認なども随時承っておりますのでお気軽にご相談ください。

営業担当者

本田 司

本田 司

Tsukasa Honda
セールス

宅地建物取引士

【大阪:第125679号】

オフィス詳細情報

物件番号 3208
エリア 東京都千代田区神田錦町
アクセス 小川町駅徒歩6分,新御茶ノ水駅徒歩6分,神保町駅徒歩7分,神田駅徒歩12分
坪数 37~47坪
坪単価 31,000~35,000円 / 坪
月額賃料 1,340,000~1,500,000円
推奨人数 11~30人
オフィスタイプ
築年月 2025年12月
階数 7F
周辺施設 神田スクエア
神田ポートビル
テラススクエア
こだわり条件

募集条件

敷金 2ヶ月
礼金 0ヶ月
保証金 0ヶ月
償却 0ヶ月
更新料 0ヶ月
保証会社 必須(保証会社指定あり)
入居可能時期 即日
契約期間 2年
備考 ※原状回復義務なし(現状変更した場合や破損等を除く)
※クリーニング費用をご負担いただきます。(契約時)
※1階共用ラウンジあり(貸切利用は要予約)
※1階共用会議室2部屋あり(予約制)
※8階ルーフテラスあり

ショート動画

スタッフからのコメント

神保町エリアに複数路線利用可能な造作付きオフィスが登場します。詳細は以下をご覧ください。

このオフィスのおすすめポイント

  • 小川町駅・新御茶ノ水駅徒歩5分の好立地
  • 2026年1月予定、造作付きで即入居可能
  • 原状回復義務なし(現状変更した場合等を除く)
  • 屋上テラス・ラウンジ・会議室2室完備
  • 更新料・礼金不要で初期コストを抑制

オフィスの特徴

都営新宿線・東京メトロ千代田線・半蔵門線・三田線の4路線が利用可能な神保町に位置し、2025年12月竣工予定の新築物件です。
木調を基調としたモダンな内装デザインで、開放的な空間が快適な執務環境を実現します。
ガラスパーティションにより視覚的な広がりと機能的なゾーニングを両立し、屋上のルーフトップテラスは夜間ライトアップされた洗練された空間として、社員の憩いの場やカジュアルなミーティングスペースに活用できます。
1階には共用ラウンジとバーカウンターを備え、他テナントとの交流や来客対応にも最適です。

こんな企業にオススメ

  • すぐに業務を開始したい成長企業
  • 複数路線利用でアクセス利便性を重視する企業
  • 共用施設を活用して社内交流を促進したい企業

当オフィスは、2026年1月に造作付きで完成予定のため、什器搬入のみで営業開始が可能です。
原状回復義務がない(現状変更した場合や設備等を除く)ため、退去時の費用負担もありません。更新料や礼金も不要で、長期的なコスト削減も実現します。
共用ラウンジや会議室2室は予約制で利用でき、自社専有面積を抑えながらも必要に応じてスペースを活用できます。
公開情報以外で気になる点などございましたらお気軽にお問い合わせください。内見や、空室確認なども随時承っておりますのでお気軽にご相談ください。

営業担当者

本田 司

本田 司

Tsukasa Honda
セールス

宅地建物取引士

【大阪:第125679号】

当オフィスの設備

  • デザイナーズオフィス
  • フォンブース
  • ファミレス席
  • リノベーションオフィス
  • 駐車場付き
  • 駐輪場あり
  • 築浅
  • 男女別トイレ
  • 会議室あり
  • 耐震
  • バルコニーorテラスor屋上あり
  • スケルトン天井
  • ワンフロア
  • 一棟貸し
  • セントラル空調
  • OAフロア
  • 天井が高い
  • 個別空調
  • 貸会議室あり
  • ラウンジ

当オフィスの周辺環境

似ているオフィス物件のお問い合わせ

このサイトはreCAPTCHAによって保護されており、Googleのプライバシーポリシー利用規約が適用されます。

お電話でのお問い合わせはこちら

0120-19-1925 受付時間:10:00~18:00

同じ坪数&エリアの物件

お問い合せ受付中
【セットアップ 神田駅2分】フォンブース&会議室2室完備で洗練された内装

【セットアップ 神田駅2分】フォンブース&会議室2室完備で洗練された内装

エリア
千代田区神田司町
アクセス
淡路町駅徒歩2分,小川町駅徒歩2分,神田駅徒歩6分,新御茶ノ水駅徒歩6分,秋葉原駅徒歩10分,岩本町駅徒歩10分,御茶ノ水駅徒歩10分
坪数
51~61坪
坪単価
24,000~28,000円 / 坪
推奨人数
11~30人
お問い合せ受付中
【セットアップ 小川町駅徒歩6分】屋上テラスと共用会議室完備のデザインオフィス

【セットアップ 小川町駅徒歩6分】屋上テラスと共用会議室完備のデザインオフィス

エリア
千代田区神田錦町
アクセス
小川町駅徒歩6分,新御茶ノ水駅徒歩6分,神保町駅徒歩7分,神田駅徒歩12分
坪数
40~50坪
坪単価
35,000~39,000円 / 坪
推奨人数
11~30人
お問い合せ受付中
【セットアップ 小川町駅徒歩6分】共用会議室やルーフテラス完備のオフィス

【セットアップ 小川町駅徒歩6分】共用会議室やルーフテラス完備のオフィス

エリア
千代田区神田錦町
アクセス
小川町駅徒歩6分,新御茶ノ水駅徒歩6分,神保町駅徒歩7分,神田駅徒歩12分
坪数
40~50坪
坪単価
35,000~39,000円 / 坪
推奨人数
11~30人
お問い合せ受付中
【セットアップ 半蔵門駅】最寄り駅徒歩1分!効率的な事業運営を支えるオフィス

【セットアップ 半蔵門駅】最寄り駅徒歩1分!効率的な事業運営を支えるオフィス

エリア
千代田区麹町
アクセス
半蔵門駅徒歩1分,麹町駅徒歩6分
坪数
40~50坪
坪単価
-
推奨人数
11~30人
お問い合せ受付中
【セットアップ 九段下駅徒歩8分】意匠性に優れたメゾネットオフィス

【セットアップ 九段下駅徒歩8分】意匠性に優れたメゾネットオフィス

エリア
千代田区九段南
アクセス
九段下駅徒歩8分,市ヶ谷駅徒歩7分
坪数
53~63坪
坪単価
28,000~32,000円 / 坪
推奨人数
11~30人
お問い合せ受付中
【セットアップ 永田町駅徒歩2分】上質な内装が企業の信頼を高める高品質オフィス

【セットアップ 永田町駅徒歩2分】上質な内装が企業の信頼を高める高品質オフィス

エリア
千代田区平河町
アクセス
永田町駅徒歩2分,半蔵門駅徒歩7分,赤坂見附駅徒歩7分
坪数
54~64坪
坪単価
22,000~26,000円 / 坪
推奨人数
11~30人

ハイッテの居抜きオフィス移転なら、
移転費用最大0円。期間短縮。
SDGsに貢献にできる。

オフィス・事務所の居抜き退去・入居ができる検索・掲載サービスです。
居抜き退去で原状回復費用を、居抜き入居で内装工事費用を大幅に削減!
採用戦略や事業運営に応じた、最適な移転提案でスタートアップ・ベンチャー企業の成長をサポートします。

お役立ち資料

オフィス・事務所移転を進めるためのスケジュールガイドを無料ダウンロード

オフィス・事務所移転を進めるためのスケジュールガイドを無料ダウンロード

オフィス移転の工数を1/3削減!レイアウトを考えるポイント(ガイド)

オフィス移転の工数を1/3削減!レイアウトを考えるポイント(ガイド)

居抜きオフィス移転チェックリスト

居抜きオフィス移転チェックリスト

本当にあった!居抜きオフィス移転トラブル事例5選(ガイド)

本当にあった!居抜きオフィス移転トラブル事例5選(ガイド)

居抜きオフィス移転完全マニュアル(ガイド)

居抜きオフィス移転完全マニュアル(ガイド)

5分でわかる原状回復!退去費用0円にする居抜きの魅力(ガイド)

5分でわかる原状回復!退去費用0円にする居抜きの魅力(ガイド)

オフィスプランニングシート【内見・内覧にも使える】

オフィスプランニングシート【内見・内覧にも使える】

解約通知書テンプレートを無料ダウンロード

解約通知書テンプレートを無料ダウンロード

面倒な物件探しは、まるっとおまかせ。非公開物件も多数 おまかせ問い合わせはコチラ
お問い合わせ