居抜きオフィス物件検索・掲載サイト【ハイッテ】 > 居抜きオフィス・セットアップオフィスを探す > 【セットアップ 神保町駅徒歩4分】最上階&会議室付き好立地物件

【セットアップ 神保町駅徒歩4分】最上階&会議室付き好立地物件

更新日:2026.01.16 公開日:2025.11.25
宅地建物取引士 本田
宅地建物取引士 本田
東京都千代田区神田神保町は、千代田区の中心に位置し、大手企業や教育機関が集まるため、ビジネスネットワークの機会が増え、クライアントや取引先とのアクセスが良好です。また、オフィスの賃料も比較的リーズナブルなことでも有名です。
募集終了

スタッフからのコメント

神保町駅徒歩4分の好立地に位置する当オフィスは、最上階ならではの開放感と洗練されたデザインが魅力のセットアップオフィスです。
会議室完備で移転後すぐに業務を開始でき、複数路線利用可能な交通利便性も大きな強みとなっています。詳細は以下をご覧ください。

このオフィスのおすすめポイント

  • 神保町駅徒歩4分の好立地
  • 最上階ならではの開放感と眺望
  • 6名用会議室造作済みですぐに利用可能
  • 九段下駅・水道橋駅も徒歩圏内の3駅3路線利用可能
  • ホテルライクでエレガントなエントランス
  • リニューアル済みの美しい内装
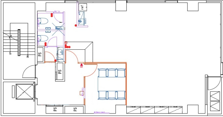
  • 男女別トイレ完備でプライバシーに配慮
  • 機械警備でセキュリティ面も安心
  • 採光豊かな明るいオフィス空間
  • 神保町エリアの充実した周辺環境

オフィスの特徴

当オフィスは、神保町駅から徒歩4分という抜群のアクセスを誇る最上階の物件です。外観はリニューアルにより現代的で洗練された印象を与え、来訪されるお客様に好印象を与えます。
エントランスはホテルライクでエレガントなデザインとなっており、企業のブランドイメージ向上に貢献します。
室内は明るく開放的な空間設計で、複数の窓から自然光がたっぷりと差し込み、快適な執務環境を実現しています。グレーを基調としたタイルカーペットとLED照明がモダンな雰囲気を演出します。
6名用の会議室が造作済みのため、移転後すぐに打ち合わせや商談に対応でき、初期投資を抑えられます。
神保町は出版社や書店が集まる文化的なエリアであり、飲食店やカフェも充実しています。

こんな企業にオススメ

  • 複数路線を活用した営業活動を行う企業
  • 来客対応を重視する企業
  • 即入居可能なオフィスを探している企業
  • 会議室付きのオフィスを求めている企業
  • ブランドイメージを大切にする成長企業
  • 少人数精鋭で事業を展開する企業
  • 交通アクセスを重視する企業
  • 内装工事の手間を省きたい企業
  • セキュリティ環境を重視する企業
  • 文化的なエリアで働きたい企業

本物件は、神保町駅徒歩4分という利便性の高い立地と、最上階ならではの開放感を兼ね備えたセットアップオフィスです。
リニューアル済みの洗練された外観とホテルライクなエントランスは、来訪されるお客様に優れた第一印象を与え、企業の信頼性向上に寄与します。
6名用の会議室が造作済みのため、移転後すぐに業務を開始でき、内装工事の手間やコストを大幅に削減できます。
神保町駅に加え、九段下駅や水道橋駅も徒歩圏内にあり、3駅3路線の利用が可能なため、従業員の通勤やお客様のご来訪にも便利です。神保町エリアは出版関連企業が多く集まる知的な街並みで、周辺には飲食店やカフェも充実しており、ビジネスランチや打ち合わせにも最適な環境が整っています。
公開情報以外で気になる点などございましたらお気軽にお問い合わせください。内見や、空室確認なども随時承っておりますのでお気軽にご相談ください。

営業担当者

古川 達也

古川 達也

Tatsuya Furukawa
セールス

宅地建物取引士
【東京都知事:第290485号】

オフィス詳細情報

物件番号 3193
エリア 東京都千代田区神田神保町
アクセス 神保町駅徒歩4分,九段下駅徒歩7分,水道橋駅徒歩7分
坪数 83~93坪
坪単価 19,000~23,000円 / 坪
月額賃料 1,680,000~2,020,000円
推奨人数 31~50人
オフィスタイプ
築年月 1989年6月
階数 5F
周辺施設 神田ポートビル
東京ドームシティ
FUNDES Jimbocho
神田神保町古書街
こだわり条件

募集条件

敷金 6ヶ月
礼金 0ヶ月
保証金 0ヶ月
償却 0ヶ月
更新料 0ヶ月
保証会社 必須
入居可能時期 2026年1月
契約期間 2年

ショート動画

スタッフからのコメント

神保町駅徒歩4分の好立地に位置する当オフィスは、最上階ならではの開放感と洗練されたデザインが魅力のセットアップオフィスです。
会議室完備で移転後すぐに業務を開始でき、複数路線利用可能な交通利便性も大きな強みとなっています。詳細は以下をご覧ください。

このオフィスのおすすめポイント

  • 神保町駅徒歩4分の好立地
  • 最上階ならではの開放感と眺望
  • 6名用会議室造作済みですぐに利用可能
  • 九段下駅・水道橋駅も徒歩圏内の3駅3路線利用可能
  • ホテルライクでエレガントなエントランス
  • リニューアル済みの美しい内装
  • 男女別トイレ完備でプライバシーに配慮
  • 機械警備でセキュリティ面も安心
  • 採光豊かな明るいオフィス空間
  • 神保町エリアの充実した周辺環境

オフィスの特徴

当オフィスは、神保町駅から徒歩4分という抜群のアクセスを誇る最上階の物件です。外観はリニューアルにより現代的で洗練された印象を与え、来訪されるお客様に好印象を与えます。
エントランスはホテルライクでエレガントなデザインとなっており、企業のブランドイメージ向上に貢献します。
室内は明るく開放的な空間設計で、複数の窓から自然光がたっぷりと差し込み、快適な執務環境を実現しています。グレーを基調としたタイルカーペットとLED照明がモダンな雰囲気を演出します。
6名用の会議室が造作済みのため、移転後すぐに打ち合わせや商談に対応でき、初期投資を抑えられます。
神保町は出版社や書店が集まる文化的なエリアであり、飲食店やカフェも充実しています。

こんな企業にオススメ

  • 複数路線を活用した営業活動を行う企業
  • 来客対応を重視する企業
  • 即入居可能なオフィスを探している企業
  • 会議室付きのオフィスを求めている企業
  • ブランドイメージを大切にする成長企業
  • 少人数精鋭で事業を展開する企業
  • 交通アクセスを重視する企業
  • 内装工事の手間を省きたい企業
  • セキュリティ環境を重視する企業
  • 文化的なエリアで働きたい企業

本物件は、神保町駅徒歩4分という利便性の高い立地と、最上階ならではの開放感を兼ね備えたセットアップオフィスです。
リニューアル済みの洗練された外観とホテルライクなエントランスは、来訪されるお客様に優れた第一印象を与え、企業の信頼性向上に寄与します。
6名用の会議室が造作済みのため、移転後すぐに業務を開始でき、内装工事の手間やコストを大幅に削減できます。
神保町駅に加え、九段下駅や水道橋駅も徒歩圏内にあり、3駅3路線の利用が可能なため、従業員の通勤やお客様のご来訪にも便利です。神保町エリアは出版関連企業が多く集まる知的な街並みで、周辺には飲食店やカフェも充実しており、ビジネスランチや打ち合わせにも最適な環境が整っています。
公開情報以外で気になる点などございましたらお気軽にお問い合わせください。内見や、空室確認なども随時承っておりますのでお気軽にご相談ください。

営業担当者

古川 達也

古川 達也

Tatsuya Furukawa
セールス

宅地建物取引士
【東京都知事:第290485号】

当オフィスの設備

  • デザイナーズオフィス
  • フォンブース
  • ファミレス席
  • リノベーションオフィス
  • 駐車場付き
  • 駐輪場あり
  • 築浅
  • 男女別トイレ
  • 会議室あり
  • 耐震
  • バルコニーorテラスor屋上あり
  • スケルトン天井
  • ワンフロア
  • 一棟貸し
  • セントラル空調
  • OAフロア
  • 天井が高い
  • 個別空調
  • 貸会議室あり
  • ラウンジ

当オフィスの周辺環境

似ているオフィス物件のお問い合わせ

このサイトはreCAPTCHAによって保護されており、Googleのプライバシーポリシー利用規約が適用されます。

お電話でのお問い合わせはこちら

0120-19-1925 受付時間:10:00~18:00

同じ坪数&エリアの物件

ハイッテおすすめ
【居抜き 渋谷駅】天井高2.55m!青山通り沿いの明るい居抜きオフィス

【居抜き 渋谷駅】天井高2.55m!青山通り沿いの明るい居抜きオフィス

エリア
渋谷区渋谷
アクセス
渋谷駅徒歩4分
坪数
101~111坪
坪単価
-
推奨人数
51~80人
お問い合せ受付中
【セットアップ 岩本町駅徒歩3分】駅近の好立地と洗練された充実の設備を完備したオフィス

【セットアップ 岩本町駅徒歩3分】駅近の好立地と洗練された充実の設備を完備したオフィス

エリア
千代田区神田東松下町
アクセス
岩本町駅徒歩3分,神田駅徒歩5分,新日本橋駅徒歩7分,小伝馬駅徒歩9分
坪数
48~58坪
坪単価
-
推奨人数
11~30人
お問い合せ受付中
【セットアップ 岩本町駅徒歩2分】初期費用を抑える家具付オフィス 5路線利用可能な都心のビジネス拠点

【セットアップ 岩本町駅徒歩2分】初期費用を抑える家具付オフィス 5路線利用可能な都心のビジネス拠点

エリア
千代田区神田岩本町
アクセス
岩本町駅徒歩2分,秋葉原駅徒歩4分,神田駅徒歩6分
坪数
19~29坪
坪単価
31,000~35,000円 / 坪
推奨人数
11~30人
お問い合せ受付中
【セットアップ 岩本町駅徒歩3分】千代田区の利便性を享受する会議室付きデザインオフィス

【セットアップ 岩本町駅徒歩3分】千代田区の利便性を享受する会議室付きデザインオフィス

エリア
千代田区神田岩本町
アクセス
岩本町駅徒歩3分,秋葉原駅徒歩5分,神田駅徒歩7分
坪数
26~36坪
坪単価
21,000~25,000円 / 坪
推奨人数
11~30人
お問い合せ受付中
【セットアップ 岩本町駅徒歩3分】会議室完備のリニューアルオフィスで快適な環境を実現

【セットアップ 岩本町駅徒歩3分】会議室完備のリニューアルオフィスで快適な環境を実現

エリア
千代田区神田岩本町
アクセス
岩本町駅徒歩3分,秋葉原駅徒歩7分,神田駅徒歩7分
坪数
26~36坪
坪単価
21,000~25,000円 / 坪
推奨人数
11~30人
お問い合せ受付中
【セットアップ 淡路町駅徒歩2分】上層階の開放的な眺望と充実した周辺環境が魅力のオフィス

【セットアップ 淡路町駅徒歩2分】上層階の開放的な眺望と充実した周辺環境が魅力のオフィス

エリア
千代田区神田淡路町
アクセス
新御茶ノ水駅徒歩2分,御茶ノ水駅徒歩3分,淡路町駅徒歩2分,秋葉原駅徒歩6分,小川町駅徒歩2分,神田駅徒歩5分
坪数
25~35坪
坪単価
48,000~52,000円 / 坪
推奨人数
11~30人

ハイッテの居抜きオフィス移転なら、
移転費用最大0円。期間短縮。
SDGsに貢献にできる。

オフィス・事務所の居抜き退去・入居ができる検索・掲載サービスです。
居抜き退去で原状回復費用を、居抜き入居で内装工事費用を大幅に削減!
採用戦略や事業運営に応じた、最適な移転提案でスタートアップ・ベンチャー企業の成長をサポートします。

お役立ち資料

オフィス・事務所移転を進めるためのスケジュールガイドを無料ダウンロード

オフィス・事務所移転を進めるためのスケジュールガイドを無料ダウンロード

居抜きオフィス移転完全マニュアル(ガイド)

居抜きオフィス移転完全マニュアル(ガイド)

5分でわかる原状回復!退去費用0円にする居抜きの魅力(ガイド)

5分でわかる原状回復!退去費用0円にする居抜きの魅力(ガイド)

解約通知書テンプレートを無料ダウンロード

解約通知書テンプレートを無料ダウンロード

オフィス移転の工数を1/3削減!レイアウトを考えるポイント(ガイド)

オフィス移転の工数を1/3削減!レイアウトを考えるポイント(ガイド)

オフィスプランニングシート【内見・内覧にも使える】

オフィスプランニングシート【内見・内覧にも使える】

居抜きオフィス移転チェックリスト

居抜きオフィス移転チェックリスト

本当にあった!居抜きオフィス移転トラブル事例5選(ガイド)

本当にあった!居抜きオフィス移転トラブル事例5選(ガイド)

面倒な物件探しは、まるっとおまかせ。非公開物件も多数 おまかせ問い合わせはコチラ
お問い合わせ