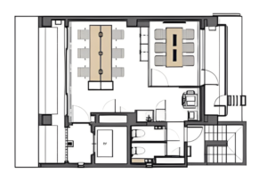
プロフェッショナルな企業活動を支える、機能美を追求した先進的オフィス空間がここにあります。2025年7月のリニューアル完了により、最新のビジネストレンドに対応した環境が実現します。洗練されたヘリンボーン柄の床材が織りなす上質な空間は、訪れる人々に強い印象を与えることでしょう。効率性と快適性を両立させたレイアウト設計により、生産性の向上が期待できます。ビジネスの成長を加速させる充実した設備群として、モニター完備の会議室、集中作業に適したワークスペース、そして息抜きができるラウンジエリアを配置。さらに、セキュリティ面でも万全の体制を整え、安心して業務に専念できる環境を提供します。都心の利便性と静寂な執務環境の両立により、あらゆるビジネスシーンで最高のパフォーマンスを発揮できる、まさに理想的なオフィスです。詳細は以下をご覧ください。
このオフィスのおすすめポイント
- 都心の主要駅から徒歩圏内の優れた立地条件
- リニューアル済みの先進的なワークスペース
- 初期費用を大幅に削減できるフリーレント対応
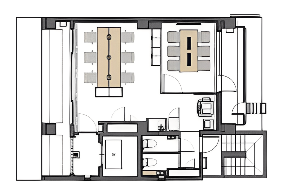
- ヘリンボーン柄フローリングによる高級感ある内装
- 大型モニター設置済みの実用的な会議室
- プライバシーに配慮したガラスブロック壁面
- 快適な温水洗浄便座付きトイレ完備
- 機能的な給湯設備で快適なオフィスライフ
- 充実したセキュリティシステムで安全な環境
- 柔軟なレイアウト変更が可能な設計
オフィスの特徴
当オフィスの特筆すべき点は、ヘリンボーン柄のフローリングが創り出す洗練された空間美です。この独特のパターンは、単なる装飾ではなく、空間に動きと深みを与え、創造的な思考を促進する効果があります。ガラスブロックを採用した壁面は、プライバシーを保ちながら柔らかな光を取り入れ、開放感と落ち着きを両立させています。大型モニターを備えた会議室は、プレゼンテーションやビデオ会議にも対応し、現代のビジネスコミュニケーションを完全にサポート。執務エリアは、集中とコラボレーションのバランスを考慮した設計で、チームの生産性を最大化します。また、リニューアルにより最新の設備が導入され、快適性と機能性が大幅に向上。立地面でも複数路線が利用可能で、クライアントとの商談や社員の通勤にも便利な環境が整っています。
こんな企業にオススメ
- 高級感のあるオフィスでブランド価値を高めたい企業
- クリエイティブな発想を重視する企業
- 頻繁にプレゼンテーションを行う企業
- ビデオ会議を多用するグローバル企業
- 社員のモチベーション向上を図りたい企業
- セキュアな環境を必要とする企業
- 柔軟な働き方を推進している企業
- 初期投資を抑えて事業展開したい企業
- アクセスの良さを最優先する企業
- 長期的な成長を見据えている企業
本物件は、ビジネスの成功に必要なすべての要素を備えた、次世代型のオフィス空間です。ヘリンボーン柄のフローリングとガラスブロックが織りなす独特の雰囲気は、企業の個性とプロフェッショナリズムを同時に表現します。リニューアルによって生まれ変わった最新の設備環境は、働く人々の創造性と生産性を最大限に引き出します。特に、大型モニター完備の会議室は、効果的なコミュニケーションとプレゼンテーションを可能にし、ビジネスの成功を強力にサポートします。フリーレント対応により初期費用を抑えられるため、資金を事業成長に集中投資できるのも大きなメリットです。都心の利便性と落ち着いた執務環境の両立により、社員の満足度向上と優秀な人材の確保にも貢献するでしょう。公開情報以外で気になる点などございましたらお気軽にお問い合わせください。内見や、空室確認なども随時承っておりますのでお気軽にご相談ください。

