居抜きオフィス物件検索・掲載サイト【ハイッテ】 > 居抜きオフィス・セットアップオフィスを探す > 【居抜き 神田駅徒歩1分】初期費用を大幅カット!ガラス張りの会議室を備えた居抜きオフィス

【居抜き 神田駅徒歩1分】初期費用を大幅カット!ガラス張りの会議室を備えた居抜きオフィス

更新日:2026.04.21 公開日:2022.03.11
募集終了

スタッフからのコメント

銀座線「神田」駅より徒歩1分、JR線「神田」駅からも徒歩4分という抜群の利便性を誇るオフィスのご紹介です。
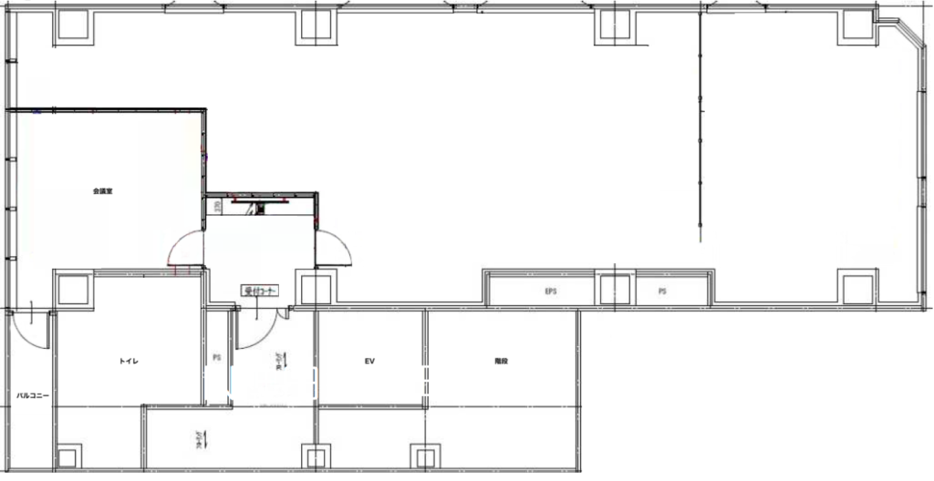
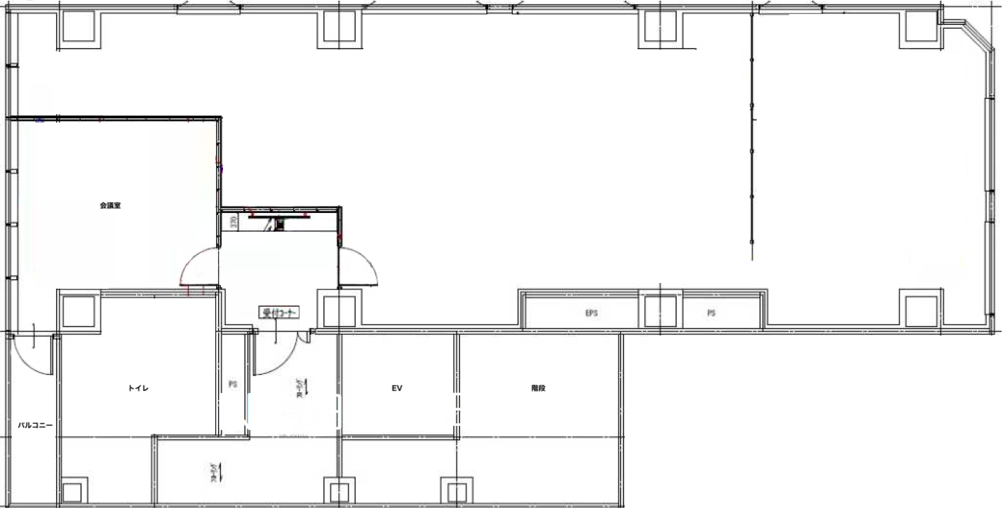
本物件は7階・約43坪の募集で、現況の内装や什器を引き継げる「居抜き」での引き渡しとなります 。
ガラスパーティションで仕切られた執務室と、ヘリンボーン床の会議室が完備されており、入居後スピーディーに業務を開始できるのが最大の魅力です。

水回りは専有部に男女別トイレが確保されているため、女性スタッフがいらっしゃる企業様でも安心してご利用いただけます 。

  • 物件のおすすめポイント
    • 駅近好立地: 銀座線「神田」駅徒歩1分、複数路線利用可能でアクセス良好 。
    • 希少な居抜き: 会議室・執務室の内装および什器付きで、初期費用を大幅に削減可能 。
    • 充実の設備: 2008年築の新耐震ビル、男女別トイレ、個別空調、OAフロア完備 。
    • デザイン性: ヘリンボーン床の会議室やガラス壁など、来客時の印象も良いスタイリッシュな内装。

内装工事費などのイニシャルコストを抑えつつ、オフィスを構えたい企業様に最適な物件です。
お気軽にお問い合わせください!

オフィス詳細情報

物件番号 1678
エリア 東京都千代田区
アクセス 神田駅徒歩1分,淡路町駅徒歩6分
坪数 38~48坪
坪単価 お問い合わせください
月額賃料 お問い合わせください
推奨人数 11~30人
オフィスタイプ
築年月 2008年1月
階数 7F
周辺施設 万世橋
柳森神社
出世稲荷神社
こだわり条件

募集条件

敷金 8ヶ月
礼金 0ヶ月
保証金 0ヶ月
償却 1ヶ月
更新料 1ヶ月
保証会社 必須(保証会社指定あり)
入居可能時期 2026年4月
契約期間 3年
備考 ※什器類:引き継ぎ相談(引越し先に持っていくか未確定)

ショート動画

スタッフからのコメント

銀座線「神田」駅より徒歩1分、JR線「神田」駅からも徒歩4分という抜群の利便性を誇るオフィスのご紹介です。
本物件は7階・約43坪の募集で、現況の内装や什器を引き継げる「居抜き」での引き渡しとなります 。
ガラスパーティションで仕切られた執務室と、ヘリンボーン床の会議室が完備されており、入居後スピーディーに業務を開始できるのが最大の魅力です。

水回りは専有部に男女別トイレが確保されているため、女性スタッフがいらっしゃる企業様でも安心してご利用いただけます 。

  • 物件のおすすめポイント
    • 駅近好立地: 銀座線「神田」駅徒歩1分、複数路線利用可能でアクセス良好 。
    • 希少な居抜き: 会議室・執務室の内装および什器付きで、初期費用を大幅に削減可能 。
    • 充実の設備: 2008年築の新耐震ビル、男女別トイレ、個別空調、OAフロア完備 。
    • デザイン性: ヘリンボーン床の会議室やガラス壁など、来客時の印象も良いスタイリッシュな内装。

内装工事費などのイニシャルコストを抑えつつ、オフィスを構えたい企業様に最適な物件です。
お気軽にお問い合わせください!

当オフィスの設備

  • デザイナーズオフィス
  • フォンブース
  • ファミレス席
  • リノベーションオフィス
  • 駐車場付き
  • 駐輪場あり
  • 築浅
  • 男女別トイレ
  • 会議室あり
  • 耐震
  • バルコニーorテラスor屋上あり
  • スケルトン天井
  • ワンフロア
  • 一棟貸し
  • セントラル空調
  • OAフロア
  • 天井が高い
  • 個別空調
  • 貸会議室あり
  • ラウンジ

当オフィスの周辺環境

似ているオフィス物件のお問い合わせ

このサイトはreCAPTCHAによって保護されており、Googleのプライバシーポリシー利用規約が適用されます。

お電話でのお問い合わせはこちら

0120-19-1925 受付時間:10:00~18:00

同じ坪数&エリアの物件

お問い合せ受付中
【セットアップ 神田駅徒歩2分】什器完備! 5路線利用できる利便性抜群のモダンオフィス

【セットアップ 神田駅徒歩2分】什器完備! 5路線利用できる利便性抜群のモダンオフィス

エリア
千代田区神田須田町
アクセス
神田駅徒歩2分,岩本町駅徒歩3分,秋葉原駅徒歩6分
坪数
39~49坪
坪単価
28,000~32,000円 / 坪
推奨人数
11~30人
お問い合せ受付中
【セットアップ 神田駅徒歩2分】内装造作付きオフィスで快適なビジネス環境を

【セットアップ 神田駅徒歩2分】内装造作付きオフィスで快適なビジネス環境を

エリア
千代田区神田須田町
アクセス
神田駅徒歩2分,岩本町駅徒歩3分,秋葉原駅徒歩6分
坪数
39~49坪
坪単価
28,000~32,000円 / 坪
推奨人数
11~30人
お問い合せ受付中
【セットアップ 神保町駅3分】複数路線利用可能な高機能デザインワークスペース

【セットアップ 神保町駅3分】複数路線利用可能な高機能デザインワークスペース

エリア
千代田区神田神保町
アクセス
神保町駅徒歩3分,九段下駅徒歩6分,水道橋駅徒歩8分
坪数
45~55坪
坪単価
23,000~27,000円 / 坪
推奨人数
11~30人
お問い合せ受付中
【セットアップ 神保町駅徒歩1分】希少2フロア連結&内装付きオフィス

【セットアップ 神保町駅徒歩1分】希少2フロア連結&内装付きオフィス

エリア
千代田区神田神保町
アクセス
神保町駅徒歩1分,九段下駅徒歩8分
坪数
43~53坪
坪単価
21,000~25,000円 / 坪
推奨人数
31~50人
お問い合せ受付中
【セットアップ 永田町駅徒歩2分】屋上ルーフガーデン付き永田町の内装付きオフィス

【セットアップ 永田町駅徒歩2分】屋上ルーフガーデン付き永田町の内装付きオフィス

エリア
千代田区平河町
アクセス
永田町駅徒歩2分,半蔵門駅徒歩7分,赤坂見附駅徒歩7分
坪数
54~64坪
坪単価
20,000~24,000円 / 坪
推奨人数
11~30人
お問い合せ受付中
【セットアップ 茅場町駅徒歩5分】アクセス性抜群&会議室充実の内装付きオフィス

【セットアップ 茅場町駅徒歩5分】アクセス性抜群&会議室充実の内装付きオフィス

エリア
中央区日本橋茅場町
アクセス
茅場町駅徒歩5分,日本橋駅徒歩6分
坪数
45~55坪
坪単価
24,000~28,000円 / 坪
推奨人数
11~30人

ハイッテの居抜きオフィス移転なら、
移転費用最大0円。期間短縮。
SDGsに貢献にできる。

オフィス・事務所の居抜き退去・入居ができる検索・掲載サービスです。
居抜き退去で原状回復費用を、居抜き入居で内装工事費用を大幅に削減!
採用戦略や事業運営に応じた、最適な移転提案でスタートアップ・ベンチャー企業の成長をサポートします。

お役立ち資料

オフィス移転の工数を1/3削減!レイアウトを考えるポイント(ガイド)

オフィス移転の工数を1/3削減!レイアウトを考えるポイント(ガイド)

解約通知書テンプレートを無料ダウンロード

解約通知書テンプレートを無料ダウンロード

本当にあった!居抜きオフィス移転トラブル事例5選(ガイド)

本当にあった!居抜きオフィス移転トラブル事例5選(ガイド)

居抜きオフィス移転チェックリスト

居抜きオフィス移転チェックリスト

オフィス・事務所移転を進めるためのスケジュールガイドを無料ダウンロード

オフィス・事務所移転を進めるためのスケジュールガイドを無料ダウンロード

5分でわかる原状回復!退去費用0円にする居抜きの魅力(ガイド)

5分でわかる原状回復!退去費用0円にする居抜きの魅力(ガイド)

居抜きオフィス移転完全マニュアル(ガイド)

居抜きオフィス移転完全マニュアル(ガイド)

オフィスプランニングシート【内見・内覧にも使える】

オフィスプランニングシート【内見・内覧にも使える】

面倒な物件探しは、まるっとおまかせ。非公開物件も多数 おまかせ問い合わせはコチラ
お問い合わせ